Перейти к содержимому
Войти

Разработка технологического процесса ремонта рычага рулевой трапеции

0
80
502
4
0
50

Житомирський автомобільно-дорожній коледж
Факультет Обслуговування і ремонт автомобілів
Курсовтй проект з предмета "Основи технології ремонту автомобілів"
На тему: "Розробка технологічного процесу ремонту важіля рульовой трапеції"

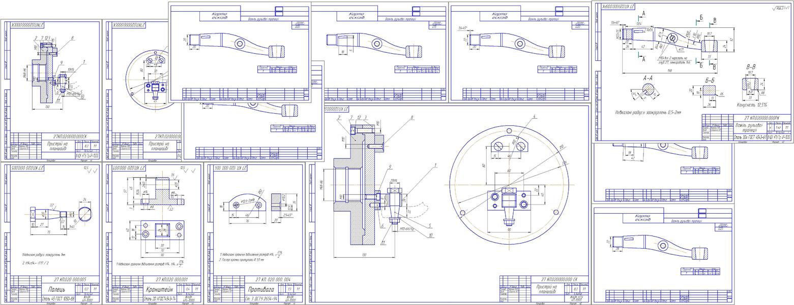
Дана робота має всі необхідні розрахунки, креслення ремонтне, всі ескізи, операційні і маршрутні карти, розроблена приспособа для точіння ричага на токарному верстаті, присутня специфікація, і технічні умови, повністю готовий курсовий проект.

ЗМІСТ Стор.

Вступ. 1.Загальний розділ…………………………………………....3
1.1 Призначення, конструкція, матеріал та термообробка деталі.4
1.2 Технічні умови на дефектацію деталі.............................................
1.3 Основні дефекти деталі, та причини їх виникнення......................
2.Технологічний розділ.
2.1 Розроблення маршрутної технології ремонту деталі................5
2.1.1 Встановлення поєднання дефектів, які входять в кожний маршрут, знаходження кількості маршрутів, присвоєння кожному з них номеру...................................................................................................5
2.1.2 Визначення раціонального способу усунення окремих дефектів по одному маршруту........................................................................6
2.1.3 Розроблення схеми технологічного процесу усунення кожного дефекту окремо........................................................................................7
2.1.4 План технологічних операцій в найбільш раціональній
послідовності їх виконання для заданого маршруту....................7
2.1.5 Розроблення кожної технологічної операції ………………………8
3.Розрахунковий розділ.
3.1 Розрахунок найвигіднішіх режимів різання, наплавки, гальванічних покриттів та прогресивних норм часу для операцій прийнятого маршруту………………………………………………………………………11
3.2 Визначення норми часу на ремонт деталі по прийнятому маршруту..................................................................................................11
3.3 Розрахунок норми виробітку............................................................21
4.Економічна частина.
4.1 Розрахунок собівартості ремонту деталі....................................22
4.2 Визначення економічної ефективністі відновлення деталі по прийнятому маршруту....................................................................25
5. Конструкторський розділ.
5.1 Призначення, будова та правила користування пристроєм................................................................................................

Список використаної літератури..................................................26


Сообщить о проблеме
Дата
23.03.2017
Язык
Украинский
Состав
Важіль рульовий, пристрій на планшайбі
Софт
КОМПАС-3D 13 Как открыть?
Отзывов пока нет
Задать вопрос
Содержимое архива
    • icon-cdw Ричаг рульовий ремонтне креслення 13.cdw
    • icon-frw карта екскизов зварювальна.frw
    • icon-frw карта екскизов наплавка.frw
    • icon-frw карта екскизов токарна 1...frw
    • icon-frw карта екскизов токарна 4.frw
    • icon-frw карта екскизов токарна 5.frw
    • icon-frw карта екскизов токарна 6.frw
    • icon-frw карта екскизов фрезерна.frw
    • icon-doc 3_розд_л.doc
    • icon-doc 4_розд_л.doc
    • icon-doc 5_розд_л.doc
    • icon-txt dzherela.rtf
    • icon-doc vstup.doc
    • icon-doc zmist.doc
    • icon-doc МК + _______.doc
    • icon-doc ОК.doc
    • icon-doc Техн_чн_ умови ГАЗ.doc
    • icon-cdw 1Ч.cdw
    • icon-cdw 2Ч.cdw
    • icon-cdw 4Ч.cdw
    • icon-cdw 1111 _ 27КП.020000.000СК.cdw
    • icon-cdw 22222 _ 27КП.020000.000СК.cdw
    • icon-cdw а2Ч.cdw
    • icon-doc специф_кац_я +Ч.doc
Чтобы скачать чертеж, 3D модель или проект, Вы должны зарегистрироваться и принять участие в жизни сайта. Посмотрите, как тут скачивать файлы
Отзывов пока нет
Чтобы оставить отзыв, необходимо войти
Войти с помощью:

Используя функцию входа через сторонние сервисы, Вы соглашаетесь на обработку персональных данных в соответствии с Политикой конфиденциальности