Перейти к содержимому
Войти

Реконструкция СТОА с разработкой кузовного участка

0
2
100
2
0
100

ФГБОУ ВПО «ЮРГУЭС»
Кафедра "Техническая эксплуатация автомобилей"
Дипломный проект на тему: «Реконструкция станции технического обслуживания автомобилей «ИП Ендальцев С.И.» (г. Батайск) с разработкой кузовного участка"
2012 г.

Введение
1 Анализ состояния вопроса и обоснование проекта
1.1 Общая характеристика базовой СТОА
1.2 Выбор и обоснование номенклатуры услуг реконструируемой СТОА
1.3 Обоснование цели и задач проекта
2 Технологическое проектирование
2.1 Обоснование технологических решений по реконструкции предприя-тия
2.2 Расчет и обоснование производственных площадей реконструируемой СТОА
2.3 Расчет количества постов на кузовном участке
2.4 Выбор и обоснование потребного количества технологическогооборудования для кузовного участка
2.5 Расчет годового объема кузовных и вспомогательных работ
2.6 Расчет годового объема работ уборочно-моечного участка
2. 7 Расчет числа автомобилей, обслуживаемых на кузовном участке в результате реконструкции
2.8 Расчет численности производственных и вспомогательных рабочих
3 Технология проведения работ на кузовном участке
3.1 Анализ условий эксплуатации и неисправностей кузова автомобиля ВАЗ-2170
3.2 Разработка технологического процесса восстановления кузова автомобиля ВАЗ-2170
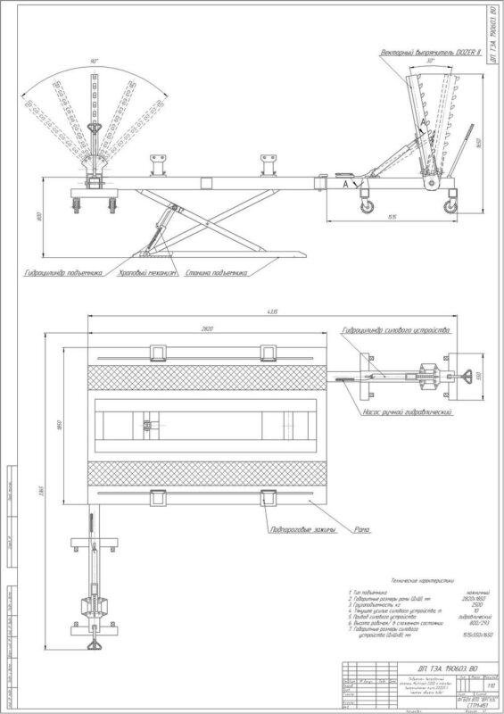
4 Конструкция, расчет и техническая эксплуатация подъемно–выправочного стапеля Multirack 2000 с тяговым выпрямителем типа Dozer II
4.1 Принцип действия, устройство и регулировки оборудования
4.2 Проверочные расчеты исполнительных механизмов и привода
4.3 Монтаж, техническое обслуживание и ремонт стапеля Multirack 2000
5 Инженерные сооружения и энергосбережение на предприятии
5.1 Выбор и расчет местной вентиляции на кузовном участке
5.2 Энергосбережение на предприятии
6 Безопасность жизнедеятельности
6.1 Анализ вредных и опасных факторов на кузовном участке
6.2 Мероприятия по охране труда на кузовном участке
6.3 Расчет искусственного освещения
6.4 Инструкция по охране труда для рабочих кузовного участка
6.5 Обеспечение пожарной безопасности на предприятии
7 Экономическое обоснование реконструкции СТОА
7.1 Оценка объема необходимых инвестиций в проект
7.2 Расчет количества производственного персонала
7.3 Состав затрат на выполнение работ (оказание услуг)
7.4 Смета затрат
7.5 Расчет финансовых результатов на предприятиях автосервиса
7.6 Расчет показателей экономической эффективности проекта
Заключение
Библиографический список


Сообщить о проблеме
Автор
user-avatar shnur
Дата
15.04.2025
Язык
Русский
Состав
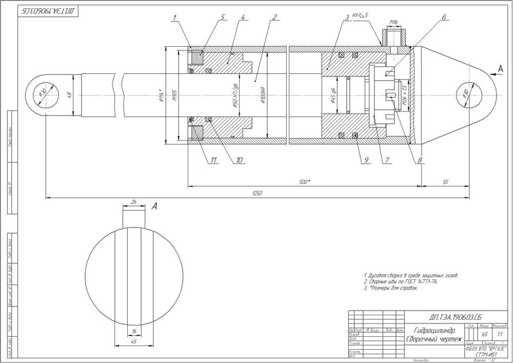
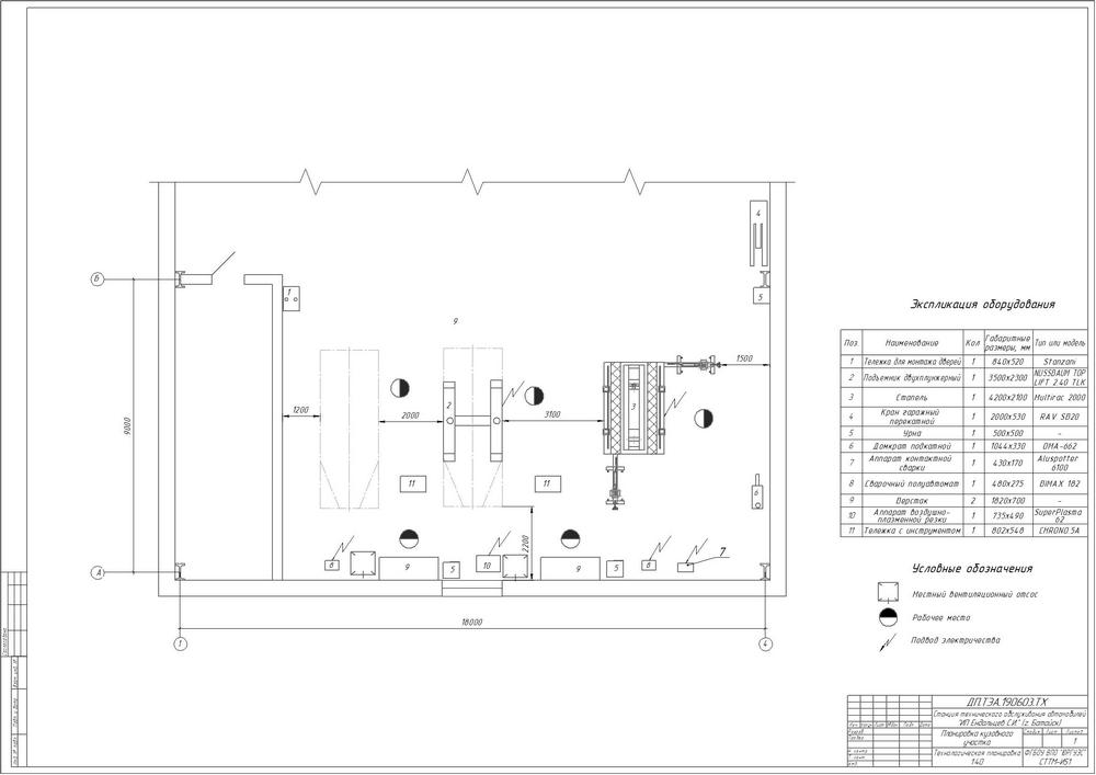
Генеральный план СТОА "ИП Ендальцев С.И." (г. Батайск) Планировка производственного корпуса до рекуонструкции Планировка производственного корпуса после рекуонструкции Планировка кузовного участка Блок-схема технологического процесса ремонта несущей конструкции на кузовном участке Маршрутная карта технологического процесса востановления геометрии кузова автомобиля Подъемно-выправочный стапель Multirack 2000 с тяговым выпрямителем типа DOZER II Гидроцилиндр подъемника (СБ) (спецификация) Схема гидравлическая стапеля Схема сборки-разборки гидроцилиндра Схема кинематическая стапеля Схема электрическая стапеля Плакат по экономике Пояснительная записка
Софт
КОМПАС-3D 21 Как открыть?
Отзывов пока нет
Задать вопрос
Содержимое архива
    • icon-cdw
      Гидроцилиндр Стапеля Новый.cdw
    • icon-cdw
      Сборка-расборка гидроцилиндра стапель А3.cdw
    • icon-cdw
      Схема гидравлическая дозер.cdw
    • icon-cdw
      Схема кинематическая дозер.cdw
    • icon-cdw
      Электрическая схема.cdw
    • icon-doc
      1 раздел новая рамка.doc
    • icon-doc
      2 раз новая рамка.doc
    • icon-doc
      3 раздел на печать.doc
    • icon-doc
      4 раз новая рамка.doc
    • icon-doc
      5 разде печать.doc
    • icon-doc
      6 РАЗДЕЛ БЖД.doc
    • icon-doc
      7 раздел.doc
    • icon-doc
      Библиографический список.doc
    • icon-doc
      Введение.doc
    • icon-doc
      Заключение.doc
    • icon-doc
      Содержание.doc
  • icon-cdw
    1. ГП.cdw
  • icon-cdw
    2.1 до.cdw
  • icon-cdw
    2.1 после.cdw
  • icon-cdw
    3. Кузовной участок.cdw
  • icon-cdw
    4. Кузовной Схема технологического процесса.cdw
  • icon-cdw
    5. МК.cdw
  • icon-cdw
    6. Габаритный чертеж стапеля DOZER II.cdw
  • icon-doc
    9. Экономика плакат.doc
  • icon-cdw
    Спецификация.cdw
Чтобы скачать чертеж, 3D модель или проект, Вы должны зарегистрироваться и принять участие в жизни сайта. Посмотрите, как тут скачивать файлы
Отзывов пока нет
Чтобы оставить отзыв, необходимо войти
Войти с помощью:

Используя функцию входа через сторонние сервисы, Вы соглашаетесь на обработку персональных данных в соответствии с Политикой конфиденциальности