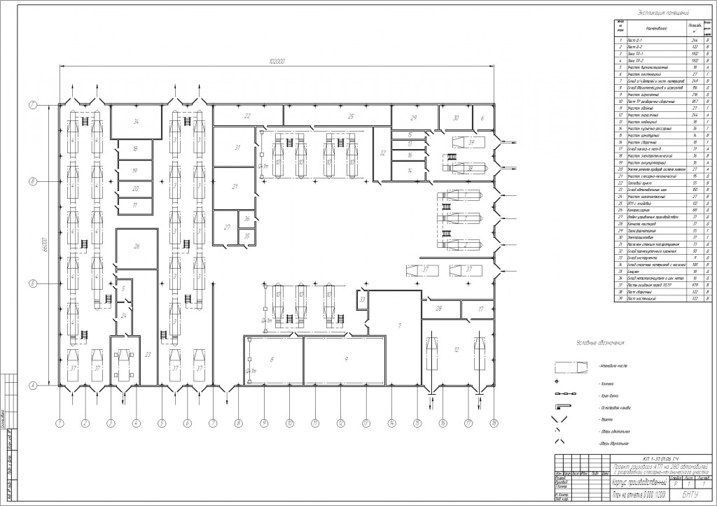
произведена разработка генерального плана автотранспортного предприятия на 280 автомобилей, спроектирован слесарно-механический участок и производственный корпус
- Главная -
- Чертежи -
- Транспорт -
- Автосервис и автомобильное хозяйство -
- проект автотранспортного предприятия
проект автотранспортного предприятия
0
271
22510
23
0
40

Сообщить о проблеме
Автор
Дата
28.02.2013
Язык
Русский
Состав
Генеральный план. Слесарно-механический участок. Производственный корпус.
Софт
КОМПАС-3D 12
Как открыть?
Отзывов пока нет
Содержимое архива
Чтобы скачать чертеж, 3D модель или проект, Вы должны зарегистрироваться
и принять участие в жизни сайта. Посмотрите, как тут скачивать
файлы
Отзывов пока нет
Чтобы задать вопрос, необходимо войти
Войти с помощью:
Ссылка на логин через google
Ссылка на логин через vk
Ссылка на логин через yandex