Перейти к содержимому
Войти

Сравнительные характеристики автоматических регуляторов тормозных рычажных передач вагонов

0
38
696
5
0
40

Кафедра подвижного состава

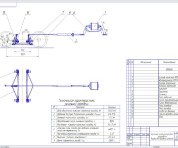
На чертеже приведены основные сравнительные характеристики автоматических регуляторов тормозных рычажных передач вагонов


Сообщить о проблеме
Дата
11.02.2017
Язык
Украинский
Состав
Сравнительные характеристики автоматических регуляторов тормозных рычажных передач вагонов (ВО)
Софт
КОМПАС-3D 14 Как открыть?
Отзывов пока нет
Задать вопрос
Содержимое архива
  • icon-cdw Сравнительные характеристики автоматических регуляторов тормозных рычажных передач вагонов.cdw
Чтобы скачать чертеж, 3D модель или проект, Вы должны зарегистрироваться и принять участие в жизни сайта. Посмотрите, как тут скачивать файлы
Отзывов пока нет
Чтобы оставить отзыв, необходимо войти
Войти с помощью:

Используя функцию входа через сторонние сервисы, Вы соглашаетесь на обработку персональных данных в соответствии с Политикой конфиденциальности