Перейти к содержимому
Войти

Технологический процесс восстановления гусеничного звена бульдозера на базе трактора BELARUS-1502

0
0
159
4
0
50

Белорусский национально технический университет
Механизация и автоматизация дорожно строительного комплекса
Технология производства и ремонта машин
Курсовой проект на тему "Технологический процесс восстановления гусеничного звена бульдозера на базе трактора BELARUS-1502"
Минск 2023

Исходные данные берутся из спецификации машины, машина BELARUS-1502, работа состоит из процесса ремонта и восстановления гусеничного звена.

ОГЛАВЛЕНИЕ
ВВЕДЕНИЕ 5
1 ИЗГОТОВИТЕЛЬ, НАЗНАЧЕНИЕ И ТЕХНИЧЕСКИЕ ХАРАКТЕРИСТИКИ БУЛЬДОЗЕРА BELARUS 1502 6
2 АНАЛИЗ УСЛОВИЙ РАБОТЫ И ДЕФЕКТОВ ЗВЕНЬЕВ БУЛЬДОЗЕРА BELARUS-1502 8
3 ТЕХНИЧЕСКИЕ ТРЕБОВАНИЯ НА ДЕФЕКТАЦИЮ ЗВЕНА БУЛЬДОЗЕРА BELARUS-1502 9
4 АНАЛИЗ НАУЧНО-ТЕХНИЧЕСКОЙ ЛИТЕРАТУРЫ ПО ВОССТАНОВЛЕНИЮ ЗВЕНЬЕВ ГУСЕНИЧНЫХ МАШИН 10
5 ПРОЕКТИРОВАНИЕ ЕДИНОГО ТЕХНОЛОГИЧЕСКОГО ПРОЦЕССА ВОССТАНОВЛЕНИЯ ЗВЕНА 21
5.1 Расчет технологических режимов и норм времени 21
6 КОНСТРУКТОРСКАЯ РАЗРАБОТКА ПРИСПОСОБЛЕНИЯ ДЛЯ НАТЯЖЕНИЯ ГУСЕНИЦ 24
ЗАКЛЮЧЕНИЕ 28
СПИСОК ИСПОЛЬЗОВАННЫХ ИСТОЧНИКОВ 29


Сообщить о проблеме
Автор
user-avatar Misha
Дата
02.10.2023
Язык
Русский
Состав
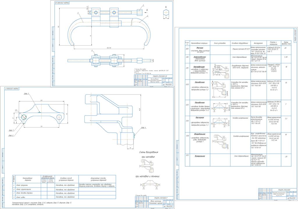
Пояснительная записка ПЗ, Чертежи (Звено гусеницы, маршрутный тех процесс, приспособление для снятия и установки гусеницы, спецификация приспособления)
Софт
КОМПАС-3D 20.1 Как открыть?
Отзывов пока нет
Задать вопрос
Содержимое архива
  • icon-cdw Лист 1 - Звено гусеницы.cdw
  • icon-cdw Лист_№2_Маршрутный_процесс_восстановления.cdw
  • icon-cdw Лист №3-Приспособление.cdw
  • icon-doc ПЗ Чайка.docx
  • icon-cdw Приспосбление СП.cdw
Чтобы скачать чертеж, 3D модель или проект, Вы должны зарегистрироваться и принять участие в жизни сайта. Посмотрите, как тут скачивать файлы
Отзывов пока нет
Чтобы оставить отзыв, необходимо войти
Войти с помощью:

Используя функцию входа через сторонние сервисы, Вы соглашаетесь на обработку персональных данных в соответствии с Политикой конфиденциальности