Перейти к содержимому
Войти

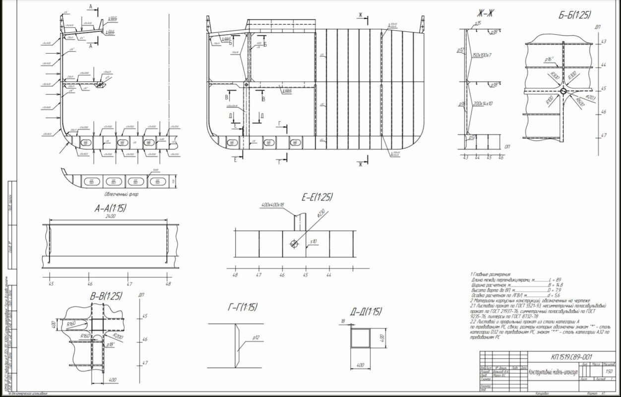
Проектирование конструктивного мидель-шпангоута морского судна

0
0
46
0
0
40

МИНОБРНАУКИ РОССИИ
федеральное государственное бюджетное образовательное учреждение высшего образования
«Санкт-Петербургский государственный морской технический университет» (СПбГМТУ)

Кафедра конструкции и технической эксплуатации судов

Курсовой проект: Проектирование конструктивного мидель-шпангоута морского судна

Исходные данные
Тип судна: сухогруз: L=89м, B=14.8м, D=7.9м, d=5.6м, Cb=0.71

Оглавление
1. ОПРЕДЕЛЕНИЕ РАСЧЁТНЫХ НАГРУЗОК НА КОРПУС СУДНА 4
1.1 Компоновка схемы общего расположения судна 4
1.2 Определение водоизмещения порожнём и дедвейта судна 5
1.3 Расчёт составляющих нагрузки судна порожнём и дедвейта судна 5
1.4 Построение кривых распределения масс надстроек, энергетической установки, оборудования МКО и др. 6
1.4.1 Распределение массы МКО 6
1.4.2 Распределение массы юта и рубок 7
1.4.3 Распределение массы бака 7
1.4.4 Распределение массы судовых устройств 8
1.4.5 Распределение массы снабжения 8
1.5 Построение кривой распределения массы корпуса 9
1.6 Распределение составляющих дедвейта 11
1.7 Построение кривых сил тяжести и сил поддержания судна 14
1.8 Расчёт нагрузок в балластном переходе на тихой воде с использованием программного комплекса SW 22
2. ПРОЕКТИРОВАНИЕ КОНСТРУКЦИЙ СУДНА 26
2.1 Проектирование листов наружной обшивки и настила палуб 26
2.1.1 Укладка листов по контуру поперечного сечения корпуса 26
2.1.2 Определение толщин наружной обшивки и палуб. 27
2.2 Проектирование конструкций днища 27
2.2.1 Вертикальный киль 27
2.2.2 Сплошные флоры 28
2.2.3 Облегченные флоры 29
2.2.4 Непроницаемые флоры 30
2.3 Проектирование конструкций борта 31
2.3.1 Шпангоуты твиндека 31
2.3.2 Шпангоуты трюма 32
2.4 Проектирование конструкций палуб 33
2.4.1 Проектирование конструкций твиндека 34
2.4.2 Проектирование конструкций верхней палубы 39
2.5 Проектирование пиллерсов 43
2.5.1 Определение нагрузок 43
2.5.2 Твиндечный пиллерс 43
2.5.3 Трюмный пиллерс 44
2.6 Проектирование водонепроницаемой переборки 45
2.6.1 Определение толщины листов водонепроницаемой переборки 45
2.6.2 Трюмные стойки водонепроницаемой переборки 46
2.6.3 Твиндечные стойки водонепроницаемой переборки 48
2.7 Проверочный расчет общей прочности и устойчивости 51
СПИСОК ЛИТЕРАТУРЫ 59


Сообщить о проблеме
Автор
user-avatar Triton Rage
Дата
16.04.2026
Язык
Русский
Состав
Конструкция корпуса судна, , ПЗ
Софт
КОМПАС-3D 23 учебная Как открыть?
Отзывов пока нет
Задать вопрос
Содержимое архива
  • icon-doc Ваньков_1519_ККС.docx
  • icon-cdw Чертеж.cdw
  • icon-pdf Чертеж.pdf
Чтобы скачать чертеж, 3D модель или проект, Вы должны зарегистрироваться и принять участие в жизни сайта. Посмотрите, как тут скачивать файлы
Отзывов пока нет
Чтобы оставить отзыв, необходимо войти
Войти с помощью:

Используя функцию входа через сторонние сервисы, Вы соглашаетесь на обработку персональных данных в соответствии с Политикой конфиденциальности