Перейти к содержимому
Войти

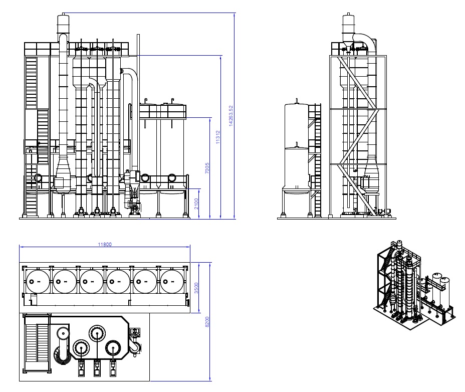
Установка выпаривания хвостовой воды для рыбной муки производительностью 10 тонн/час

0
0
42
0
0
1 000

Установка выпаривания хвостовой воды для рыбной муки

Установка для выпаривания хвостовых вод производительностью 10 тонн представляет собой промышленную систему для концентрирования жидкостей, особенно для процессов очистки промышленных сточных вод, в которой для испарения воды и отделения твердых веществ используется тепло.

Прилагаются подробные чертежи изготовления установки по выпариванию хвостовой воды при производстве рыбной муки (В формате PDF и AutoCAD)


Сообщить о проблеме
Автор
user-avatar william yovera
Дата
23.11.2025
Язык
Русский
Состав
Установка выпаривания хвостовой воды для рыбной муки • Производительность: 10 тонн/час • Количество секций: 3 • Диаметр: 760 мм с трубой из нержавеющей стали диаметром 174 мм (304) • высота эффекта: 11,425 мм Список технологических резервуаров: • Резервуар для хвостовой воды: объем 12 м³ • Резервуар для конденсата: объем 12 м³ • Резервуар для концентрата: объём 6 м³ • Резервуар для разбавленной соды: объём 6 м³ • Резервуар для концентрированной каустической соды: объём 6 м³ • Резервуар для азотной кислоты: Объем 0,6 м3 • 3D сборка • Планы в формате PDF
Софт
AutoCAD 2020 Как открыть?
Отзывов пока нет
Задать вопрос
Содержимое архива
  • icon-pdf Завод по производству колы - лестница-002-DG.pdf
  • icon-pdf Лестница, Установка для очистки хвостовой воды - Лестница-001-DG.pdf
  • icon-pdf Лестница, растение, водный хвост-01-002-DM.pdf
  • icon-pdf Лестница, растение, водный хвост-04-001-UG.pdf
  • icon-pdf Лестница, растение, водный хвост-04-002-UG.pdf
  • icon-dwg Лестница, растение, водный хвост.dwg
  • icon-pdf Лестница, хвостовая ступень установки - платформы-001-DG.pdf
  • icon-dwg Технологическая схема установки очистки нижнего бьефа.dwg
  • icon-pdf Технологическая схема установки очистки нижнего бьефа.pdf
  • icon-dwg базы или якоря эффектов.dwg
  • icon-pdf базы или якоря эффектов.pdf
  • icon-dwg барометрический-001-дф.dwg
  • icon-pdf барометрический-001-дф.pdf
  • icon-dwg барометрический-002-дф.dwg
  • icon-pdf барометрический-002-дф.pdf
  • icon-dwg вытяжной вентилятор-001-дф.dwg
  • icon-pdf вытяжной вентилятор-001-дф.pdf
  • icon-dwg газовый сепаратор-001-DF.dwg
  • icon-pdf газовый сепаратор-001-DF.pdf
  • icon-dwg газовый сепаратор-002-DF.dwg
  • icon-pdf газовый сепаратор-002-DF.pdf
  • icon-dwg дезодорирующий резервуар-001-DF.dwg
  • icon-pdf дезодорирующий резервуар-001-DF.pdf
  • icon-dwg дезодорирующий резервуар-002-DF.dwg
  • icon-pdf дезодорирующий резервуар-002-DF.pdf
  • icon-dwg изометрический-001-DI.dwg
  • icon-pdf изометрический-001-DI.pdf
  • icon-dwg изометрический-002-DI.dwg
  • icon-pdf изометрический-002-DI.pdf
  • icon-dwg изометрический-003-DI.dwg
  • icon-pdf изометрический-003-DI.pdf
  • icon-dwg изометрический-004-DI.dwg
  • icon-pdf изометрический-004-DI.pdf
  • icon-dwg испаритель-01-001дф.dwg
  • icon-pdf испаритель-01-001дф.pdf
  • icon-dwg испаритель-01-002дф.dwg
  • icon-pdf испаритель-01-002дф.pdf
  • icon-dwg испаритель-01-003дф.dwg
  • icon-pdf испаритель-01-003дф.pdf
  • icon-dwg испаритель-01-004-дф.dwg
  • icon-pdf испаритель-01-004-дф.pdf
  • icon-dwg испаритель-01-005-дф.dwg
  • icon-pdf испаритель-01-005-дф.pdf
  • icon-dwg испаритель-01-006-дф.dwg
  • icon-pdf испаритель-01-006-дф.pdf
  • icon-dwg испаритель-01-007-дф.dwg
  • icon-pdf испаритель-01-007-дф.pdf
  • icon-dwg испаритель-01-008-дф.dwg
  • icon-pdf испаритель-01-008-дф.pdf
  • icon-dwg испаритель-01-009-дф.dwg
  • icon-pdf испаритель-01-009-дф.pdf
  • icon-dwg испаритель-01-010-дф.dwg
  • icon-pdf испаритель-01-010-дф.pdf
  • icon-dwg испаритель-02-001-дф.dwg
  • icon-pdf испаритель-02-001-дф.pdf
  • icon-dwg испаритель-02-002-дф.dwg
  • icon-pdf испаритель-02-002-дф.pdf
  • icon-dwg испаритель-02-003-дф.dwg
  • icon-pdf испаритель-02-003-дф.pdf
  • icon-dwg испаритель-02-004-дф.dwg
  • icon-pdf испаритель-02-004-дф.pdf
  • icon-dwg испаритель-02-005-дф.dwg
  • icon-pdf испаритель-02-005-дф.pdf
  • icon-dwg испаритель-02-006-дф.dwg
  • icon-pdf испаритель-02-006-дф.pdf
  • icon-dwg испаритель-02-007-дф.dwg
  • icon-pdf испаритель-02-007-дф.pdf
  • icon-dwg испаритель-02-008-дф.dwg
  • icon-pdf испаритель-02-008-дф.pdf
  • icon-dwg испаритель-02-009-дф.dwg
  • icon-pdf испаритель-02-009-дф.pdf
  • icon-dwg испаритель-02-010-дф.dwg
  • icon-pdf испаритель-02-010-дф.pdf
  • icon-dwg испаритель-03-001-дф.dwg
  • icon-pdf испаритель-03-001-дф.pdf
  • icon-dwg испаритель-03-002-дф.dwg
  • icon-pdf испаритель-03-002-дф.pdf
  • icon-dwg испаритель-03-003-дф.dwg
  • icon-pdf испаритель-03-003-дф.pdf
  • icon-dwg испаритель-03-004-дф.dwg
  • icon-pdf испаритель-03-004-дф.pdf
  • icon-dwg испаритель-03-005-дф.dwg
  • icon-pdf испаритель-03-005-дф.pdf
  • icon-dwg испаритель-03-006-дф.dwg
  • icon-pdf испаритель-03-006-дф.pdf
  • icon-dwg испаритель-03-007-дф.dwg
  • icon-pdf испаритель-03-007-дф.pdf
  • icon-dwg испаритель-03-008-дф.dwg
  • icon-pdf испаритель-03-008-дф.pdf
  • icon-dwg испаритель-03-009-дф.dwg
  • icon-pdf испаритель-03-009-дф.pdf
  • icon-dwg испаритель-03-010-дф.dwg
  • icon-pdf испаритель-03-010-дф.pdf
  • icon-pdf конструкции резервуаров хвостохранилища L10-P01-ET01 00.pdf
  • icon-pdf конструкции резервуаров хвостохранилища L10-P01-ET01 01.pdf
  • icon-dwg конструкции резервуаров хвостохранилища L10-P01-ET01.dwg
  • icon-dwg лестница-01-001-дф.dwg
  • icon-pdf лестница-01-001-дф.pdf
  • icon-dwg лестница-01-002-дф.dwg
  • icon-pdf лестница-01-002-дф.pdf
  • icon-dwg монтаж эффектов-01-002-DM.dwg
  • icon-pdf монтаж эффектов-01-002-DM.pdf
  • icon-dwg монтаж эффектов-01-003-DM.dwg
  • icon-pdf монтаж эффектов-01-003-DM.pdf
  • icon-dwg монтаж эффектов-01-004-DM.dwg
  • icon-pdf монтаж эффектов-01-004-DM.pdf
  • icon-dwg опоры для рым-болтов.dwg
  • icon-pdf опоры для рым-болтов.pdf
  • icon-dwg паровой циклон-001-дф.dwg
  • icon-pdf паровой циклон-001-дф.pdf
  • icon-dwg паровой циклон-002-дф.dwg
  • icon-pdf паровой циклон-002-дф.pdf
  • icon-dwg паровой циклон-003-дф.dwg
  • icon-pdf паровой циклон-003-дф.pdf
  • icon-dwg распределение нагрузки-01-001-дC.dwg
  • icon-pdf распределение нагрузки-01-001-дC.pdf
  • icon-dwg распределение нагрузки-01-002-дC.dwg
  • icon-pdf распределение нагрузки-01-002-дC.pdf
  • icon-dwg технологические резервуары-01-001-DF.dwg
  • icon-pdf технологические резервуары-01-001-DF.pdf
  • icon-dwg технологические резервуары-01-002-DF.dwg
  • icon-pdf технологические резервуары-01-002-DF.pdf
  • icon-dwg технологические резервуары-01-003-DF.dwg
  • icon-pdf технологические резервуары-01-003-DF.pdf
  • icon-dwg технологические резервуары-01-004-DF.dwg
  • icon-pdf технологические резервуары-01-004-DF.pdf
  • icon-dwg технологические резервуары-01-005-DF.dwg
  • icon-pdf технологические резервуары-01-005-DF.pdf
  • icon-dwg эжектор-001-дф.dwg
  • icon-pdf эжектор-001-дф.pdf
  • icon-dwg эжектор-002-дф.dwg
  • icon-pdf эжектор-002-дф.pdf
Чтобы скачать чертеж, 3D модель или проект, Вы должны зарегистрироваться и принять участие в жизни сайта. Посмотрите, как тут скачивать файлы
Отзывов пока нет
Чтобы оставить отзыв, необходимо войти
Войти с помощью:

Используя функцию входа через сторонние сервисы, Вы соглашаетесь на обработку персональных данных в соответствии с Политикой конфиденциальности