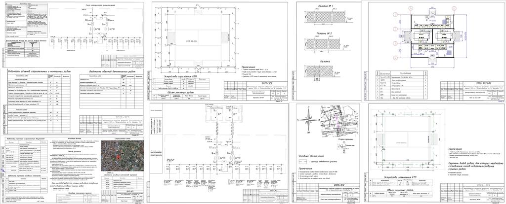
Настоящим проектом предусматривается электроснабжение стадиона, в Казахстане, в г. Петропавловск. Категория электроприёмников объекта по электроснабжению I.
Для выполнения условий надёжности электроснабжения потребителей стадиона расчётной мощностью 722,54 кВт, на территории стадиона устанавливается КТПН 2х1000-10/0,4 кВ к нему запроектированы 2хКЛ-10 кВ от РП № 2, согласно ТУ. Дополнительно, для аварийных режимов, в разделе 2022-ЭС1 (внутриплощадочные электрические сети), запроектирована дизельная электростанция (ДЭС) на 500 кВт.
- Главная -
- Чертежи -
- Инженерные системы -
- Электроснабжение и освещение -
- Электроснабжение внеплощадочное стадиона
Электроснабжение внеплощадочное стадиона
0
0
171
0
0
40

Сообщить о проблеме
Автор
Дата
14.06.2022
Язык
Русский
Состав
Раздел -ЭС2 со спецификацией и опросными листами на КТП и ДЭС
Софт
AutoCAD 2010
Как открыть?
Отзывов пока нет
Содержимое архива
Чтобы скачать чертеж, 3D модель или проект, Вы должны зарегистрироваться
и принять участие в жизни сайта. Посмотрите, как тут скачивать
файлы
Отзывов пока нет
Чтобы задать вопрос, необходимо войти
Войти с помощью:
Ссылка на логин через google
Ссылка на логин через vk
Ссылка на логин через yandex