Строительство крытого спорткомплекса с бассейном. Внутренние сети электроснабжения, силовое электрооборудование, электрическое освещение, молниезащита и заземление в Алматинской области
- Главная -
- Чертежи -
- Инженерные системы -
- Электроснабжение и освещение -
- Строительство крытого спорткомплекса с бассейном. Силовое электрооборудование и Электрическое освещение
Строительство крытого спорткомплекса с бассейном. Силовое электрооборудование и Электрическое освещение
0
0
58
1
0
250
Сообщить о проблеме
Автор
Дата
03.01.2026
Язык
Русский
Состав
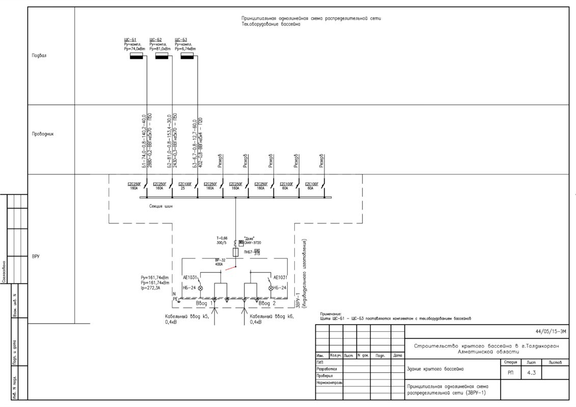
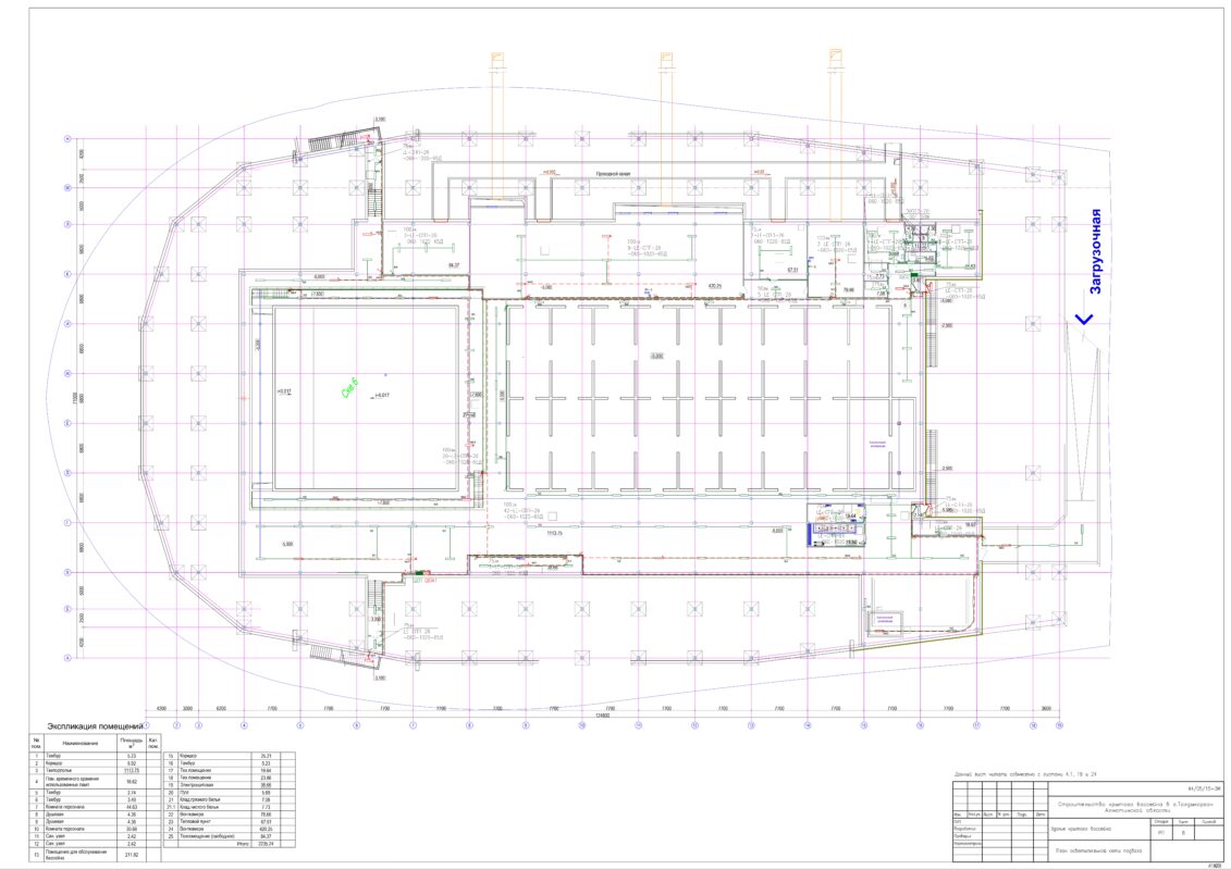
Общие данные, Принципиальная однолинейная схема распределительной сети, План распределительной сети, План осветительной сети, План силовой, розеточной сети, План силовой сети. Система ОВ, Молниезащита, Расчетная таблица групповой осветительной сети, Схема управления системой обогрева, Спецификация оборудования, изделий и материалов
Софт
AutoCAD 20
Как открыть?
Отзывов пока нет
Содержимое архива
-
Бассейн ТК - ЭМ.dwg
Чтобы скачать чертеж, 3D модель или проект, Вы должны зарегистрироваться
и принять участие в жизни сайта. Посмотрите, как тут скачивать
файлы
Задания с фриланса
Все задания
Отзывов пока нет
Чтобы оставить отзыв, необходимо войти
Войти с помощью:
Используя функцию входа через сторонние сервисы, Вы соглашаетесь на обработку персональных данных в соответствии с Политикой конфиденциальности
Используя функцию входа через сторонние сервисы, Вы соглашаетесь на обработку персональных данных в соответствии с Политикой конфиденциальности