Министерство науки и высшего образования Российской Федерации
Федеральное государственное бюджетное образовательное
учреждение высшего образования
«Новгородский государственный университет имени Ярослава Мудрого»
___________________________________________________________________
Кафедра ПТ
Курсовой проект по учебному модулю
«Детали машин и основы конструирования» на тему: Привод ленточного конвейера
Сопротивление движению моста F=3 кН
Скорость моста v=1.35 м/с
Диаметр колеса D=400 мм
Срок службы привода t=6 лет
Коэффициент годового использования КГ=0,9
Коэффициент суточного использования КС=0,9
Содержание
ЗАДАНИЕ 2
1. КИНЕМАТИЧЕСКИЙ И СИЛОВОЙ РАСЧЕТ ПРИВОДА 4
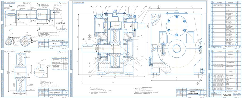
2. РАСЧЕТ РЕДУКТОРА 6
2.1 Выбор материала 6
2.2 Расчет геометрических параметров передачи 8
2.3 Проверочный расчет 10
3. РАСЧЕТ ЦЕПНОЙ ПЕРЕДАЧИ 15
4. ПРЕДВАРИТЕЛЬНЫЙ РАСЧЕТ ВАЛОВ 19
5. ЭСКИЗНАЯ КОМПОНОВКА 21
6. РАСЧЕТ ПОДШИПНИКОВ 24
6.1 Расчет тихоходного вала 24
6.2 Расчет быстроходного вала 29
7. РАСЧЕТ ВАЛА НА ВЫНОСЛИВОСТЬ 33
8. РАСЧЕТ ШПОНОЧНЫХ СОЕДИНЕНИЙ 36
8.1 Соединение колеса и вала 36
8.2 Соединение звездочки и вала 36
8.3 Соединение полумуфты и вала 36
9. СМАЗЫВАНИЕ ЗАЦЕПЛЕНИЙ 37
10. СБОРКА РЕДУКТОРА 38
ЗАКЛЮЧЕНИЕ 40
СПИСОК ИСПОЛЬЗОВАННОЙ ЛИТЕРАТУРЫ 41
 
           
               
                 
                 
                 
                 
                 
                 Татьяна Антонова
    Татьяна Антонова
   
           
           
           Владимир
    Владимир