Перейти к содержимому
Войти

Спроектировать гидропривод фрезерного обрабатывающего центра

0
0
32
1
0
50

Белорусско-Российский университет
Кафедра “Металлорежущие станки и инструменты”
Курсовая работа по дисциплине
“Гидро и пневмопривод технологического оборудования ”
Тема: «Спроектировать гидропривод фрезерного обрабатывающего центр»
Могилев 2025

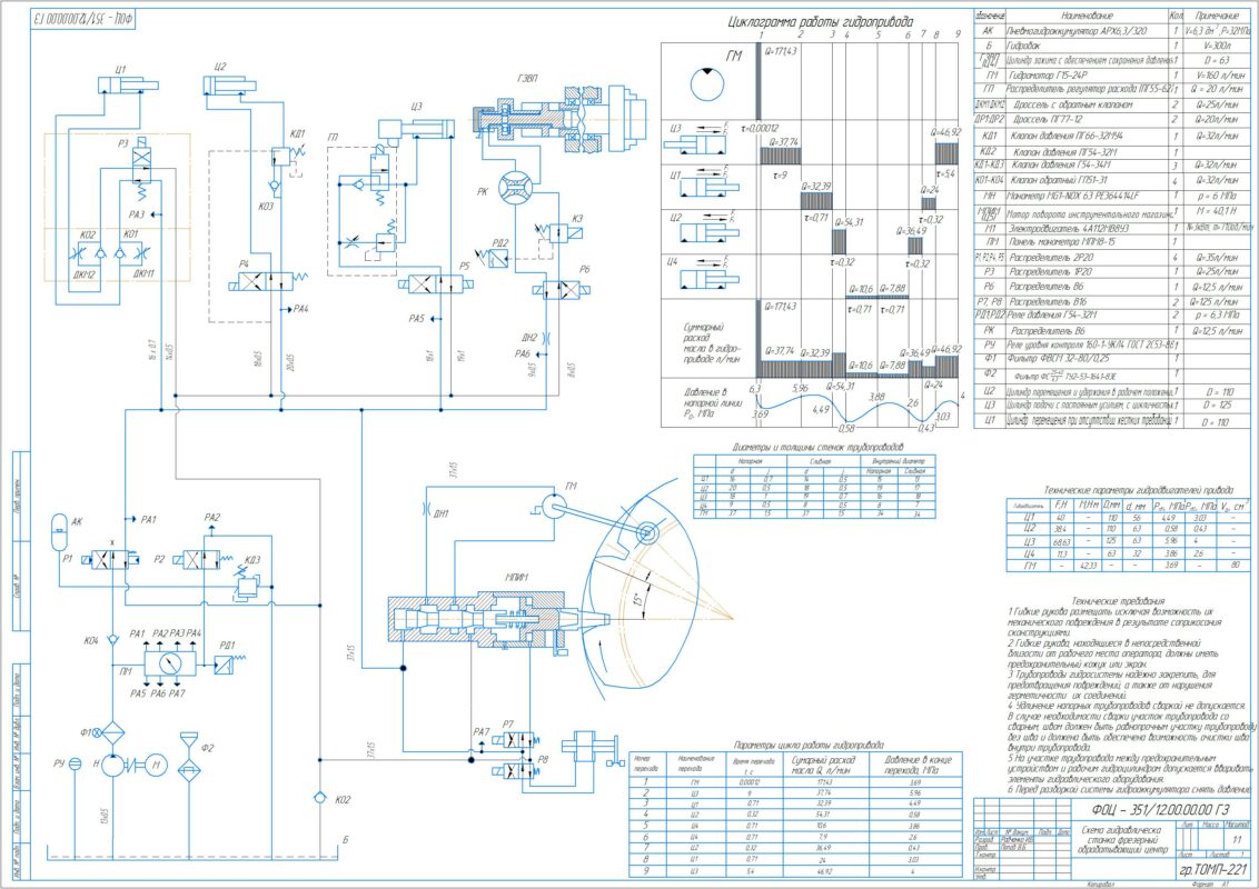
Фрезерование торцевой фрезой. Сталь 09ГСФ (91-93 HRB), Ширина фрезерования В=270 мм, с охлаждением и максимальной подачей 5,1 мм/об.
1. Перемещение при отсутствии жёстких требований к стабильности скорости: Fn=37 кН; Fтр=3 кН; Vxx=3,4 м/минS=40 mm; Lн=Lсл=5 м; ню=32
2 Перемещение и удержание в рабочем положении: m=1,7 т; Fтр=2,8 кН; V=5,7 м/мин; S=30 mm;Lн=Lсл=5,5 м; ню=26
3 Привод подачи с постоянным усилием, обеспечивающий цикл движения: быстрый подвод (БП)- рабочая подача (РП)- быстрый отвод (БО). Fp,S - из расчёта режимов. Fтр=5,9 кН; S=460 mm; Lн=Lсл=6,2 м, ню=41
4 Гидропривод для зажима во вращающемся патроне.. Fп=5,2 кН, Fтр=6,1 кН; V=3,4 m/мин; S=40 mm; Lн=Lсл=3,7 м, ню=26
Привод вращения инструмента. Мтр=40,1 Нм, I=0,25 кгм2, фи=1,5 град, n=2100 об/мин, Lн=Lсл=2,6 м; ню=78
Дополнительные: Vрх=0,6Vxx, Vбп=1,8-2Vxx; G=0,8кН; Fп=2,5 Ррезmax; Vpx=1,05Vрезmax a=0,2Vxx

СОДЕРЖАНИЕ
Введение ………………………………………………………………………4
1. Расчёт требуемых силовых характеристик привода станка, разработка принципиальной гидравлической схемы ………………..……… ………5
Расчёт режимов резанья 6
2. Определение размеров гидродвигателей …………………………………7
3. Построение циклограммы работы гидропривода и выбор источника
давления ……………………………………………………………………….13
4. Выбор гидроаппаратуры и трубопроводов ………………………………19
5.Составление монтажной гидросхемы 23
6. Насосная установка ………………………………………………………..24
7. Техника безопасности …………………………………………………….25
Заключение…………………………………………………………………….26
Список использованной литературы ……………………………………….27


Сообщить о проблеме
Автор
user-avatar Игорь
Дата
09.10.2025
Язык
Русский
Состав
чертеж, ПЗ
Софт
КОМПАС-3D 23 Как открыть?
Отзывов пока нет
Задать вопрос
Содержимое архива
    • icon-xls
      Курсовой гидро.xlsx
    • icon-doc
      Радченко гидравлика ПЗ1 new.docx
    • icon-doc
      Титульный лист.docx
    • icon-cdw
      Чертеж2.cdw
    • icon-jpg
      Чертеж2.jpg
    • icon-jpg
      задание.jpg
    • icon-doc
      содержание.docx
Чтобы скачать чертеж, 3D модель или проект, Вы должны зарегистрироваться и принять участие в жизни сайта. Посмотрите, как тут скачивать файлы
Отзывов пока нет
Чтобы оставить отзыв, необходимо войти
Войти с помощью:

Используя функцию входа через сторонние сервисы, Вы соглашаетесь на обработку персональных данных в соответствии с Политикой конфиденциальности