Перейти к содержимому
Войти

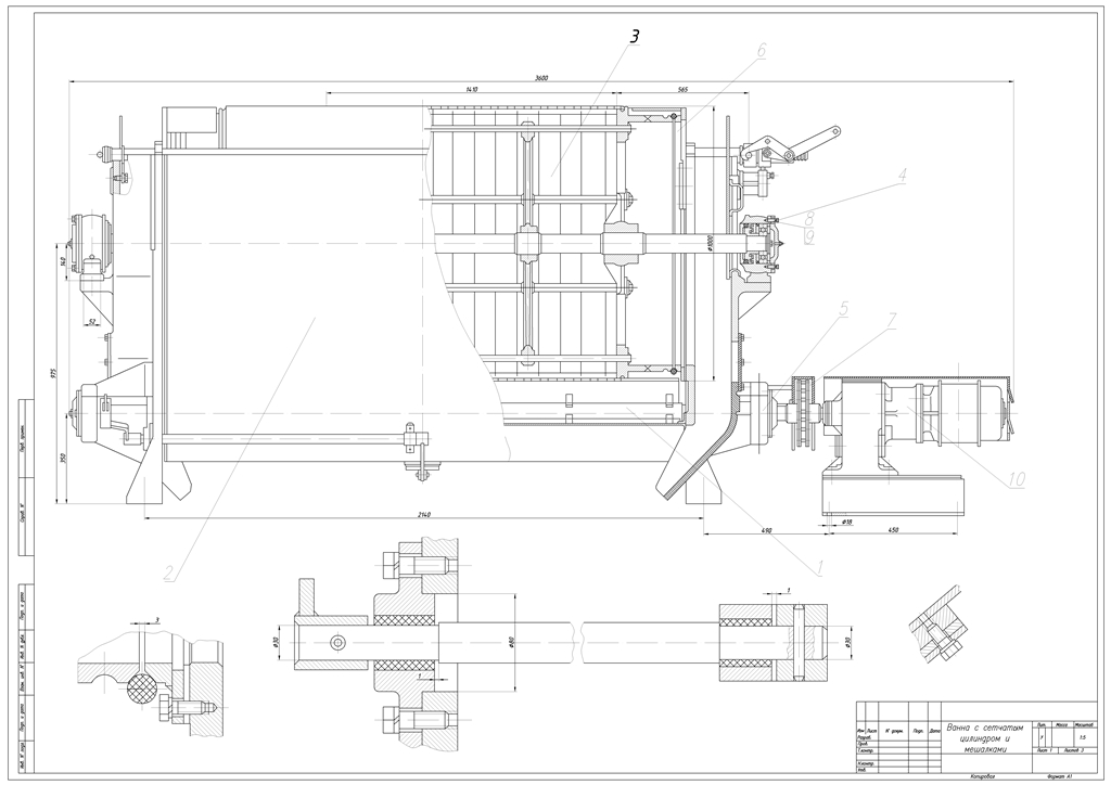
Модернизация ванны сетчатых цилиндров листоформовочной машины СМА-943

0
0
9
0
0
150

БГТУ им. В.Г. Шухова
Институт технологического оборудования и машиностроения
Кафедра: «Механического оборудования»
Курсовой проект по дисциплине: «Эксплуатация и ремонт машин для производства строительных материалов и изделий на их базе»
на тему: «Модернизация ванны сетчатых цилиндров листоформовочной машины СМА-943»

Введение 4
1 ТЕХНОЛОГИЧЕСКАЯ ЧАСТЬ 5
1.1 Характеристики используемых материалов для производства асбестоцементных листов на предприятии ОАО «БелАЦИ» 5
1.2 Характеристика выпускаемых асбестоцементных листов на предприятии ОАО «БелАЦИ» 7
1.3 Описание технологического комплекса для производства асбестоцементных листов. 8
2 СПЕЦИАЛЬНАЯ ЧАСТЬ 13
2.1 Назначение, конструкция и принцип действия листоформовочной машины СМА-943. 13
2.2 Описание мероприятий по конструктивному совершенствованию листоформовочной машины СМА-943. 18
3 РАСЧЁТНАЯ ЧАСТЬ 30
3.1 Расчёт производительности 30
3.2 Расчёт мощности привода. 31
3.3 Расчёты на прочность. 35
Заключение 43
Список использованной литературы 44


Сообщить о проблеме
Автор
user-avatar NET
Дата
28.04.2026
Язык
Русский
Состав
Листоформовочная машина СМ-943 (СБ),Рама фильцевая с гидроподъемником(СБ),Ванна с сетчатым цилиндром и мешалками(СБ), ПЗ, Спецификация
Софт
Отзывов пока нет
Задать вопрос
Содержимое архива
  • icon-dwg Ванна.dwg
  • icon-doc ПЗ.docx
  • icon-doc Спецификация ванна.docx
  • icon-doc Спецификация общий вид.docx
  • icon-doc Спецификация рама.docx
  • icon-dwg листоформовочная машина СБ.dwg
  • icon-dwg рама.dwg
Чтобы скачать чертеж, 3D модель или проект, Вы должны зарегистрироваться и принять участие в жизни сайта. Посмотрите, как тут скачивать файлы
Отзывов пока нет
Чтобы оставить отзыв, необходимо войти
Войти с помощью:

Используя функцию входа через сторонние сервисы, Вы соглашаетесь на обработку персональных данных в соответствии с Политикой конфиденциальности