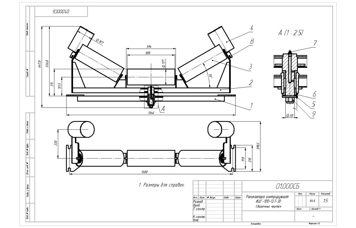
Роликоопора центрирующая ЖЦГ-100-127-30 используется в ленточном конвейере. Ширина ленты-1000 мм, угол роликоопоры-30 град. Диаметры роликов наружные, мм - 127. Габарит роликоопоры ДхШхВ, мм - 1346х399х648. Растояние по крепежным отверстиям, мм - 1300х170, отверстие под болт - 18 мм. Масса, кг - 65.
- Главная -
- Чертежи -
- Машиностроение и механика -
- Подъемно транспортные установки (ПТУ) -
- Конвейеры -
- Роликоопора цинтрирующая ЖЦГ-100-127-30
Роликоопора цинтрирующая ЖЦГ-100-127-30
0
0
30
1
0
100


3D Модели
Конвейер
лента конвейерная
подъеиное устройство
роликоопора
Роликоопора цинтрирующая
солеотвал
транспортер
Сообщить о проблеме
Автор

Дата
25.09.2025
Язык
Русский
Состав
3D модель Сборка с чертежами и спецификациями.
Софт
SolidWorks 2019 SP5
Как открыть?
Отзывов пока нет
Содержимое архива
Чтобы скачать чертеж, 3D модель или проект, Вы должны зарегистрироваться
и принять участие в жизни сайта. Посмотрите, как тут скачивать
файлы
Отзывов пока нет
Чтобы задать вопрос, необходимо войти
Войти с помощью:
Ссылка на логин через google
Ссылка на логин через vk
Ссылка на логин через yandex