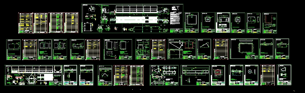
Объем бункера, м.куб(т) 58(43.5)
Производительность, т/ч 55
Скорость транспортера, м/с. 0,65
Мощность электродвигателя,кВт 11
Обороты эл.двигателя, об/мин 1500
Передаточное отношение редуктора 40
Передаточное отношение рем. передачи 1.0
Момент на выходном валу редуктора, Н м 2600
- Главная -
- Чертежи -
- Машиностроение и механика -
- Подъемно транспортные установки (ПТУ) -
- Конвейеры -
- Устройство приемно-подающее
Устройство приемно-подающее
0
0
56
0
1
300
65
кВт 11
м.куб(т) 58(43.5)
м/с 0
об/мин 1500
Обороты эл.двигателя
Объем бункера
производительность
Скорость транспортера
т/ч 55
Электродвигатель
Сообщить о проблеме
Автор
Дата
07.10.2023
Язык
Русский
Состав
Сборочный чертеж, деталировка, спецификация
Софт
AutoCAD 2018
Как открыть?
Отзывов пока нет
Содержимое архива
-
СБ.dwg
Чтобы скачать чертеж, 3D модель или проект, Вы должны зарегистрироваться
и принять участие в жизни сайта. Посмотрите, как тут скачивать
файлы
Отзывов пока нет
Чтобы оставить отзыв, необходимо войти
Войти с помощью:
Используя функцию входа через сторонние сервисы, Вы соглашаетесь на обработку персональных данных в соответствии с Политикой конфиденциальности
А на каком производстве используется? Откуда и куда подается? И что подается?
Для подачи зерна в сушилку
Используя функцию входа через сторонние сервисы, Вы соглашаетесь на обработку персональных данных в соответствии с Политикой конфиденциальности