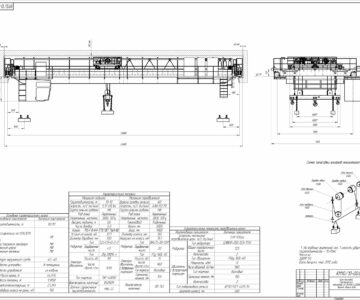
мостовой магнитный кран 50 тонн. предназначен для перевозки длинномерных и высоковесных сляб
- Главная -
- Чертежи -
- Машиностроение и механика -
- Подъемно транспортные установки (ПТУ) -
- Краны -
- Мостовой магнитный кран специального назначения 50 тонн
Мостовой магнитный кран специального назначения 50 тонн
0
250
3305
14
0
20

Сообщить о проблеме
Автор
Дата
11.01.2011
Язык
Русский
Состав
общий вид + спецификация
Софт
cdw (компас 9)
Отзывов пока нет
Содержимое архива
Чтобы скачать чертеж, 3D модель или проект, Вы должны зарегистрироваться
и принять участие в жизни сайта. Посмотрите, как тут скачивать
файлы
Задания с фриланса
Отзывов пока нет
Чтобы задать вопрос, необходимо войти
Войти с помощью:
Ссылка на логин через google
Ссылка на логин через vk
Ссылка на логин через yandex