Перейти к содержимому
Войти

Уважаемые пользователи, временно отключили платежи через ЮКассу. Работает запасной канал. Если у кого-то потерялся платеж за 21.04 напишите в форму контактов.

Курсовой проект : Технологический процесс восстановления детали вал шестерня

0
0
35
0
0
80

ОРЕНБУРГСКИЙ ГОСУДАРСТВЕННЫЙ УНИВЕРСИТЕТ»
Аэрокосмический институт
Кафедра материаловедения и технологии материалов

Курсовой проект : Технологический процесс восстановления детали вал шестерня
по дисциплине «Теоретические основы и технологические методы
восстановления и повышения износостойкости деталей машин»

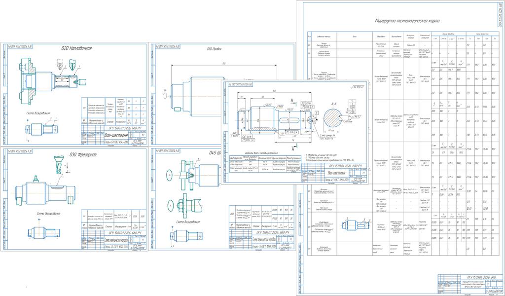
Вал-шестерня l=150, сталь 45Х, чертежи: сборочный чертеж, маршрутная карта, 4 чертежа восстановления детали
Введение 4
1 Характеристика детали и условий ее работы 5
1.1 Служебное назначение детали 5
1.2 Особенности конструкции 5
1.3 Материалы валов- шестерня 6
2 Выбор, обоснование и характеристика способов восстановления 7
2.1 Возможные способы восстановительного ремонта деталей типа «Вал-шестерня» 7
2.2 Способы восстановления деталей типа «Вал-шестерня» 8
2.3 Факторы, влияющие на выбор технологического процесса восстановления деталей 9
3 Технологическая часть 11
3.1 Марка, химический состав и механические свойства материала 11
3.2 Выбор рационального способа ремонта детали «Вал-шестерня» 11
3.3 Разработка технологического процесса восстановления детали 12
3.4 Выбор состава технологического оборудования 17
3.5 Выбор режущего инструмента 20
3.6 Выбор измерительного инструмента 21
3.7 Назначение режимов наплавки 22
3.7.1 Определение режимов наплавки 23
3.8 Назначение режимов резания 25
3.9 Нормирование технологического процесса 27
Заключение 31
Список использованных источников 32


Сообщить о проблеме
Дата
01.04.2026
Язык
Русский
Состав
ПЗ, сборочный чертеж вал-шестерня, маршрутная карта, 4 чертежа восстановления детали.
Софт
КОМПАС-3D 26 Как открыть?
Отзывов пока нет
Задать вопрос
Содержимое архива
  • icon-cdw 1.cdw
  • icon-cdw 2.cdw
  • icon-cdw 3.cdw
  • icon-cdw 4.cdw
  • icon-doc 214561_resen_27.docx
  • icon-cdw Вал-шестерня_правки.cdw
  • icon-cdw марш.карта правки.cdw
Чтобы скачать чертеж, 3D модель или проект, Вы должны зарегистрироваться и принять участие в жизни сайта. Посмотрите, как тут скачивать файлы
Отзывов пока нет
Чтобы оставить отзыв, необходимо войти
Войти с помощью:

Используя функцию входа через сторонние сервисы, Вы соглашаетесь на обработку персональных данных в соответствии с Политикой конфиденциальности