Перейти к содержимому
Войти

Проектирование машиностроительного участка

0
5
1288
13
0
40

Воронежский государственный университет
Кафедра технологии машиностроения
Расчетно-графическое задание по дисциплине «Проектирование машиностроительного производства»
на тему: «Проектирование машиностроительного участка»
Воронеж 2015

Исходные данные: Вариант № 10
Деталь - «Корпус». Масса – 30 кг. Программа – 7860 шт.
№ операции Наименование операции Оборудование (наименование, модель) Т0, мин
005 Фрезерная Гориз.-фрезерный мод. 6Н80 19,65
010 Фрезерная Гориз.-фрезерный мод. 6Н80 20,52
015 Токарная Токарный мод. 1284 9,67
020 Токарная Токарный мод. 1284 12,7
025 Фрезерная Вертик.-фрезерный мод. 6М12П 15,4
030 Сверлильная Вертик.-сверлильный мод. 2Н150 5,7
035 Сверлильная Вертик.-сверлильный мод. 2С135 11,2
040 Фрезерная (чистовая) Вертик.-фрезерный мод. 6Н104 16,3
045 Шлифовальная Плоскошлифовальный мод. 3Г71 19,71
050 Контрольная

Данная работа включает разработку технологии в виде технологических карт на обработку деталей; определение количества оборудования по отделениям и цеху в целом и его загрузки; расчет количества работающих в цехе и на участках; выбор сетки колонн и высоты цеха с учетом подъемно-транспортных средств; определение площади отделений, участков и общая планировка оборудования и рабочих мест в механическом цехе, разработка компоновки цеха; определение площади заготовок и готовых деталей, а также вспомогательных помещений.
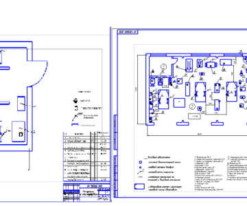
Графическая часть содержит чертеж плана участка

Содержание

Замечание руководителя работы
Задание
1 Состав механического цеха
2 Определение типа производства
3 Расчет количества основного оборудования по станкоемкости мех. обработки
4 Расчет площади производственного участка
5 Расчет количества производственных и вспомогательных рабочих
6 Расчет площади складов заготовок и готовых деталей на участке цеха
7 Выбор транспортного оборудования
8 Система транспортирования стружки
9 Общая планировка оборудования и рабочих мест в механическом цехе
Заключение
Список литературы


Сообщить о проблеме
Автор
user-avatar artur170195
Дата
18.10.2018
Язык
Русский
Состав
Чертеж (план участка), спецификация, ПЗ
Софт
КОМПАС-3D 16 Как открыть?
Отзывов пока нет
Задать вопрос
Содержимое архива
  • icon-doc ПЗ.docx
  • icon-cdw план участка.cdw
  • icon-spw спецификаця участка.spw
Чтобы скачать чертеж, 3D модель или проект, Вы должны зарегистрироваться и принять участие в жизни сайта. Посмотрите, как тут скачивать файлы
Отзывов пока нет
Чтобы оставить отзыв, необходимо войти
Войти с помощью:

Используя функцию входа через сторонние сервисы, Вы соглашаетесь на обработку персональных данных в соответствии с Политикой конфиденциальности