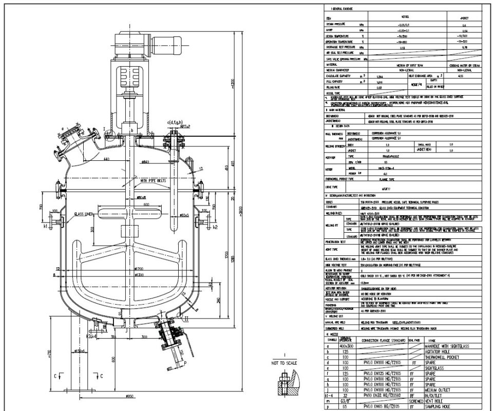
3D Модель эмалированного реактора-смесителя производителя ZIBO TAIJI объемом 1,616 м3 для визуализации в сборках оборудования. Нанесены все патрубки в соответствии с китайским ГОСТом HG/T2105, фланцы которых соответствуют ГОСТ 12820-80.
- Главная -
- Чертежи -
- Промышленность -
- Химическая промышленность (ПАХТ и ПАПП) -
- Реактор-смеситель KF1000L
Реактор-смеситель KF1000L
0
2
115
10
0
Бесплатно



Сообщить о проблеме
Автор
Дата
24.02.2025
Язык
Русский
Состав
Модель одной деталью
Софт
SolidWorks 2023
Как открыть?
Отзывов пока нет
Содержимое архива
Чтобы скачать чертеж, 3D модель или проект, Вы должны зарегистрироваться
и принять участие в жизни сайта. Посмотрите, как тут скачивать
файлы
Задания с фриланса
Отзывов пока нет
Чтобы задать вопрос, необходимо войти
Войти с помощью:
Ссылка на логин через google
Ссылка на логин через vk
Ссылка на логин через yandex