Перейти к содержимому
Войти

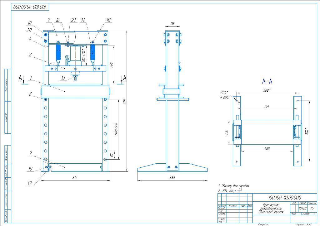
Пресс ручной гидравлический 6 тон.

0
4
222
2
0
130

Выпустил сборку для друга, 3д модель, чертежи, спецификации, пдф. Пресс под гидравлический бутылочный домкрат 6 тон, ширина стола макс. 480х230мм., высота заготовки регулируется до 600мм (шаг 80 мм), габариты 1314х644х650 мм, полезная работа домкрата подхват от 190мм до 420мм (зависит от купленной модификации)


Сообщить о проблеме
Автор
user-avatar Сергей
Дата
24.10.2025
Язык
Русский
Состав
3D Сборка, чертежи, спецификация
Софт
КОМПАС-3D 23.03.2285 Как открыть?
Отзывов пока нет
Задать вопрос
Содержимое архива
    • icon-a3d
      100.100-10.00.000 Пресс ручной гидравлический.a3d
    • icon-jpg
      100.100-10.00.000 Пресс ручной гидравлический.jpg
    • icon-step
      100.100-10.00.000 Пресс ручной гидравлический.stp
    • icon-cdw
      100.100-10.00.000 СБ.cdw
    • icon-pdf
      100.100-10.00.000 СБ.pdf
    • icon-pdf
      100.100-10.00.000 Спецификация.pdf
    • icon-spw
      100.100-10.00.000 Спецификация.spw
    • icon-cdw
      100.100-10.00.001 Перемычка.cdw
    • icon-m3d
      100.100-10.00.001 Перемычка.m3d
    • icon-pdf
      100.100-10.00.001 Перемычка.pdf
    • icon-cdw
      100.100-10.00.002 Штырь.cdw
    • icon-m3d
      100.100-10.00.002 Штырь.m3d
    • icon-pdf
      100.100-10.00.002 Штырь.pdf
    • icon-cdw
      100.100-10.00.003 Пластина.cdw
    • icon-m3d
      100.100-10.00.003 Пластина.m3d
    • icon-pdf
      100.100-10.00.003 Пластина.pdf
    • icon-cdw
      100.100-10.00.004 Шпилька.cdw
    • icon-m3d
      100.100-10.00.004 Шпилька.m3d
    • icon-pdf
      100.100-10.00.004 Шпилька.pdf
    • icon-a3d
      100.100-10.10.000 Основание.a3d
    • icon-cdw
      100.100-10.10.000 СБ.cdw
    • icon-pdf
      100.100-10.10.000 СБ.pdf
    • icon-pdf
      100.100-10.10.000 Спецификация.pdf
    • icon-spw
      100.100-10.10.000 Спецификация.spw
    • icon-m3d
      100.100-10.10.001 Опора.m3d
    • icon-cdw
      100.100-10.10.002 Ручка.cdw
    • icon-m3d
      100.100-10.10.002 Ручка.m3d
    • icon-pdf
      100.100-10.10.002 Ручка.pdf
    • icon-m3d
      100.100-10.10.003 Ребро.m3d
    • icon-m3d
      100.100-10.10.004 Плита.m3d
    • icon-a3d
      100.100-10.20.000 Основание для домкрата.a3d
    • icon-cdw
      100.100-10.20.000 СБ.cdw
    • icon-pdf
      100.100-10.20.000 СБ.pdf
    • icon-pdf
      100.100-10.20.000 Спецификация.pdf
    • icon-spw
      100.100-10.20.000 Спецификация.spw
    • icon-cdw
      100.100-10.20.001 Перемычка.cdw
    • icon-m3d
      100.100-10.20.001 Перемычка.m3d
    • icon-pdf
      100.100-10.20.001 Перемычка.pdf
    • icon-m3d
      100.100-10.20.002 Заглушка.m3d
    • icon-cdw
      100.100-10.20.003 Планка.cdw
    • icon-m3d
      100.100-10.20.003 Планка.m3d
    • icon-pdf
      100.100-10.20.003 Планка.pdf
    • icon-cdw
      100.100-10.20.004 Стакан.cdw
    • icon-m3d
      100.100-10.20.004 Стакан.m3d
    • icon-pdf
      100.100-10.20.004 Стакан.pdf
    • icon-cdw
      100.100-10.20.005 Штырь.cdw
    • icon-m3d
      100.100-10.20.005 Штырь.m3d
    • icon-pdf
      100.100-10.20.005 Штырь.pdf
    • icon-a3d
      100.100-10.30.000 Опора.a3d
    • icon-cdw
      100.100-10.30.000 СБ.cdw
    • icon-pdf
      100.100-10.30.000 СБ.pdf
    • icon-pdf
      100.100-10.30.000 Спецификация.pdf
    • icon-spw
      100.100-10.30.000 Спецификация.spw
    • icon-cdw
      100.100-10.30.001 Уголок.cdw
    • icon-m3d
      100.100-10.30.001 Уголок.m3d
    • icon-pdf
      100.100-10.30.001 Уголок.pdf
    • icon-m3d
      100.100-10.30.002 Перемычка.m3d
    • icon-a3d
      100.100-10.40.000 Опора стойки.a3d
    • icon-cdw
      100.100-10.40.000 Опора стойки.cdw
    • icon-pdf
      100.100-10.40.000 Опора стойки.pdf
    • icon-cdw
      100.100-10.40.000 СБ.cdw
    • icon-pdf
      100.100-10.40.000 Спецификация.pdf
    • icon-spw
      100.100-10.40.000 Спецификация.spw
    • icon-cdw
      100.100-10.40.001 Боковина.cdw
    • icon-m3d
      100.100-10.40.001 Боковина.m3d
    • icon-pdf
      100.100-10.40.001 Боковина.pdf
    • icon-m3d
      100.100-10.40.002 Заглушка.m3d
    • icon-m3d
      Домкрат.m3d
    • icon-none
      Проектный расчет пружины растяжения по ГОСТ 13765-86. Подбор по таблицам.xces
    • icon-m3d
      Пружина.m3d
    • icon-m3d
      Пуансон.m3d
Чтобы скачать чертеж, 3D модель или проект, Вы должны зарегистрироваться и принять участие в жизни сайта. Посмотрите, как тут скачивать файлы
Отзывов пока нет
Чтобы оставить отзыв, необходимо войти
Войти с помощью:

Используя функцию входа через сторонние сервисы, Вы соглашаетесь на обработку персональных данных в соответствии с Политикой конфиденциальности