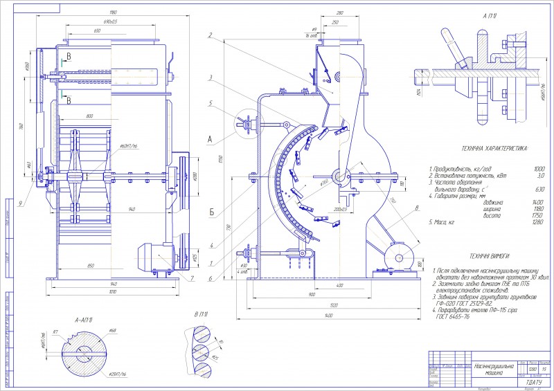
семеннорушильная машина предназначена для обрушения семян подсолнечника при производстве подсолнечного масла
- Главная -
- Чертежи -
- Промышленность -
- Оборудование для технологических процессов -
- Очистка и сепарирование -
- Быльная семеннорушильная машина
Быльная семеннорушильная машина
0
217
2236
3
1
200

Сообщить о проблеме
Автор
Дата
16.04.2011
Язык
Русский
Состав
вид общий (ВО), Сборочный чертеж(СБ), Спецификация
Софт
КОМПАС-3D
Как открыть?
Отзывов пока нет
Содержимое архива
Чтобы скачать чертеж, 3D модель или проект, Вы должны зарегистрироваться
и принять участие в жизни сайта. Посмотрите, как тут скачивать
файлы
Отзывов пока нет
Чтобы задать вопрос, необходимо войти
Войти с помощью:
Ссылка на логин через google
Ссылка на логин через vk
Ссылка на логин через yandex