Перейти к содержимому
Войти

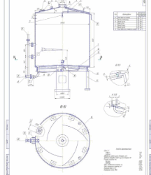
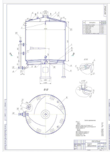
Гидроциклонный аппарат для осветления пивного сусла

0
116
1153
1
2
1 000

Национальный университет пищевых технологий
Кафедра машино строительства
Дипломная работа на тему " Гидроциклонный аппарат для осветления пивного сусла"
Киев 2016

Вступ
1. Порівняльний аналіз технічних рішень поставленої задачі
2. Техніко-економічне, соціальне обґрунтування
3. Характеристика вхідного матеріалу і готової продукції. Опис запропонованого технічного рішення. Будова та принцип роботи обладнання
4. Вибір конструкційних матеріалів
5. Розрахункова частина
6. Вимоги до монтажу, експлуатації та ремонту
7. Технологія виготовлення окремих деталей
8. Система управління
9. Охорона праці
10. Охорона довкілля
Висновки
Список використаної літератури
Додатки

Кваліфікаційна робота на тему «Модернізація гідроциклонного апарату з метою покращення якості освітлення пивного сусла» виконаний згідно виданому завданню.
Під час виконання кваліфікаційної роботи було наведено сучасний стан пивоварної галузі, проведений аналіз існуючого обладнання та технології процесу освітлення пивного сусла. Проведено технологічний розрахунок гідроциклонного апарату, розрахунок ефективності процесу освітлення сусла, геометричний та технологічний розрахунок апарату, викладені основні вимоги до монтажу, експлуатації та ремонту обладнання. Висвітлені питання автоматизації, техніки безпеки та охорони навколишнього середовища. А також здійснена модернізація гідроциклонного апарату.
Кваліфікаційна робота складається з ___ аркушів пояснювальної записки та ___ листів креслень формату А1, на яких зображено загальний вигляд і модернізація обладнання, вузли та деталювання.


Сообщить о проблеме
Дата
30.11.2016
Язык
Украинский
Состав
Гидроциклонный аппарат, Деталировка (крышка), Виды ГА, Спецификация
Софт
КОМПАС-3D 15 Как открыть?
Отзывов пока нет
Задать вопрос
Содержимое архива
        • icon-cdw
          Gidrotsiklon_zag_viglyad.cdw
        • icon-cdw
          Pristriy_zmivny_vid_zboku.cdw
        • icon-doc
          Spetsifikatsiya_ark__1_Aparat_gidrotsiklonny.doc
        • icon-doc
          Spetsifikatsiya_ark__2_pvp.doc
        • icon-cdw
          КЛАПАН.cdw
        • icon-cdw
          Спецификация клапан.cdw
        • icon-cdw
          Схема _ НУХТ.ДП.044б..cdw
      • icon-cdw
        Gidrotsiklon_zag_viglyad.cdw
      • icon-cdw
        Pristriy_zmivny_vid_zboku.cdw
      • icon-doc
        Spetsifikatsiya_ark__1_Aparat_gidrotsiklonny.doc
      • icon-doc
        Spetsifikatsiya_ark__2_pvp.doc
      • icon-cdw
        Tekhnologiya_vigotovlennya_okremikh_detaley.cdw
      • icon-cdw
        КЛАПАН.cdw
      • icon-cdw
        Спецификация клапан.cdw
      • icon-cdw
        Схема _ НУХТ.ДП.044б..cdw
    • icon-doc
      1Порівняльний аналіз технічних рішень поставленої задачі.docx
    • icon-doc
      2Техніко-економічне, соціальне обґрунтування.docx
    • icon-doc
      3Характеристика вхідного матеріалу і готової продукції.docx
    • icon-doc
      4Вибір конструкційних матеріалів.docx
    • icon-doc
      5розрахункова частина.docx
    • icon-doc
      6Вимоги до монтажу, експлуатації та ремонту.docx
    • icon-doc
      7. Технологія виготовлення окремих деталей.doc
    • icon-doc
      8.Система управління.docx
    • icon-doc
      9.Охорона праці.docx
    • icon-doc
      10.Охорона довкілля..docx
    • icon-doc
      Висновки.docx
    • icon-doc
      Вступ.docx
    • icon-doc
      Список використаної літератури.docx
    • icon-doc
      анотація.docx
    • icon-doc
      зміст.docx
Чтобы скачать чертеж, 3D модель или проект, Вы должны зарегистрироваться и принять участие в жизни сайта. Посмотрите, как тут скачивать файлы
Отзывов пока нет
Чтобы оставить отзыв, необходимо войти
Войти с помощью:

Используя функцию входа через сторонние сервисы, Вы соглашаетесь на обработку персональных данных в соответствии с Политикой конфиденциальности