Перейти к содержимому
Войти

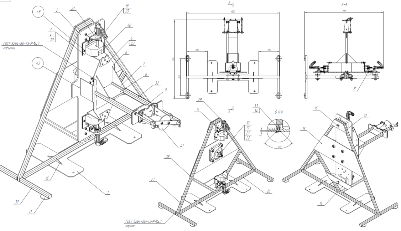
Вращающаяся стойка для сварки 2-х труб и стакана на роботизированную сварку

0
3
65
0
0
250

Стойка предназначена для быстрой установки и позиционирования двух труб и стакана светильника при сварке между собой на роботизированной сварке. Стойка вращается благодаря подшипниковому узлу, предусмотрена возможность фиксации стойки на сварочном столе. Комплектующие стойки изготавливаются на станке с ЧПУ, токарном станке и лазере.


Сообщить о проблеме
Автор
user-avatar Abotin
Дата
14.02.2026
Язык
Русский
Состав
Сборочный чертеж, спецификация, 3Д-модели деталей, dxf-файлы для написания программ на лазер, деталировка всех деталей.
Софт
T-FLEX CAD 17
Отзывов пока нет
Задать вопрос
Содержимое архива
    • icon-grb 7809-0438.00 Приспособление для сварки труб и стакана VALLEY LED.grb
    • icon-pdf 7809-0438.00 Приспособление для сварки труб и стакана VALLEY LED.pdf
    • icon-step 7809-0438.00 Приспособление для сварки труб и стакана VALLEY LED.stp
    • icon-dxf 7809-0438.00-001 Основание ст3 л.3.0.dxf
    • icon-dxf 7809-0438.00-002 Плита вращения ст3 л.3.0.dxf
    • icon-dxf 7809-0438.00-005 Направляющая 1 08пс л.3.0.dxf
    • icon-dxf 7809-0438.00-006 Направляющая 2 08пс л.3.0.dxf
    • icon-dxf 7809-0438.00-008 Фиксатор трубы 08пс л.3.0.dxf
    • icon-dxf 7809-0438.00-009 Кронштейн ст3 л.3.0.dxf
    • icon-dxf 7809-0438.00-010 Косынка 1 ст3 л.3.0.dxf
    • icon-dxf 7809-0438.00-011 Косынка 2 ст3 л.3.0.dxf
    • icon-dxf 7809-0438.00-012 Косынка 3 ст3 л.3.0.dxf
    • icon-grb 7809-0438.00-013 Вал.grb
    • icon-pdf 7809-0438.00-013 Вал.pdf
    • icon-grb 7809-0438.00-014 Фиксатор положения.grb
    • icon-pdf 7809-0438.00-014 Фиксатор положения.pdf
    • icon-dxf 7809-0438.00-015 Планка верх ст3 л.6.0.dxf
    • icon-dxf 7809-0438.00-016 Планка центр ст3 л.3.0.dxf
    • icon-dxf 7809-0438.00-017 Планка низ ст3 л.6.0.dxf
    • icon-dxf 7809-0438.00-021 Косынка 4 ст3 л.3.0.dxf
    • icon-grb 7809-0438.00-026 Штырь положения (сборный).grb
    • icon-grb 7809-0438.00-026 Штырь положения.grb
    • icon-pdf 7809-0438.00-026 Штырь положения.pdf
    • icon-dxf 7809-0438.00-027 Пятачок ст3 л.3.0.dxf
    • icon-grb 7809-0438.00-028 Планка под прижим.grb
    • icon-pdf 7809-0438.00-028 Планка под прижим.pdf
    • icon-grb 7809-0438.00-10 Прижим трубы.grb
    • icon-pdf 7809-0438.00-10 Прижим трубы.pdf
    • icon-grb 7809-0438.00-10-001 Прижим.grb
    • icon-pdf 7809-0438.00-10-001 Прижим.pdf
    • icon-dxf 7809-0438.00-10-002 Пластина ал л.3.0.dxf
    • icon-grb 7809-0438.00-10-003 Штырь.grb
    • icon-pdf 7809-0438.00-10-003 Штырь.pdf
    • icon-grb 7809-0438.00-20 Прижим стакана.grb
    • icon-pdf 7809-0438.00-20 Прижим стакана.pdf
    • icon-dxf 7809-0438.00-20-001 Опора ст3 л.3.0.dxf
    • icon-dxf 7809-0438.00-20-002 Трафарет ст3 л.3.0.dxf
    • icon-dxf 7809-0438.00-20-003 Кронштейн ст3 л.3.0.dxf
    • icon-dxf 7809-0438.00-20-004 Косынка ст3 л.3.0.dxf
    • icon-dxf 7809-0438.00-20-005 Прижим 1 ст3 л.3.0.dxf
    • icon-dxf 7809-0438.00-20-006 Прижим 2 ал л.3.0.dxf
    • icon-grb 7809-0438.00-20-007 Штырь.grb
    • icon-pdf 7809-0438.00-20-007 Штырь.pdf
    • icon-grb 7809-0438.00-20-008 Штырь-фиксатор (сборный).grb
    • icon-grb 7809-0438.00-20-008 Штырь-фиксатор.grb
    • icon-pdf 7809-0438.00-20-008 Штырь-фиксатор.pdf
    • icon-grb CH-30250.grb
    • icon-grb UCF 208.grb
    • icon-grb винт под прижимную планку.grb
    • icon-grb упор подвижный.grb
    • icon-grb ходовые планки.grb
    • icon-grb штырь конический под стакан.grb
    • icon-grb штырь конический под трубы.grb
    • icon-grb штырь конический под фиксацию положения.grb
Чтобы скачать чертеж, 3D модель или проект, Вы должны зарегистрироваться и принять участие в жизни сайта. Посмотрите, как тут скачивать файлы
Отзывов пока нет
Чтобы оставить отзыв, необходимо войти
Войти с помощью:

Используя функцию входа через сторонние сервисы, Вы соглашаетесь на обработку персональных данных в соответствии с Политикой конфиденциальности