Перейти к содержимому
Войти

Капитальный ремонт здания ГКП на ПХВ "Городская поликлиника " г.Астана

0
1
68
1
0
60

Проект поликлиники раздела ТХ.
· организация приема населения;
· выполнение диагностических процедур;
· оказание первой помощи м терапевтических манипуляций;
· санитарную обработку помещений, оборудования и инструментария;
· ведение учета и отчетности через ИС;
· соблюдение санитарно-гигиенического и эпидрежима.

1. Исходными данными для разработки чертежей марки ТХ послужили:
- договор на разработку проекта;
- задание на проектирование;
- архитектурно-строительные чертежи;
- СН РК 3.02-13-2014 "ЛЕЧЕБНО-ПРОФИЛАКТИЧЕСКИЕ УЧРЕЖДЕНИЯ".
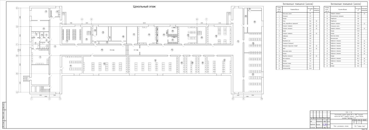
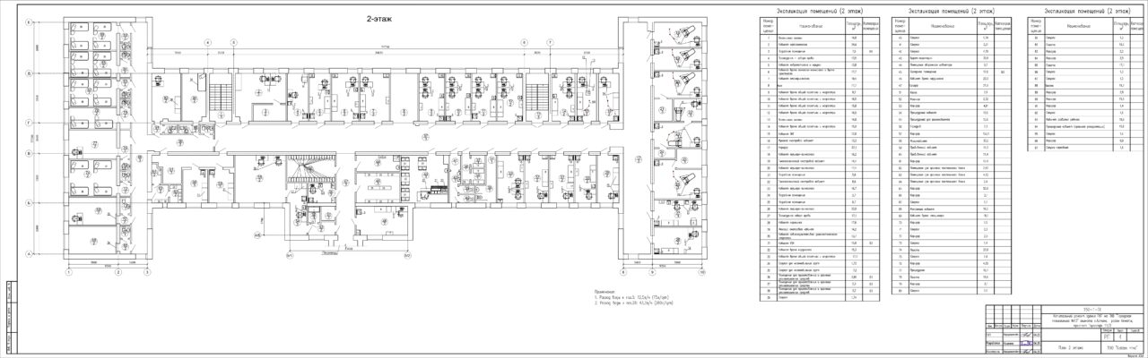
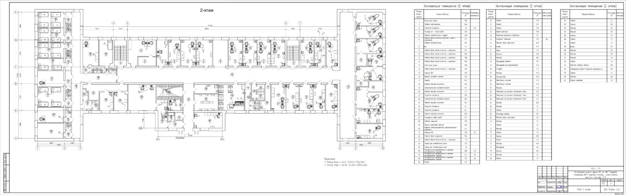
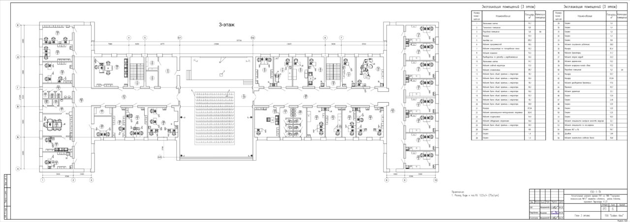
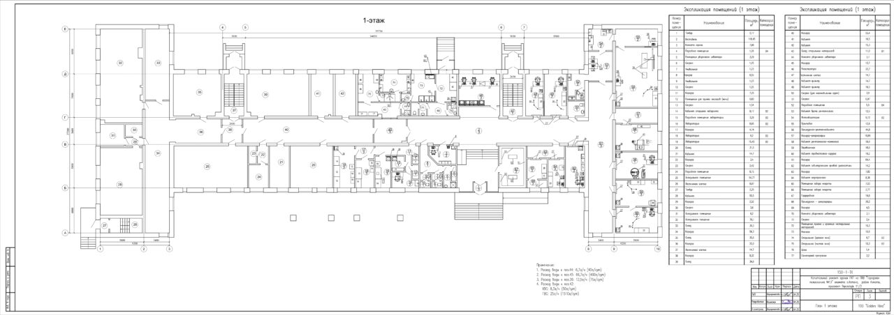
2. Здание поликлиники и представляет собой трехэтажное здание с цокольным этажом, размерами в плане по осям 55730х27200мм.
3. Цокольный этаж используются в основном под склады, раздевальные, хранилища, помещения для мед. отходов и технические зоны;
1 этаж - лабораторные и диагностические кабинеты;
2 этаж - кабинеты врачей общей практики, гинекологии, ЭКГ, скрининга, процедурные, УЗИ, физиотерапия;
3 этаж - административные кабинеты, кабинет стоматолога, психолога, актовый зал, конференц-зал.
4. Поликлиника функционирует в две смены, с 08:00 до 20:00, шесть дней в неделю. В некоторых кабинетах (лаборатория, ЦСО, охрана) возможна работа в круглосуточном режиме.
5. Деятельность поликлиники организована по принципу логистики замкнутых потоков, исключающих перекрещивание пациентов, персонала, биоматериалов, отходов и стерильных/нестерильных предметов.
6. Поликлиника функционирует в две смены, 6 дней в неделю, с учетом графиков дежурств.
7. Последовательность технологического процесса:
· Обращение пациента через регистратуру, электронную очередь илиипо записи;
· Первичный прием врачом общей практики или специалистом;
· назначения;
· Прохождение обследований в строго зонированных отделениях:
a. лаборатория;
b. диагностика;
c. процедурные/прививочные/перевязочные.

· Получение результатов, повторный прием, постановка диагноза, рекомендации;
· Назначение лечения или диспенсерное наблюдение;
· Ведение документации;
· При необходимости - дневной стационар, госпитализация или перевод в ЛПУ стационарного типа.

8. Основные технологические процессы включают:
· организацию приема населения;
· выполнение диагностических процедур;
· оказание первой помощи м терапевтических манипуляций;
· санитарную обработку помещений, оборудования и инструментария;
· ведение учета и отчетности через ИС;
· соблюдение санитарно-гигиенического и эпидрежима.

9. Предусмотрена централизованная стерилизация инструментов
Организован сбор, временное хранение и вывоз медицинских отходов классов А, Б, В
Раздельное хранение чистого и грязного белья
Кабинеты оснащены столами с мойками
Внедрена система электронного документоотбора и цифровой очереди.


Сообщить о проблеме
Автор
user-avatar user-2758443
Дата
15.10.2025
Язык
Русский
Состав
План подвала, План 1 этажа, План 2 этажа, План 3 этажа
Софт
Отзывов пока нет
Задать вопрос
Содержимое архива
  • icon-dwg -ТХ.dwg
Чтобы скачать чертеж, 3D модель или проект, Вы должны зарегистрироваться и принять участие в жизни сайта. Посмотрите, как тут скачивать файлы
Отзывов пока нет
Чтобы оставить отзыв, необходимо войти
Войти с помощью:

Используя функцию входа через сторонние сервисы, Вы соглашаетесь на обработку персональных данных в соответствии с Политикой конфиденциальности