Перейти к содержимому
Войти

КМ цеха по производству строительных материалов г.Астаны

0
0
37
0
0
50

План металлоконструкций цеха, план ферм, план колонн, детальные узлы, 18 метровые и 24 метровые

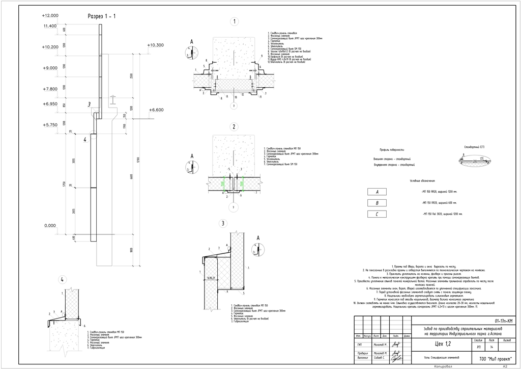
Рабочая документация (чертежи КМ) металлоконструкций покрытия завода по производству строительных материалов , а также балки под крановые пути разработаны в соответствии с действующими нормами РК. Исходными данными для проектирования в части объемно-планировочных решений являются задание на проектирование и эскизный проект. Здание одноэтажное, однопролетное, прямоугольное в плане в осях А-В/1-34.
Колонны - железобетонные прямоугольного сечения. Здание имеет три температурных блока с двумя рядами колонн по осям "12" и "22". Шаг колонн 6м , кроме в местах температурных швов.

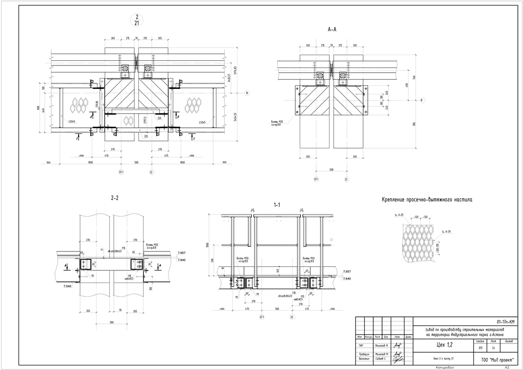
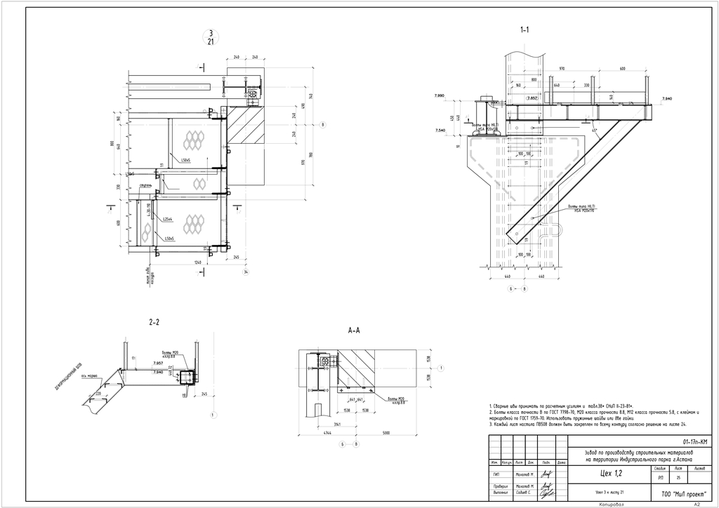
Покрытие состоит из стропильных ферм длиной 24.15м, шагом 6м, а так же балок по торцу ось 34. Стропильные фермы и балки имеют уклон 15.65% от конька к опорам. Отметка низа стропильных ферм +10.000. Фермы крепить к ж/б колоннам шарнирно с помощью анкерных болтов в ж/б колоннах. . Балки шарнирно крепить к мет. колоннам с помощью анкерных болтов.

Элементы ферм, связи, распорки, стойки - выполнены из гнутосварных квадратных профилей. Балки покрытия из прокатных двутавров.
Устойчивость здания обеспечена жесткостью ж/б колонн. Устойчивость покрытия обеспечена системой горизонтальных связей по верхним поясам ферм, распорками по верхним и нижним поясам ферм и профилированным настилом. Профилированный настил уложен листами длиной ~12м по двухпролетной схеме, и двойной по однопролетный схеме у оси "34".
На верхние пояса стропильных ферм установлены рамки дымоудаления.
В осях "А-Б" (внутри производственного корпуса) и в соях "Б-В" (на открытом складе), предусмотрены крановые пролеты. Отметка головки рельса +7.950. Пролет кранов 23.17м. В осях "А-Б" предусмотрено 3 крана грузоподъемностью 10т каждый, а восях "Б-В" предусмотрено 2 крана грузоподъемностью 2*5т=10т каждый. . Подкрановые балки выполнены из сварных двутавров асимметричного сечения с крановым рельсом прямоугольного сечения 80х60мм.


Сообщить о проблеме
Автор
user-avatar user-7292991
Дата
19.02.2026
Язык
Русский
Состав
км
Софт
AutoCAD 2018 Как открыть?
Отзывов пока нет
Задать вопрос
Содержимое архива
  • icon-dwg КМ Цех-1,2.dwg
Чтобы скачать чертеж, 3D модель или проект, Вы должны зарегистрироваться и принять участие в жизни сайта. Посмотрите, как тут скачивать файлы
Отзывов пока нет
Чтобы оставить отзыв, необходимо войти
Войти с помощью:

Используя функцию входа через сторонние сервисы, Вы соглашаетесь на обработку персональных данных в соответствии с Политикой конфиденциальности