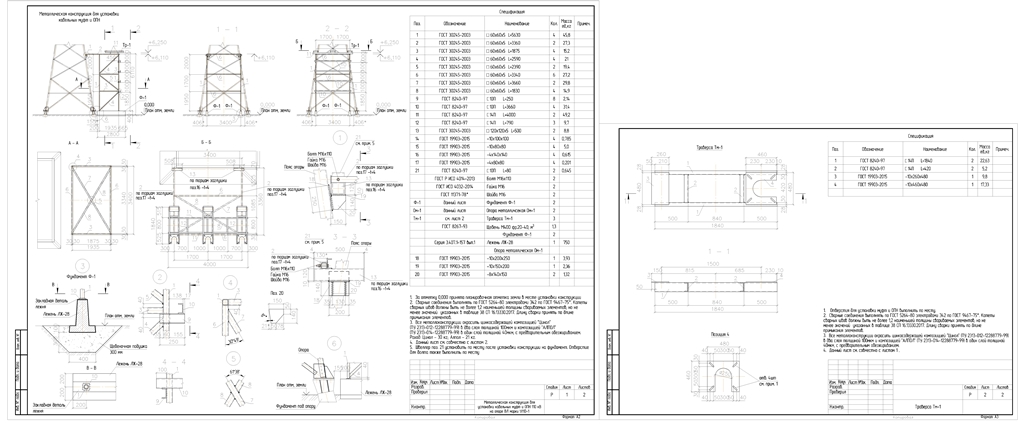
Универсальная металлическая конструкция для установки концевых кабельных муфт и ОПН 110 кВ на типовой анкерной опоре ВЛ марки У110-1. Применяется при строительстве новой кабельно-воздушной линии электропередач напряжением 110 кВ и при реконструкции существующих ВЛ 110кВ для организации переходного пункта "воздух-земля" на существующей типовой опоре марки У110-1. Конструкция имеет собственное основание (фундамент), что позволяет избежать дополнительных мероприятий по усилению конструкций существующих опор ВЛ.
- Главная -
- Чертежи -
- Строительство -
- Металлоконструкции -
- Металлическая конструкция для установки кабельных муфт и ОПН 110 кВ
Металлическая конструкция для установки кабельных муфт и ОПН 110 кВ
0
0
19
0
0
100
110кВ
Кабельная муфта
кабельно-воздушная линия
КВЛ
Конструкция для муфт
Концевая кабельная муфта
ЛЭП 110кВ
ОПН
Опора У110-1
Переходной пункт
Сообщить о проблеме
Автор
Дата
12.03.2026
Язык
Русский
Состав
Два листа: Металлическая конструкция для установки кабельных муфт и ОПН 110 кВ на опоре ВЛ марки У110-1, Траверса Тм-1
Софт
AutoCAD 2018
Как открыть?
Отзывов пока нет
Содержимое архива
-
Металлическая конструкция для установки кабельных муфт и ОПН 110 кВ на опоре ВЛ марки У110-1.dwg
Чтобы скачать чертеж, 3D модель или проект, Вы должны зарегистрироваться
и принять участие в жизни сайта. Посмотрите, как тут скачивать
файлы
Задания с фриланса
Требуется спроектировать и создать документацию для изготовления металлической конструкции ( рамка)
договорная
2 недели назад
Отзывов пока нет
Чтобы оставить отзыв, необходимо войти
Войти с помощью:
Используя функцию входа через сторонние сервисы, Вы соглашаетесь на обработку персональных данных в соответствии с Политикой конфиденциальности
Используя функцию входа через сторонние сервисы, Вы соглашаетесь на обработку персональных данных в соответствии с Политикой конфиденциальности