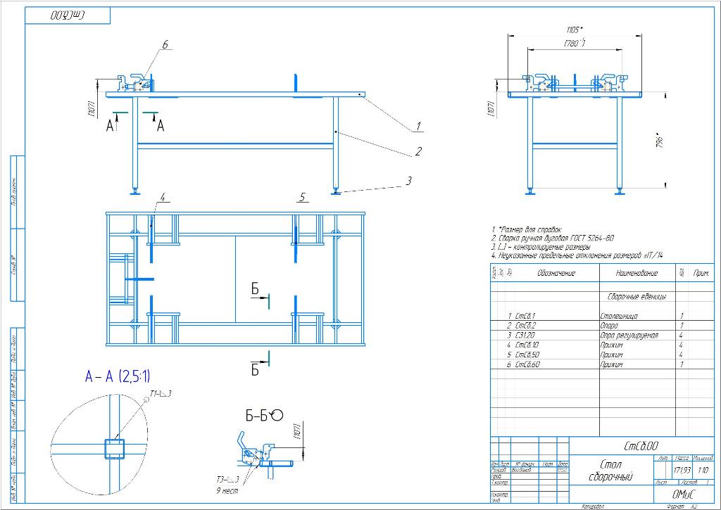
Проект сварочного приспособления для сборки металлического дверного короба из профильной трубы
- Главная -
- Чертежи -
- Строительство -
- Металлоконструкции -
- Приспособление для сборки металлического дверного короба
Приспособление для сборки металлического дверного короба
0
2
45
0
0
100
Сообщить о проблеме
Автор
Дата
09.10.2025
Язык
Русский
Состав
чертежи (см.. список файлов), 3д сборка в step
Софт
КОМПАС-3D 22
Как открыть?
Отзывов пока нет
Содержимое архива
-
Гнездо _ СЗ1.10.cdw
-
Металлоконструкция _ СтСб.20.cdw
-
Металлоконструкция _ СтСб.30.cdw
-
Ограничитель _ СтСб.13.cdw
-
Опора _ СтСб.2.cdw
-
Опора регулируемая _ СЗ1.20.cdw
-
Планка _ СбСт.63.cdw
-
Пластина _ СтСб.1.01.cdw
-
Пластина _ СтСб.1.02.cdw
-
Прижим _ СтСб.10.cdw
-
Прижим _ СтСб.60.cdw
-
Ручка _ СтСб.14.cdw
-
СтСб.00.stp
-
Столешница _ СтСб.1.cdw
-
Стол сборочный _ СтСб.00.cdw
-
Тяга _ СтСб.15.cdw
-
Шаблон для стоевых _ СтСб.11.cdw
-
Шаблон для стоевых _ СтСб.51.cdw
-
Шаблон для стоевых _ СтСб.61.cdw
-
Щека _ СтСб.12.cdw
Чтобы скачать чертеж, 3D модель или проект, Вы должны зарегистрироваться
и принять участие в жизни сайта. Посмотрите, как тут скачивать
файлы
Задания с фриланса
Требуется спроектировать и создать документацию для изготовления металлической конструкции ( рамка)
договорная
25.02.2026
2 дня назад
Отзывов пока нет
Чтобы оставить отзыв, необходимо войти
Войти с помощью:
Используя функцию входа через сторонние сервисы, Вы соглашаетесь на обработку персональных данных в соответствии с Политикой конфиденциальности
Используя функцию входа через сторонние сервисы, Вы соглашаетесь на обработку персональных данных в соответствии с Политикой конфиденциальности