Перейти к содержимому
Войти

Проектирование рабочей площадки - варианта, N 84(IIA)

0
160
1108
0
0
50

Оренбургский государственный университет
Кафедра Строительства и городского хозяйства
Курсовая работа по дисциплине "Металлические конструкции"
год 2014

Номер варианта, N 84(IIA)
Шаг колонн в продольном направлении А, м 16,0
Шаг колонн в поперечном направлении Б, м 8,0
Отметка верха настила H, м 7,8
Строительная высота перекрытия , м 2,4
Временная равномерно распределенная нагрузка , кН/м2 28
Район строительства г. Ульяновск
Тепловой режим, в котором находится рабочая площадка на открытом воздухе
Тип сечения колонны 4Ф
Конструкция базы с фрезерованным концом
Тип решетки безраскосная


Сообщить о проблеме
Автор
user-avatar bis-str704
Дата
25.03.2015
Язык
Русский
Состав
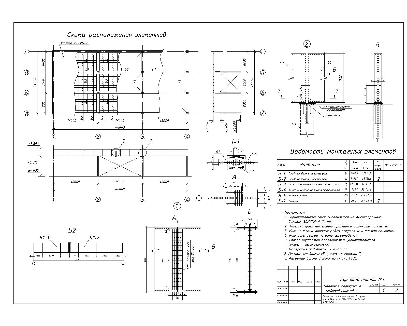
Схема расположения элементов, узлы 1 и 2, балка Б-2, ведомость монтажных элементов, ПЗ
Софт
Отзывов пока нет
Задать вопрос
Содержимое архива
  • icon-dwg МК.dwg
  • icon-doc МК ПЗ.doc
Чтобы скачать чертеж, 3D модель или проект, Вы должны зарегистрироваться и принять участие в жизни сайта. Посмотрите, как тут скачивать файлы
Отзывов пока нет
Чтобы оставить отзыв, необходимо войти
Войти с помощью:

Используя функцию входа через сторонние сервисы, Вы соглашаетесь на обработку персональных данных в соответствии с Политикой конфиденциальности