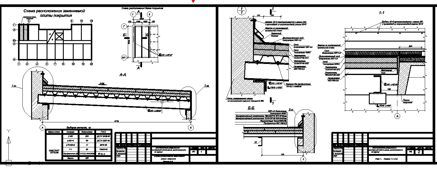
Восстановление разрушенных конструкций здания. Замена плит покрытия на легкий современный материал в жилом доме 96 серии. РП.
- Главная -
- Чертежи -
- Строительство -
- Металлоконструкции -
- Замена плит покрытия на легкие материалы
Замена плит покрытия на легкие материалы
0
160
873
1
0
50
Сообщить о проблеме
Автор
Дата
17.08.2015
Язык
Русский
Состав
Схема расположения заменяемой плиты покрытия, Узлы, Разрезы.
Софт
AutoCAD 2007
Как открыть?
Отзывов пока нет
Содержимое архива
-
АС 1 Замена плит покрытия.dwg
Чтобы скачать чертеж, 3D модель или проект, Вы должны зарегистрироваться
и принять участие в жизни сайта. Посмотрите, как тут скачивать
файлы
Отзывов пока нет
Чтобы оставить отзыв, необходимо войти
Войти с помощью:
Используя функцию входа через сторонние сервисы, Вы соглашаетесь на обработку персональных данных в соответствии с Политикой конфиденциальности
Используя функцию входа через сторонние сервисы, Вы соглашаетесь на обработку персональных данных в соответствии с Политикой конфиденциальности