Проект разработан для следующих климатических условий:
1. Расчетная зимняя температура - 36°С
2. Нормативная снеговая нагрузка - 320 кг/м²
3. Нормативный скоростной напор ветра - 38кг/м²
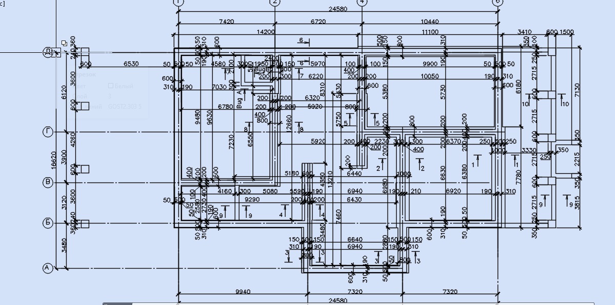
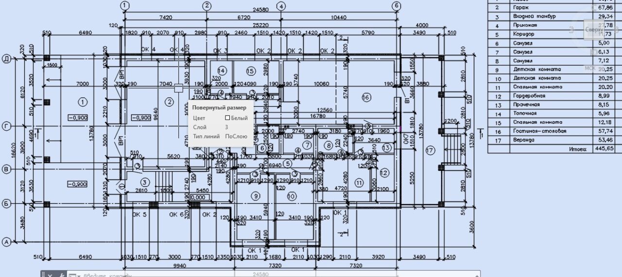
Размеры жилого дома в осях 10,97х9,98 м. H1эт =3,0м; Н манс.эт.=2,6м.
Наружные стены из силикатного кирпича М100 на цементно - песчаном растворе марки М50 с последующим утеплением по системе фасадной теплоизоляции "Фассолит" пенополистирольными плитами ПСБ-С-25 ( ГОСТ 15588-86) , штукатуркой и окраской цветным колером.
Внутренние стены из силикатного кирпича М100 на цементно - песчаном растворе марки М75 с последующей штукатуркой.
Перегородки в санузлах из керамического полнотелого кирпича М 100 на цементно-песчаном растворе М 75 , армированные
Перекрытие подвала и первог о этажа - сборные железобетонные плиты по серии 1.141-1 в.63 .
Крыша выполнена из стального профлиста по ГОСТ 24045-94 по деревянным наслонным стропилам и обрешетке из досок.
Утеплитель - плиты пенополистирольные по ГОСТ15588-86, толщиной 100 мм.
Общая площадь коттеджа - 445,45 м2
Коттедж одноэтажный
- Главная -
- Чертежи -
- Строительство -
- Проекты домов -
- Коттеджи и частные дома -
- Рабочий проект одноквартирного жилого дома с размерами в осях 24.580х16.620
Рабочий проект одноквартирного жилого дома с размерами в осях 24.580х16.620
0
0
60
0
0
400
Сообщить о проблеме
Автор
Дата
21.02.2026
Язык
Русский
Состав
Рабочий проект (АС) 18 листов, включая фасады, план фундаментов, план раскладки плит фундаментов, схема раскладки фунд блоков, сечения по фундаментам, план на отм. 0,000 спецфикации окон , план перемычек, разрез 1-1, 2-2, план плит перекрытия, план кровли, план стропил, схема вентканалов
Софт
AutoCAD 23
Как открыть?
Отзывов пока нет
Содержимое архива
-
жилой дом_1_4_1920.dwg
Чтобы скачать чертеж, 3D модель или проект, Вы должны зарегистрироваться
и принять участие в жизни сайта. Посмотрите, как тут скачивать
файлы
Отзывов пока нет
Чтобы оставить отзыв, необходимо войти
Войти с помощью:
Используя функцию входа через сторонние сервисы, Вы соглашаетесь на обработку персональных данных в соответствии с Политикой конфиденциальности
Используя функцию входа через сторонние сервисы, Вы соглашаетесь на обработку персональных данных в соответствии с Политикой конфиденциальности