Перейти к содержимому
Войти

Проектирование одноэтажного промышленного здания из железобетона г. Москва

0
0
59
1
0
50

Министерство науки и высшего образования Российской Федерации
Федеральное государственное бюджетное образовательное учреждение высшего образования
«НАЦИОНАЛЬНЫЙ ИССЛЕДОВАТЕЛЬСКИЙ
МОРДОВСКИЙ ГОСУДАРСТВЕННЫЙ УНИВЕРСИТЕТ
им. Н. П. ОГАРЁВА»
(ФГБОУ ВО «МГУ им. Н.П. Огарёва»)
Институт архитектуры и строительства
Кафедра строительных конструкций
КУРСОВОЙ ПРОЕКТ
по теме: «ПРОЕКТИРОВАНИЕ ОДНОЭТАЖНОГО ПРОМЫШЛЕННОГО ЗДАНИЯ ИЗ ЖЕЛЕЗОБЕТОНА»

Исходные данные для проектирования
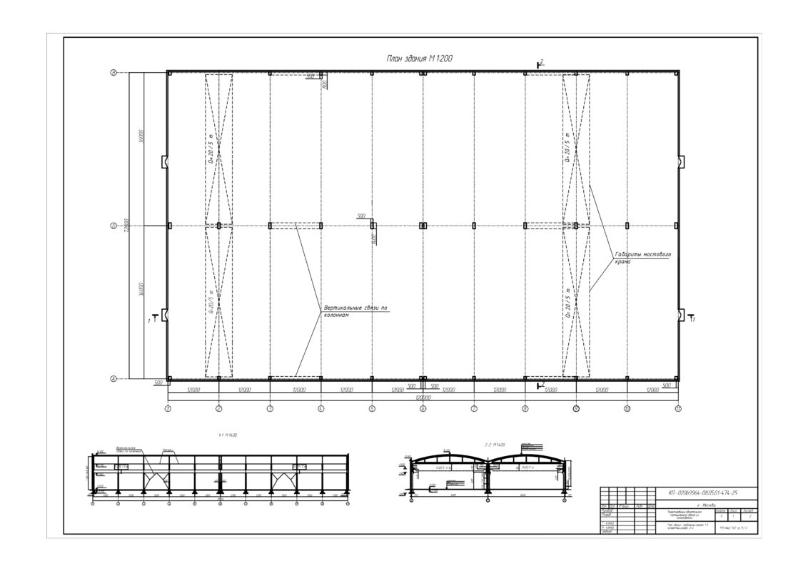
Длина здания: ___120___ м
Пролет здания: ___36__м
Количество пролетов: ___2___
Продольный шаг колонн: ____12____ м
Высота подкранового рельса: ____9,5____ м
Тип подкрановой балки: разрезная
Грузоподъемность кранов: 20/5 т
Количество кранов в пролете: 2 шт.
Режим работы кранов: средний
Сопряжение ригелей с колоннами: шарнирное
Главная несущая конструкция покрытия (ригель): арка
Расчетное сопротивление грунта: 0,32
Район строительства _______г. Москва_________
Классы бетона и арматурной стали ______В20/В30 А400/К1400______

СОДЕРЖАНИЕ

ВВЕДЕНИЕ 7
1 Компоновка конструктивной схемы одноэтажного промышленного здания 8
1.1 Определение внутренних габаритов здания 8
1.2 Компоновка покрытия 10
1.3 Разбивка здания на температурные блоки 11
1.4 Обеспечение пространственной жесткости каркаса 13
1.5 Выбор типа и предварительное назначение размеров сечений колонн 15
2. Расчёт поперечной рамы здания 22
2.1. Сбор нагрузок на поперечную раму. 22
2.1.1. Постоянные нагрузка 22
2.1.2 Временная нагрузка 26
2.2 Расчетная схема и загружения поперечной рамы 32
2.3 Определение расчетных сочетаний усилий 38
2.4 Расчет сечений и конструирование железобетонных колонн 38
2.4.1 Крайние колонны 40
2.4.2 Средняя колонна 42
3. Проектирование фермы покрытия 45
3.1 Расчетная схема фермы 46
3.2 Определение постоянных и временных нагрузок 47
3.3 Определение расчетных сочетаний усилий 48
3.4 Расчет сечений и конструирование элементов фермы 48
3.5 Расчет и конструирование узлов 50
4 Проектирование фундамента под колонну 53
4.1 Определение размеров подошвы фундамента и краевых давлений 54
4.2 Определение высоты фундамента и проверка нижней ступени 57
4.3 Подбор арматуры подошвы 60
4.4 Расчет арматуры подколонника 63
ЗАКЛЮЧЕНИЕ 68
СПИСОК ИСПОЛЬЗОВАННЫХ ИСТОЧНИКОВ 69
ПРИЛОЖЕНИЕ А Результаты расчета поперечной рамы здания в ПК ЛИРА 71
ПРИЛОЖЕНИЕ Б Результаты расчета фермы покрытия в ПК ЛИРА 85


Сообщить о проблеме
Автор
user-avatar user-4117462
Дата
06.04.2026
Язык
Русский
Состав
чертежи, ПЗ
Софт
AutoCAD 2024 Как открыть?
Отзывов пока нет
Задать вопрос
Содержимое архива
    • icon-dwg Чертеж1.dwg
    • icon-doc жбк 09.12.docx
Чтобы скачать чертеж, 3D модель или проект, Вы должны зарегистрироваться и принять участие в жизни сайта. Посмотрите, как тут скачивать файлы
Отзывов пока нет
Чтобы оставить отзыв, необходимо войти
Войти с помощью:

Используя функцию входа через сторонние сервисы, Вы соглашаетесь на обработку персональных данных в соответствии с Политикой конфиденциальности