Перейти к содержимому
Войти

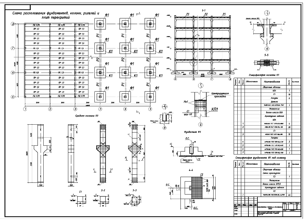
Проектирование железобетонных конструкций многоэтажного промышленного здания 40×18

0
0
66
0
0
100

Федеральное государственное бюджетное образовательное учреждение высшего профессионального образования Петербургский государственный университет путей сообщения Императора Александра Ι
Кафедра «Строительные конструкции»
Курсовая работа по дисциплине
«Строительные конструкции транспортных сооружений»
Проектирование железобетонных конструкций многоэтажного промышленного здания»
,2017

Размеры здания в плане, м 40×18
Число этажей 4
Высота 1 этажа,м 4
Высота этажа, м 4
Временная нагрузка, кН/м2
– длительная 11
– кратковременная 1,5
Вес пола, кН/м2 1,1
Расчетное сопротивление основания , мПа 0,35
Глубина заложения фундамента, м 1,5

Содержание

1. Исходные данные 2
2. Компоновка здания 3
3. Расчёт ребристой панели 4
3.1 Назначение характеристик прочности бетона и арматуры, определение высоты панели 4
3.2 Расчет продольного ребра панели по нормальным сечениям 5
3.3 Расчет полки панели на местный изгиб 7
3.4 Расчет продольного ребра панели по наклонным сечениям 9
3.5. Проверка прочности панели на нагрузки, действующие во время транспортирования и монтажа 11
3.6. Определение диаметра подъемных петель 12
4. Расчет неразрезного ригеля 13
4.1. Исходные данные 13
4.2. Сбор нагрузок на 1 м ригеля 15
4.3. Выбор расчетной схемы и статический расчет ригеля 15
4.4. Расчет прочности нормальных сечений 17
4.6. Построение эпюры материалов 21
5 Расчет колонны 24
5.1 Исходные данные 24
5.2 Сбор нагрузок, расчетная схема, определение усилий 24
5.3 Подбор сечений бетона и арматуры 27
5.4. Расчет консоли 29
6. Расчёт центрально нагруженного фундамента 32
6.1. Исходные данные 32
6.2. Определение размеров подошвы фундамента 33
6.3. Назначение высоты фундамента и размеров ступеней 33
6.4. Проверка прочности нижней ступени фундамента на продавливание и срез 36
6.5. Расчет армирования подошвы фундамента 37
7. Список литературы 38

 


Сообщить о проблеме
Автор
user-avatar user-2222048
Дата
27.01.2026
Язык
Русский
Состав
чертеж, ПЗ
Софт
AutoCAD 2013 Как открыть?
Отзывов пока нет
Задать вопрос
Содержимое архива
  • icon-doc Курсовой ЖБК.docx
  • icon-dwg Чертеж КЖ — копия.dwg
Чтобы скачать чертеж, 3D модель или проект, Вы должны зарегистрироваться и принять участие в жизни сайта. Посмотрите, как тут скачивать файлы
Отзывов пока нет
Чтобы оставить отзыв, необходимо войти
Войти с помощью:

Используя функцию входа через сторонние сервисы, Вы соглашаетесь на обработку персональных данных в соответствии с Политикой конфиденциальности