Перейти к содержимому
Войти

Расчет и конструирование железобетонных конструкций резервуара

0
215
1667
3
0
80

Ивановский государственный архитектурно-строительный университет
Специальность «Водоснабжение и водоотведение»
Кафедра Строительных конструкций
Курсовая работа по дисциплине: «Строительные конструкции»
на тему: «Расчет и конструирование железобетонных конструкций резервуара»
Иваново 2009

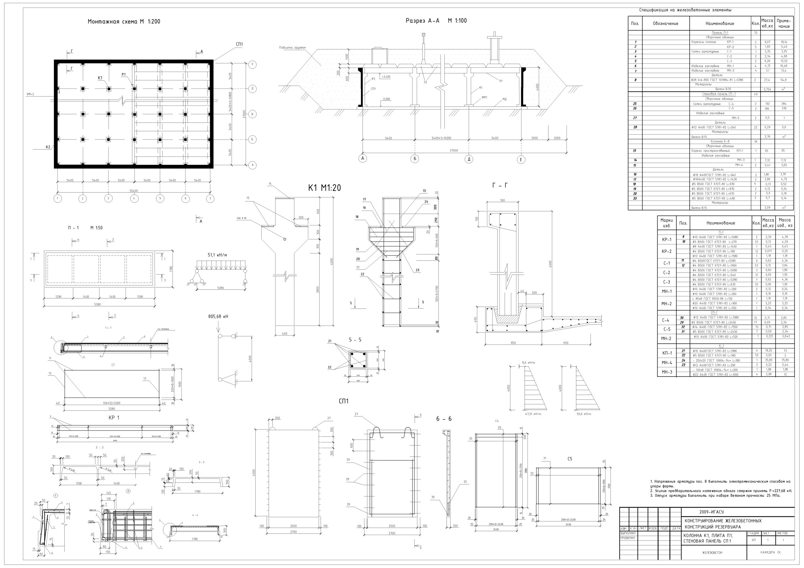
В данном курсовом проекте проектируем прямоугольный резервуар для воды из сборных железобетонных элементов.
Принимается поперечное направление ригелей.
Панели покрытия – ребристые с предварительно напряженной арматурой.

Исходные данные:
Шифр – 935
1. Район строительства – г. Казань;
2. Снеговой район – IV;
3. Расчетная снеговая нагрузка Sq, Sq = 2,4 кПа;
4. Нормативная снеговая нагрузка So, кПа So = 0,7 ∙ Sq =1,68 кПа;
5. Резервуар прямоугольный

Исходные данные:
Длина – 27,0 м;
Ширина – 32,4 м;
Шаг колон – 5,4 м;
Плотность утеплителя – 250 кг/м3;
Высота резервуара Hp, Hp = 4 м.


Сообщить о проблеме
Автор
user-avatar alexei_ing
Дата
26.02.2015
Язык
Русский
Состав
Пояснительная записка, графическая часть: лист 1 - План резервуара, разрез, конструкции
Софт
AutoCAD 2007 Как открыть?
Отзывов пока нет
Задать вопрос
Содержимое архива
  • icon-dwg СК.dwg
  • icon-doc комп расчет.doc
  • icon-doc пз.doc
Чтобы скачать чертеж, 3D модель или проект, Вы должны зарегистрироваться и принять участие в жизни сайта. Посмотрите, как тут скачивать файлы
Отзывов пока нет
Чтобы оставить отзыв, необходимо войти
Войти с помощью:

Используя функцию входа через сторонние сервисы, Вы соглашаетесь на обработку персональных данных в соответствии с Политикой конфиденциальности