Перейти к содержимому
Войти

Расчет и конструирование монолитного прямоугольного резервуара

0
1
349
1
0
100

Міністерство освіти і науки України
Національний університет водного господарства та природокористування
Навчально-науковий інститут будівництва та архітектури
Кафедра промислового, цивільного будівництва та інженерних споруд
Курсовая робота
з дисципліни «Залізобетонні конструкції інженерних споруд»
на тему:
«Розрахунок та конструювання прямокутного монолітного резервуару »
Рівне  2015
Зміст
1. Вихідні дані....................................................................4
2. Матеріали для проектування...........................................4
3. Конструктивна частина…………………………..………………….5
4. Розрахунок стінки резервуару.........................................8
5. Розрахунок на розкриття тріщин...................................15
6. Конструкція днища резервуару і її армування...... ….....19
Список використаної літератури......................................20

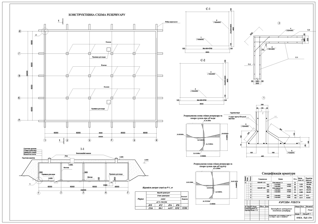
Вихіді дані.
Призначення будівлі – прямокутний монолітний з/б резервуар.
Вид матеріалу – монолітний залізобетон.
Зовнішні розміри в плані – 24х30м.
Сітка колон – 6х6м.
Висота – 4.8 м.
Товщина стін – 200 мм.
Клас бетону – С25/30.
Клас робочої арматури – А 400С.
Густина грунту γ – 1,5 т/м3
Кут внутрішнього тертя φ0 = 290.
Зєднання стін з днищем жорстке.


Сообщить о проблеме
Дата
01.08.2018
Язык
Украинский
Состав
технологічна схема прямокутного резервуару
Софт
Отзывов пока нет
Задать вопрос
Содержимое архива
  • icon-dwg Чертеж1.dwg
  • icon-doc резервуар.docx
Чтобы скачать чертеж, 3D модель или проект, Вы должны зарегистрироваться и принять участие в жизни сайта. Посмотрите, как тут скачивать файлы
Отзывов пока нет
Чтобы оставить отзыв, необходимо войти
Войти с помощью:

Используя функцию входа через сторонние сервисы, Вы соглашаетесь на обработку персональных данных в соответствии с Политикой конфиденциальности