Перейти к содержимому
Войти

Реконструкция общественного здания в Амурской области г. Благовещенск

0
0
44
0
0
300

ЮЗГУ
Кафедра "Промышленное и гражданское строительство"
ВКР на тему "Реконструкция общественного здания в Амурской области"
2020 г.

Введение………………………………………….……………………..9
Ведомость чертежей………………………………………………….12
Паспорт проекта………………………………………………….13
1. АРХИТЕКТУРНО – СТРОИТЕЛЬНЫЙ РАЗДЕЛ………………17
1.1 Эскизное проектирование……………………………………18
1.1.1 Технико-экономическая характеристика района строительства……………………………………………18
1.1.2 Климатические условия района строительства………19
1.1.3 Требования, предъявляемые к зданию …………….……20
1.1.3.1Функциональные требования…… ……………. ……21
1.1.3.2 Технические требования к зданию …………….……22
1.1.4 Объемно-планировочное решение здания………………28
1.1.5 Конструктивная система и конструктивная схема здания .30
1.1.5.1 Конструктивное решение здания 30
1.1.5.2 Фундаменты………………………………………30.
1.1.5.3Несущие ж.б. стены и колонны……………………30
1.1.5.4 Перекрытие…………………………………………31
1.1.5.5 Лестницы………………………………………………31
1.1.5.6. Крыша .…………………………………….…………32
1.1.5.7 Окна……………………………….. …………..………34
1.1.5.8 Двери……………………………………..……………34
1.1.5.9 Полы…………………………………………..……..…35
1.1.6 Инженерное оборудование здания…………..……………38
1.1.6.1 Водопровод………………………………….…………38
1.1.6.2. Канализация…………………………………………38
1.1.6.3 Отопление……………………………………………38
1.1.6.4 Вентиляция……………………………………………38.
1.1.6.5. Электроснабжение……………………………………39
1.1.6.6 Связь и сигнализация……………………………………39
1.1.6.7 Автоматическая пожарная сигнализация………………39
1.2 Теплотехнический расчет наружных ограждающих
конструкций …………………………………..………………39
1.2.1 Теплотехнический расчет стен……………………………39
1.2.2 Расчет чердачного покрытия………………………………42
1.2.3 Расчет плоского чердачного покрытия. ……………………43
1.3. Расчет наружных конструкций здания на
паропроницаемость …………………………………………43
1.4 Расчет удельной теплозащитной характеристики
Здания…………………………………………………………48
1.5 Генеральный план ……………………….………………51
2. РАСЧЕТНО-КОНСТРУКТИВНЫЙ РАЗДЕЛ……………..……53
2.1 Расчет внецентренно - сжатого фундамента Фм-1…………54
2.1.1. Исходные данные для проектирования …………………54
2.1.2. Определение геометрических размеров фундамента……54
2.1.3. Расчет прочности элементов фундамента………………58
2.1.4. Расчет арматуры подошвы фундамента…………………59
2.1.5 Армирование стакана фундамента………………………62
2.2 Расчет центрально-нагруженного фундамента Фм-2……62
2.2.1. Исходные данные для проектирования…………………62
2.2.2. Определение геометрических размеров фундамента……63
2.2.3. Расчет прочности элементов фундамента…………………64
2.2.4 Армирование стакана фундамента…………………………67
3. ТЕХНОЛОГИЯ СТРОИТЕЛЬНОГО ПРОИЗВОДСТВА.……68
3.1 Технологическая карта на устройство монолитной плиты
перекрытия типового этажа…………………………………69
3.1.1 Область применения………….……………………………69
3.1.2 Организация и технология выполнения работ ..………70
3.1.3 Требования к качеству работ………………………….75
3.1.4 Потребность в материально-технических ресурсах……80
3.1.5 Техника безопасности …….……………………………87
3.1.6 Технико-экономические показатели……………………90
4. ЭКОНОМИКА СТРОИТЕЛЬСТВА ………………………………93
4.1 Локальный сметный расчет на устройство монолитного
железобетонного перекрытия типового этажа 94
4.1.1 Основные характеристики объекта………………………94
4.1.2 Сметная документация в строительстве………………94
4.1.3 Определение стоимости строительства…………………96
5. БЕЗОПАСНОСТЬ ЖИЗНЕДЕЯТЕЛЬНОСТИ………………….99
5.1 Обеспечение безопасности рабочих при демонтажных
работах…………………………………………………….….…100
5.1.1 Демонтаж кровельного покрытия и деревянных стропильных конструкций ……………………………102
5.1.2 Демонтаж перегородок ……………………………105
5.1.3 Демонтаж труб отопления ………………….…107
5.2 Охрана окружающей среды - пылеподавление,
складирование и вывоз на утилизацию строительного
мусора от разборки …………………………………….108
5.2.1. Пылеподавление……………………………………………108
5.2.2. Складирование и вывоз на утилизацию строительного
мусора от разборки………………………………………112
6. ГРАЖДАНСКАЯ ОБОРОНА …………………………………...115
6.1 Защитные сооружения………………………………………116
6.1.1 Убежища……………………………………………………116
6.1.2 Противорадиационные укрытия. …………………………117
6.1.3 Простейшие укрытия – щели………………………………117
6.2 Рассредоточение в загородной зоне………………………118
6.3 Использование средств индивидуальной защиты…………119
Список используемых источников………………………….………124
Приложение А………………………………………………………131
Приложение Б………………………………………………………137

Реконструируемое здание – переменной этажности (центральная часть здания – 7 этажей, боковые крылья здания – по 6 этажей). Здание с подвалом и техническим этажом. Здание каркасного типа, выполнено из монолитного железобетона. Высота этажа составляет – 3,3 м.
При реконструкции предусматривается изменение назначения здания из административного (суд) в общественное (помещения офисов, торговых площадей, выставочных залов, залов совещаний).


Сообщить о проблеме
Автор
user-avatar user-8714997
Дата
11.04.2026
Язык
Русский
Состав
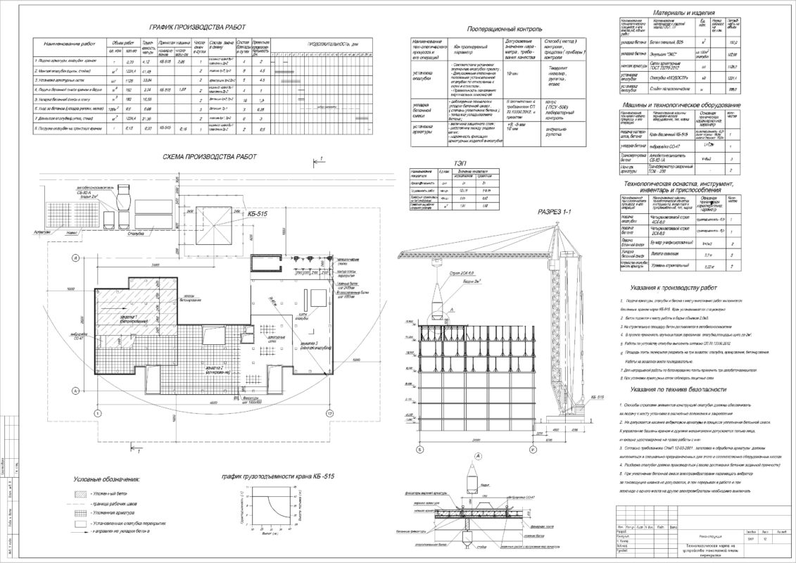
Лист 1 - Фасад до реконструкции Лист 2 - Фасад после реконструкции Лист 3 - Фасады Лист 4 - Генеральный план Лист 5 - Планы Лист 6 - Планы Лист 7 - План кровли, схема расположения стропил Лист 8 - План 7-го этажа до и после реконструкции, план полов Лист 9 - Разрез 2-2 Лист 10 - Разрез 1-1 Лист 11 - Схема расположения фундаментов Лист 12 - Технологическая карта на устройство монолитной плиты перекрытия
Софт
AutoCAD 2018 Как открыть?
Отзывов пока нет
Задать вопрос
Содержимое архива
    • icon-dwg Графическая часть.dwg
    • icon-doc Пояснительная записка.docx
    • icon-doc Смета.docx
Чтобы скачать чертеж, 3D модель или проект, Вы должны зарегистрироваться и принять участие в жизни сайта. Посмотрите, как тут скачивать файлы
Отзывов пока нет
Чтобы оставить отзыв, необходимо войти
Войти с помощью:

Используя функцию входа через сторонние сервисы, Вы соглашаетесь на обработку персональных данных в соответствии с Политикой конфиденциальности