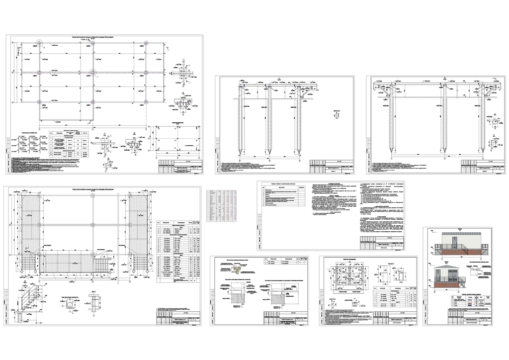
Трансформаторная подстанция - блочная-модульное здание заводского изготовления
с размерами 5.1х9.1х3.53(h) м.
Фундаменты здания - металлический ростверк из швеллера №16П по металлическим сваям. Сваи
приняты - труба стальная, круглого сечения 219х8 по ГОСТ 10704-91. Расчетно-допустимая
нагрузка на сваю 16 тн.
Кровля - двухскатная.
Сварку выполнять по ГОСТ 5264-80 электродами Э46 по ГОСТ 9467-75.
Катет шва принимать по меньшей толщине свариваемых элементов.
Антикоррозийную защиту элементов площадки обслуживания наносить 3-мя слоями общей толщиной 55мкм эмаль АС-182 ГОСТ19024-79 (2 слоя, толщиной слоя 20мкм) по
грунтовке АК-070 ГОСТ 25718-83 (1 слой, толщиной 15мкм), по очищенной от ржавчины и окалины поверхности. По окончании монтажных работ поврежденное лакокрасочное
покрытие восстановить.
Антикоррозийную защиту свай наносить в заводских условиях общей толщиной 80мкм эмаль ХС-717 (2 слоя, толщиной слоя 30мкм) ТУ 6-10-961-76 (или аналог) по грунтовке
ВЛ-023 (1 слой, толщиной слоя 20мкм) ГОСТ 12707-77 (или аналог), по очищенной от ржавчины и окалины поверхности . По окончании монтажных работ поврежденное
лакокрасочное покрытие восстановить.
Материал металлических элементов сталь С245 по ГОСТ 27772-2015.
Изготовление и монтаж стальных конструкций производить в соответствии с ГОСТ 23118-2019 "Конструкции стальные строительные. Общие технические условия", сводом
правил по проектированию и строительству СП 53-101-98 "Изготовление и контроль качества стальных строительных конструкций".
Свайное основание разработано для двух блоков модульной трансформаторной подстанции с общими размерами в плане 5,1х9,1м.
- Главная -
- Чертежи -
- Строительство -
- Свайный фундамент с площадкой обслуживания под трансформаторную подстанцию 2БКТП (раздел АС)
Свайный фундамент с площадкой обслуживания под трансформаторную подстанцию 2БКТП (раздел АС)
0
0
165
0
0
200
Сообщить о проблеме
Автор
Дата
17.05.2023
Язык
Русский
Состав
Схема расположения свай. Схема расположения несущих элементов площадки обслуживания. Узел 1, 2
Софт
AutoCAD 2018
Как открыть?
Отзывов пока нет
Содержимое архива
-
АС (2БКТП-С-1600-60,4-УХЛ1).dwg
Чтобы скачать чертеж, 3D модель или проект, Вы должны зарегистрироваться
и принять участие в жизни сайта. Посмотрите, как тут скачивать
файлы
Задания с фриланса
Все задания
Отзывов пока нет
Чтобы оставить отзыв, необходимо войти
Войти с помощью:
Используя функцию входа через сторонние сервисы, Вы соглашаетесь на обработку персональных данных в соответствии с Политикой конфиденциальности
Используя функцию входа через сторонние сервисы, Вы соглашаетесь на обработку персональных данных в соответствии с Политикой конфиденциальности