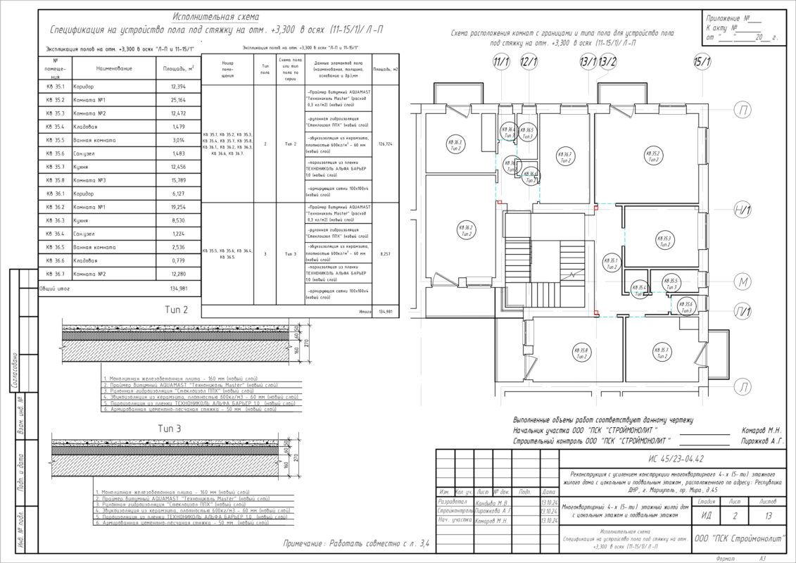
Расчёт расхода материалов на устройство пола под стяжку. Подробные схемы планировки и типов полов с габаритными размерами на четыре этажа со сводной спецификацией.
- Главная -
- Чертежи -
- Строительство -
- Устройство полов под стяжку в многоквартирном 4-х (5-ти) этажном жилом доме с цокольным этажом и подвальным этажом
Устройство полов под стяжку в многоквартирном 4-х (5-ти) этажном жилом доме с цокольным этажом и подвальным этажом
0
0
37
0
0
30
Сообщить о проблеме
Автор
Дата
01.11.2024
Язык
Русский
Состав
13 листов - Узел пирога пола под стяжку, Расчёт площади: нанесения праймера, гидроизоляции; объём керамзитной подсыпки; расход цемента для проливки керамзита цементным молоком; площадь рулонного паробарьера; площадь армирующей сетки и расход демпферной ленты.
Софт
AutoCAD 2018
Как открыть?
Отзывов пока нет
Содержимое архива
-
Блок №4 Монтаж стяжки.dwg
Чтобы скачать чертеж, 3D модель или проект, Вы должны зарегистрироваться
и принять участие в жизни сайта. Посмотрите, как тут скачивать
файлы
Задания с фриланса
Отзывов пока нет
Чтобы оставить отзыв, необходимо войти
Войти с помощью:
Используя функцию входа через сторонние сервисы, Вы соглашаетесь на обработку персональных данных в соответствии с Политикой конфиденциальности
Используя функцию входа через сторонние сервисы, Вы соглашаетесь на обработку персональных данных в соответствии с Политикой конфиденциальности