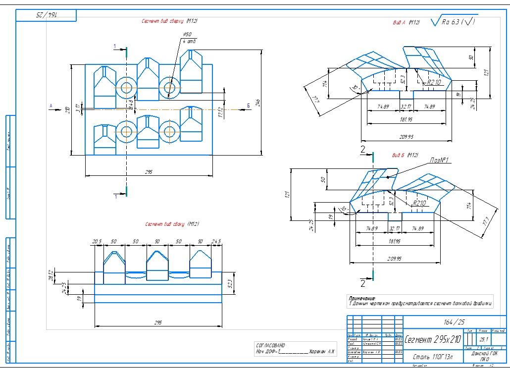
3D модель сегмента шнекозубчатой дробилки (ДШЗ) размером 295x210 мм предназначена для демонстрации конструктивных особенностей и точности изготовления. Данная модель отображает детали, важные для функционирования шнекозубчатого механизма дробилки, который используется в горнодобывающей и строительной промышленности для измельчения материалов.
Модель включает в себя:
Точные размеры сегмента (295 мм х 210 мм).
Детализированную геометрию зубьев и рабочих поверхностей.
Совмещение элементов механизма, обеспечивающее стабильную работу дробилки.
Использование данной модели позволяет более точно изучить устройство шнекозубчатой дробилки и её компоненты, а также оценить возможности для дальнейшей модернизации или изготовления.
- Главная -
- Чертежи -
- Транспорт -
- Строительные, специальные и дорожные машины -
- Сегмент 295х210 ДШЗ
Сегмент 295х210 ДШЗ
0
0
24
0
0
60
Сообщить о проблеме
Автор
Дата
23.01.2026
Язык
Русский
Состав
3д модель сегмента 295х210 ДШЗ, Деталировка сегмента 295х210 ДШЗ 2д.
Софт
КОМПАС-3D 17
Как открыть?
Отзывов пока нет
Содержимое архива
-
295.m3d
-
295.stp
-
Сегмент 2д 295х210.cdw
Чтобы скачать чертеж, 3D модель или проект, Вы должны зарегистрироваться
и принять участие в жизни сайта. Посмотрите, как тут скачивать
файлы
Задания с фриланса
Отзывов пока нет
Чтобы оставить отзыв, необходимо войти
Войти с помощью:
Используя функцию входа через сторонние сервисы, Вы соглашаетесь на обработку персональных данных в соответствии с Политикой конфиденциальности
Используя функцию входа через сторонние сервисы, Вы соглашаетесь на обработку персональных данных в соответствии с Политикой конфиденциальности