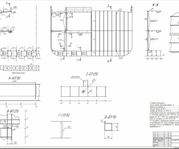
Контрольная работа по дисциплине: "основы 3-D моделирования в среде AutoCad". В работе представлена часть корпуса существующего судна, состоящая из листов обшивки наружного и внутреннего бортов с подкрепляющим набором, листов настила двойного дна. Отсутствуют комингсы грузовых люков.
- Главная -
- Чертежи -
- Транспорт -
- Водный транспорт и судостроение -
- Объемная секция корпуса транспортного судна "Балтийский-201" в районе миделя
Объемная секция корпуса транспортного судна "Балтийский-201" в районе миделя
0
238
2129
4
2
20

Сообщить о проблеме
Автор
Дата
22.03.2015
Язык
Русский
Состав
3D сборка
Софт
AutoCAD 2014
Как открыть?
Отзывов пока нет
Содержимое архива
Чтобы скачать чертеж, 3D модель или проект, Вы должны зарегистрироваться
и принять участие в жизни сайта. Посмотрите, как тут скачивать
файлы
Отзывов пока нет
Чтобы задать вопрос, необходимо войти
Войти с помощью:
Ссылка на логин через google
Ссылка на логин через vk
Ссылка на логин через yandex