Перейти к содержимому
Войти

Проектирование многоэтажного жилого дома со встроенными офисными помещениями

0
0
13
0
0
60

Министерство науки и высшего образования Российской Федерации
Федеральное государственное автономное образовательное учреждение высшего образования
Пермский национальный исследовательский политехнический университет
Строительный факультет
Кафедра Архитектуры и Урбанистики
Курсовой проект на тему
«Проектирование многоэтажного жилого дома со встроенными офисными помещениями».

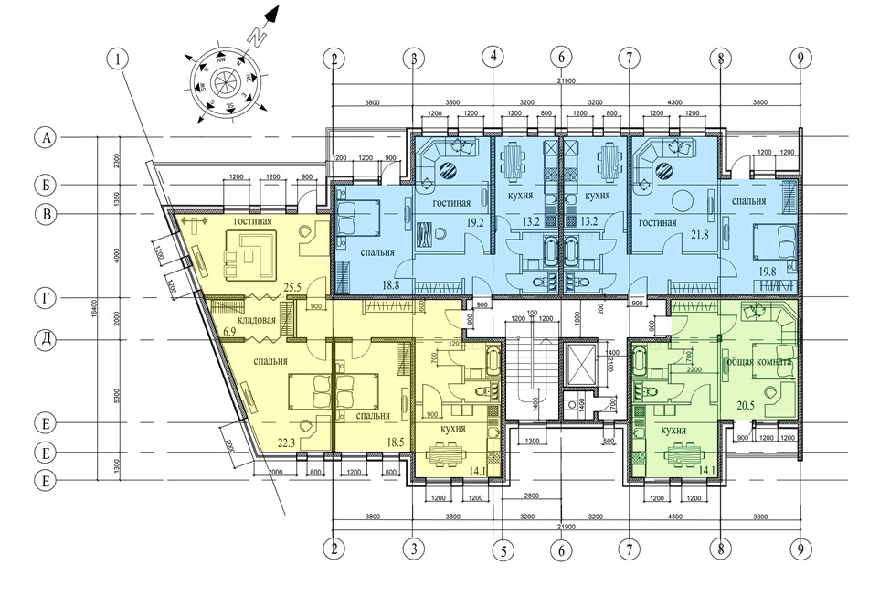
Объект проектирования - левая торцевая блок секция сложной конфигурации в плане.
• длина в осях 2-8 составляет 22,10 м;
• ширина в осях А-И составляет 16,25 м;
Высота первого и типового этажа 3,0 м;
Высота помещения: 1-ого этажа 2,70, типового этажа 2,70 м;
Общая высота здания 30,70 м до уровня ограждения верхнего этажа;
Привязка стен:
• привязка наружных несущих стен – 200 мм;
• привязка наружных самонесущих стен – нулевая;
• привязка внутренних стен – симметричная.
В доме предусмотрен:
• Теплый чердак – высотой 1,89 м;
• Техническое подполье – высотой 1,935 м;
Планировочное решение типового этажа соответствует требованиям СП54.13330.2020 Здания жилые многоквартирные, [7];
На типовом этаже расположено 4 квартиры. Общая характеристика квартир представлена в таблице 2.1:
Район строительства – Брянская область, город Брянск;
Климатический район IIВ CП 131.13330-2020 [2];
Зона влажности – 2 (нормальная), СП50.13330-2024; [1], прил В;
Продолжительность отопительного периода zот = 199 суток [2], табл. 3.1;
Средняя расчётная температура отопительного периода tот = –2,0 ºС, [2], табл. 3.1;
Температура холодной пятидневки tн = –23 ºС, [1]
Температура внутреннего воздуха tв = + 20 ºС, [3];
Влажность воздуха: = 55 %, [1], табл.1;
Влажностный режим помещения – нормальный, [2];
Условия эксплуатации ограждающих конструкций – Б, [1], табл.2;
Грунты на площадке – крупнообломочные;

Содержание
1 Исходные данные 3
2 Объёмно-планировочное решение 4
3 Конструктивное решение 7
3.1 Конструктивный тип здания 7
3.2 Фундамент. 7
3.3 Стены и перегородки 7
3.4 Перекрытия и полы 7
3.5 Перемычки 9
3.7 Балконы и лоджии 11
3.8 Покрытия 11
3.9 Окна и двери жилой части здания 11
3.10 Окна и двери офисных помещений 12
3.11 Наружная и внутренняя отделка 12
4. Инженерное и санитарно-техническое оборудование 13
4.1 Отопление 13
4.2 Вентиляция 13
4.3 Водоснабжение 13
4.4 Лифт 13
5 Расчётная часть 14
5.1 Теплотехнический расчёт наружной стены. 14
5.2 Теплотехнический расчёт чердачного покрытия. 17
5.3 Теплотехнический расчёт остекления. 19
6.Технико-экономические показатели по зданию 20
7. Список литературы 21


Сообщить о проблеме
Автор
user-avatar user-5309586
Дата
03.11.2025
Язык
Русский
Состав
чертежи, ПЗ
Софт
Отзывов пока нет
Задать вопрос
Содержимое архива
  • ПЗ.docx
  • Чертеж.dwg
Чтобы скачать чертеж, 3D модель или проект, Вы должны зарегистрироваться и принять участие в жизни сайта. Посмотрите, как тут скачивать файлы
Отзывов пока нет
Чтобы оставить отзыв, необходимо войти
Войти с помощью:

Используя функцию входа через сторонние сервисы, Вы соглашаетесь на обработку персональных данных в соответствии с Политикой конфиденциальности