Перейти к содержимому
Войти

Разработка электрического привода механизмов технологического оборудования промышленного предприятия

0
0
111
0
0
40

Армавирский механико-технологический институт
Кафедра внутризаводского электрооборудования и автоматики
Курсовой проект по дисциплине:"Электрический привод"
На тему:"разработка электрического привода механизмов технологического оборудования промышленного предприятия."
Армавир 2020

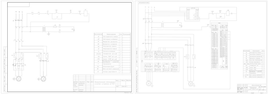
Исходные данные: фрезерный станок 675П, электродвигатель шпинделя : мощность 1,5 кВт, Электродвигатель насоса: мощность 0,12 кВт
В данном курсовом проекте была модернизирована принципиальная электрическая схема фрезерного станка 675П. Выбран и проверен на перегрузочную способность и перегрев электродвигатель шпинделя, модернизирована коробка передач двигателя шпинделя.

Содержание
Введение
1 Расчет мощности и предварительный выбор электродвигателя
2 Проверка выбранного электродвигателя по нагреву и перегрузочной спо-собности
2.1 Проверка электродвигателя по нагреву
2.2 Проверка электродвигателя по перегрузочной способности
3 Оценка энергоэффективности выбранного двигателя
4 Выбор оборудования для модернизации и описание системы управления станка
5 Техника безопасности
5.1 Техника безопасности при работе с фрезерными станками
5.2 Правила техники безопасности при ремонте и модернизации обору-дования
Заключение
Список использованных источников
Приложение A – Принципиальная модернизированная электрическая схема фрезерного станка модели 675П.


Сообщить о проблеме
Дата
15.03.2021
Язык
Русский
Состав
Принципиальная электрическая схема , ПЗ
Софт
AutoCAD 2019 Как открыть?
Отзывов пока нет
Задать вопрос
Содержимое архива
  • icon-doc Kursach.docx
  • icon-dwg яертеж.dwg
  • icon-dwg яертеж 2.dwg
Чтобы скачать чертеж, 3D модель или проект, Вы должны зарегистрироваться и принять участие в жизни сайта. Посмотрите, как тут скачивать файлы
Отзывов пока нет
Чтобы оставить отзыв, необходимо войти
Войти с помощью:

Используя функцию входа через сторонние сервисы, Вы соглашаетесь на обработку персональных данных в соответствии с Политикой конфиденциальности