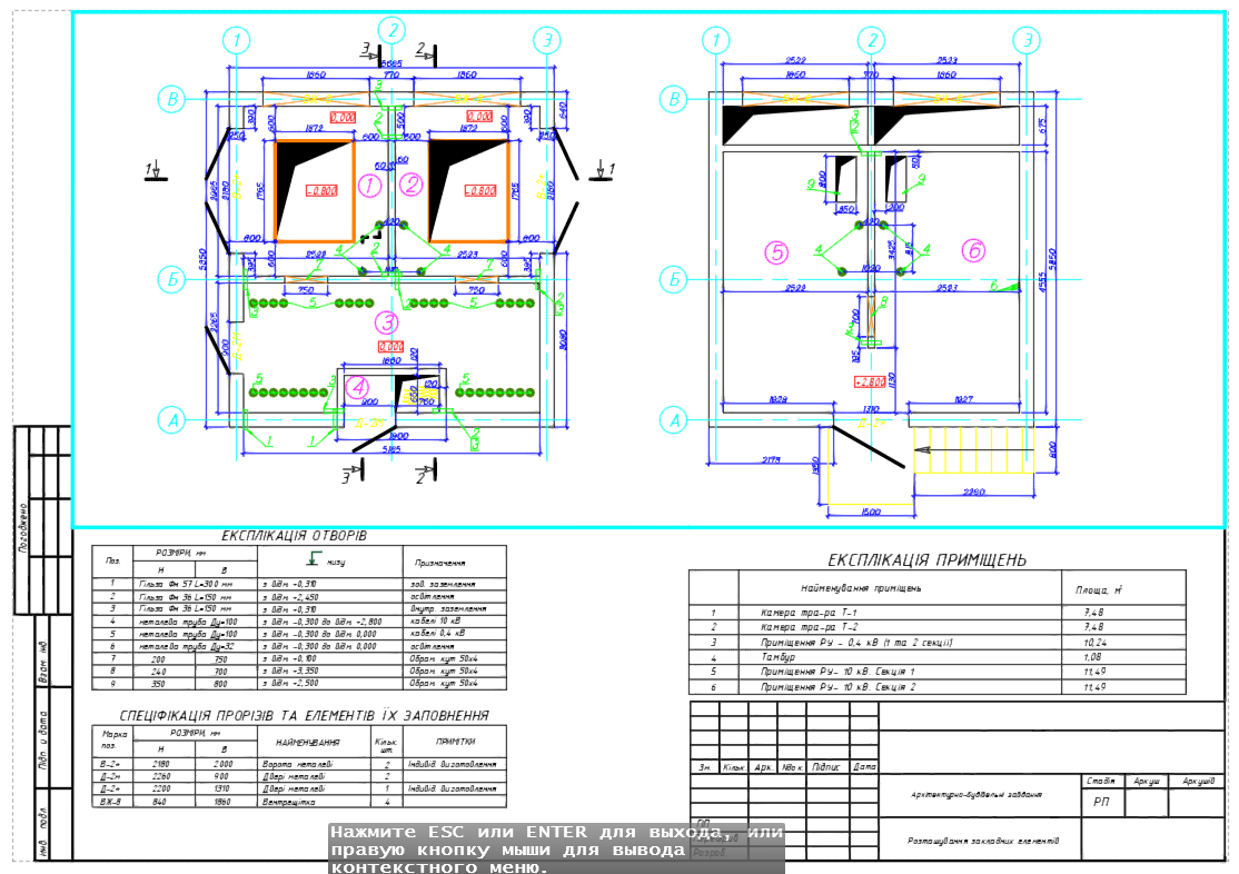
Архитектурно-строительное задание на подстанцию 10/0,4 кВ 2 по 1000 кВА трансформатора, 2 этажа и кабельный полуэтаж
- Главная -
- Чертежи -
- Инженерные системы -
- Электроснабжение и освещение -
- Архитектурно-строительное задание на подстанцию 10/0,4 кВ
Архитектурно-строительное задание на подстанцию 10/0,4 кВ
1
0
40
0
0
20
Сообщить о проблеме
Автор
Дата
15.02.2026
Язык
Украинский
Состав
5 листов
Софт
AutoCAD 19
Как открыть?
Отзывов пока нет
Содержимое архива
-
АБЗ.dwg
Чтобы скачать чертеж, 3D модель или проект, Вы должны зарегистрироваться
и принять участие в жизни сайта. Посмотрите, как тут скачивать
файлы
Отзывов пока нет
Чтобы оставить отзыв, необходимо войти
Войти с помощью:
Используя функцию входа через сторонние сервисы, Вы соглашаетесь на обработку персональных данных в соответствии с Политикой конфиденциальности
Используя функцию входа через сторонние сервисы, Вы соглашаетесь на обработку персональных данных в соответствии с Политикой конфиденциальности