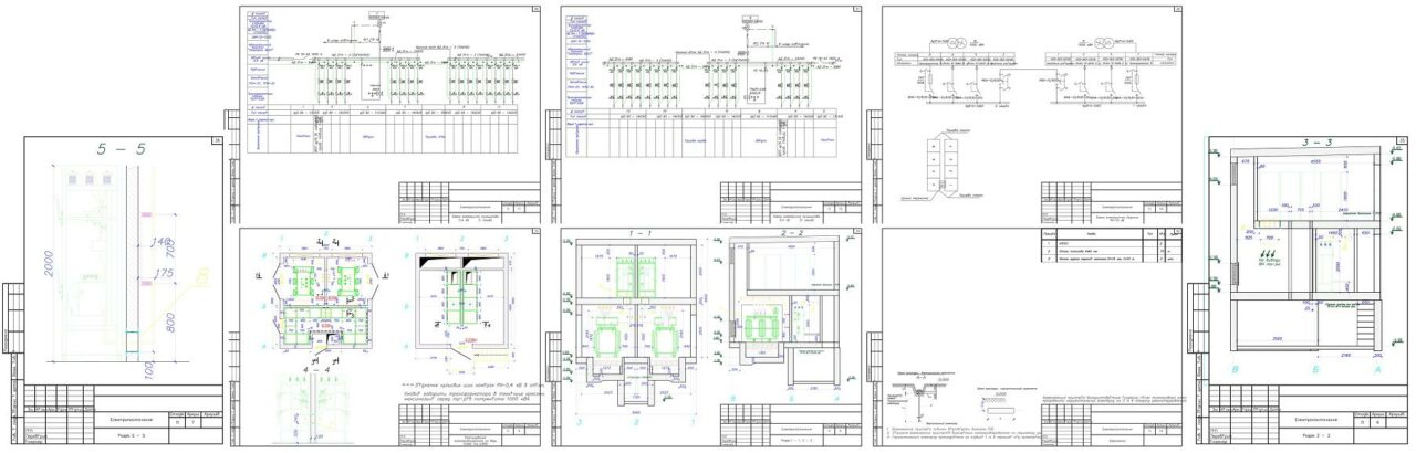
Реконструкция трансформаторной подстанции ТП 10/0,4 кВ, существующая 2х630 кВА трансформатора в один этаж на 2х1000 кВА трансформатора в двух этажную и кабельный полуэтаж в габарите существующей.
- Главная -
- Чертежи -
- Электрические машины -
- Трансформаторы -
- Трансформаторная подстанция ТП 10/0,4 кВ
Трансформаторная подстанция ТП 10/0,4 кВ
1
0
58
0
0
20
Сообщить о проблеме
Автор
Дата
12.02.2026
Язык
Русский
Состав
10 листов
Софт
AutoCAD 19
Как открыть?
Отзывов пока нет
Содержимое архива
-
ТП ЕП.dwg
Чтобы скачать чертеж, 3D модель или проект, Вы должны зарегистрироваться
и принять участие в жизни сайта. Посмотрите, как тут скачивать
файлы
Задания с фриланса
4 недели назад
Отзывов пока нет
Чтобы оставить отзыв, необходимо войти
Войти с помощью:
Используя функцию входа через сторонние сервисы, Вы соглашаетесь на обработку персональных данных в соответствии с Политикой конфиденциальности
Используя функцию входа через сторонние сервисы, Вы соглашаетесь на обработку персональных данных в соответствии с Политикой конфиденциальности