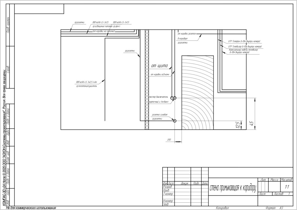
Проект электропроводки редизайна номера отеля, с указанием старых и новых линий
- Главная -
- Чертежи -
- Инженерные системы -
- Электроснабжение и освещение -
- Проект электропроводки редизайна номера отеля, с указанием старых и новых линий
Проект электропроводки редизайна номера отеля, с указанием старых и новых линий
0
0
24
0
0
20
Сообщить о проблеме
Автор
Дата
09.02.2026
Язык
Русский
Состав
Отображение старой электропроводки и новой, исполнительная документация
Софт
КОМПАС-3D 24
Как открыть?
Отзывов пока нет
Содержимое архива
-
Новая перегородга вход в сан.узел..cdw
-
Стена со столом и телевизором.cdw
-
Стена с примыканием изголовья кровати.cdw
-
Схема потолка.cdw
-
стена примыкающая к коридору.cdw
-
схема коридор.cdw
Чтобы скачать чертеж, 3D модель или проект, Вы должны зарегистрироваться
и принять участие в жизни сайта. Посмотрите, как тут скачивать
файлы
Отзывов пока нет
Чтобы оставить отзыв, необходимо войти
Войти с помощью:
Используя функцию входа через сторонние сервисы, Вы соглашаетесь на обработку персональных данных в соответствии с Политикой конфиденциальности
Используя функцию входа через сторонние сервисы, Вы соглашаетесь на обработку персональных данных в соответствии с Политикой конфиденциальности