Перейти к содержимому
Войти

Отопление жилого дома с алюминиевыми радиаторами и трубами из сшитого полиэтилена

0
10
405
3
0
30

Брестский государственный технический университет»

Кафедра теплогазоснабжения и вентиляции
по дисциплине Инженерные сети
курсовому проекту на тему:Отопление жилого дома с алюминиевыми радиаторами и трубами из сшитого полиэтилена
Брест 2016

Исх данные: расчетные температуры внутреннего и наружного воздуха для г. Лельчицы tH=-22 оС, tв =18 оС, G- количество инфильтрующегося воздуха через окна помещения при tв =18 оС, кг/ч; по исходным данным G=25 кг/ч.
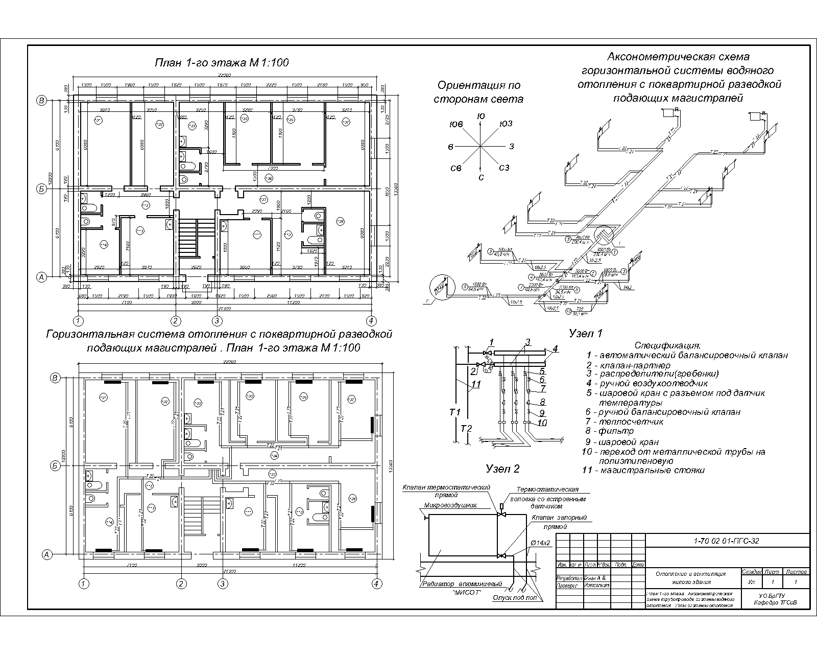
Графическая часть содержит План 1-го этажа. Аксонометрическая схема трубопровода системы водяного отопления. Узлы системы отопления.

Содержание

Реферат
Введение
Содержание
1. Расчёт тепловых потерь для одной квартиры первого этажа
2. Конструирование системы отопления
2.1 Система отопления двухтрубная водяная с искусственной циркуляцией с вертикальными магистральными стояками и поквартирной разводкой……
2.2 Описание отопительных приборов ……………………………………..
2.3. Описание терморегуляторов и балансировочных клапанов………….
2.4. Описание трубопроводов и их соединений …………………………...
2.5.Описание устройств для удаления воздуха ……………………………
2.6. Описание теплосчетчика ……………………………………………….
3. Тепловой расчёт ……………………………………………………………..
4. Гидравлический расчёт системы отопления c подбором термостатических и балансировочных клапанов
Заключение
Литература


Сообщить о проблеме
Дата
03.03.2018
Язык
Русский
Состав
План 1-го этажа. Аксонометрическая схема трубопровода системы водяного отопления. Узлы системы отопления.
Софт
AutoCAD 2012 Как открыть?
Отзывов пока нет
Задать вопрос
Содержимое архива
  • icon-doc ПЗ сети.doc
  • icon-dwg Сети Бохан 1.dwg
  • icon-doc Титульник.doc
  • icon-doc таблица 1 Бохан.doc
Чтобы скачать чертеж, 3D модель или проект, Вы должны зарегистрироваться и принять участие в жизни сайта. Посмотрите, как тут скачивать файлы
Отзывов пока нет
Чтобы оставить отзыв, необходимо войти
Войти с помощью:

Используя функцию входа через сторонние сервисы, Вы соглашаетесь на обработку персональных данных в соответствии с Политикой конфиденциальности