Перейти к содержимому
Войти

Расчёт привода передвижения мостового крана uред=2.47

0
0
41
0
0
40

Институт ядерной энергетики (филиал) ФГАОУ ВО СПбПУ в г. Сосновый Бор
Кафедра «Проектирование и эксплуатация атомных станций»
Курсовая работа по дисциплине: Детали машин и основы конструирования
Тема: Расчёт привода рабочей машины
Сосновый Бор 2025

Исходные данные:
1) Cопротивление передвижению моста F: 1,5kH
2) Скорость движения моста V: 1 м/c
3)Диаметр колеса D: 200 мм
4)Допускаемое отклонение скорости моста δ: 3%
5)Срок службы привода L: 5 лет

Оглавление:
1 Кинематическая схема машинного агрегата 4
1.2 Срок службы приводного устройства 4
2 Выбор двигателя, кинематический расчет привода 5
2.1 Определение требуемой мощности. 5
2.2 Общий коэффициент полезного действия 5
2.3 Требуемая мощность двигателя 5
2.4 Определение передаточного числа привода и его ступеней 6
2.5 Определение силовых и кинематических параметров привода 7
3. Расчет закрытой цилиндрической передачи 9
3.1. Выбор материалов зубчатой передачи и определение допускаемых напряжений закрытой передачи 10
3.2. Проектный расчёт 11
3.3. Основные геометрические размеры передачи 12
3.4. Силы действующие в зацеплении 14
3.5. Проверочный расчёт 14
4.1. Выбор материалов зубчатой передачи и определение допускаемых напряжений 17
4.2. Проектный расчёт 20
4.3. Основные геометрические размеры передачи 21
4.4. Силы действующие в зацеплении 22
4.5. Проверочный расчёт 23
5. Нагрузки валов редуктора 24
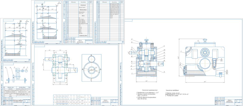
6. Разработка чертежа общего вида редуктора. 26
7 Расчетная схема быстроходного вала редуктора 28
8. Расчетная схема тихоходного вала редуктора 33
9. Проверочный расчет подшипников 34
9.1 Быстроходный вал 34
9.2 Тихоходный вал 36
Литература 39

В конструкторской части работы были выбраны материалы для деталей редуктора, спроектированы зубчатые передачи (открытая и закрытая), валы редуктора, выбраны и рассчитаны подшипники, определены суммы моментов и сил, действующих на валы.


Сообщить о проблеме
Автор
user-avatar pepsiman_v2
Дата
01.10.2025
Язык
Русский
Состав
Сборочный чертёж редуктора, Компоновочный чертёж редуктора, Спецификация, Эпюры валов (БВ и ТВ), ПЗ
Софт
КОМПАС-3D Версия 22 (учебная) Как открыть?
Отзывов пока нет
Задать вопрос
Содержимое архива
  • icon-cdw Исходные данные.cdw
  • icon-cdw Компоновочный чертёж.cdw
  • icon-doc Пояснительная записка.docx
  • icon-cdw Сборочный чертеж.cdw
  • icon-cdw Эпюра_БВ.cdw
  • icon-cdw Эпюра_ТВ.cdw
  • icon-spw спецификация.spw
Чтобы скачать чертеж, 3D модель или проект, Вы должны зарегистрироваться и принять участие в жизни сайта. Посмотрите, как тут скачивать файлы
Отзывов пока нет
Чтобы оставить отзыв, необходимо войти
Войти с помощью:

Используя функцию входа через сторонние сервисы, Вы соглашаетесь на обработку персональных данных в соответствии с Политикой конфиденциальности