Перейти к содержимому
Войти

Проектирование редуктора согласно техническому заданию

0
0
314
1
0
100

Донецкий национальный технический университет
Кафедра прикладной механики
Курсовой проект с дисциплины "Детали машин"
На тему:"Проектирование редуктора согласно техническому заданию"
Покровск 2020

Кінематичний та силовий розрахунок приводу ................ 3
Призначення рівня твердості і виду термічної обробки зубчастих коліс............ . 7
Проектний розрахунок передач на міцність зубців............. 13
Перевірочний розрахунок зубчастих передач.... ........18
Проектний розрахунок валів редуктора......................25
Визначення конструктивних розмірів зубчастих коліс....26
Розрахунок конструктивних розмірів корпусу та кришки редуктора................... 27
Розрахунок шпонкових зєднань.....................29
Вибір з’єднувальних муфт...................................................31
Визначення навантажень, що діють на вал............................................32
Розрахунок клинопасової передачі.,,,,,,,,,,,,,,,,,,,,,,,,,,,,,,,,,,,,,,,,,,,,,,34
Визначення реакцій опор, розрахунок та перевірка вибраних підшипників.,,,,,,,,,,,,,,,,,,,,,,,,,,,,,,,,,,,,,,,,,37
Розрахунок довговічності підшипників кочення............................44
Перевірочний розрахунок валів............................................47
Змащування редуктора та опис складання.,,,,,,,,,,,,,,,,,,,,,,,,,,,,,,,,,,,,,,,,,,,,59
Перелік посилань.,,,,,,,,,,,,,,,,,,,,,,,,,,,,,,,,,,,,,,,,,,,,,,,,,,,,,,,,,61

Схема приводу
1 – електродвигун; 2 –пасова передача; 3 – редуктор;
4 – рама; 5 – муфта; 6 – зірочка.
Тягове зусилля пасу – 24 кН
Швидкість пасу – 0,75 м/с
Кількість зубів зірочки – 6
Крок ланцюга – 100 мм
Добова тривалість праці – 2 зміни
Коефіцієннт використання приводу протягом зміни – 0,75.
Строк служби – 4 роки.


Сообщить о проблеме
Автор
user-avatar dmitro024
Дата
07.07.2020
Язык
Украинский
Состав
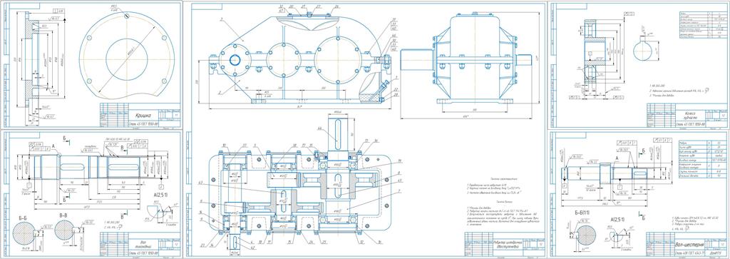
Редуктор(ВО),Деталировка(вал тихоходный,колесо зубчатое,вал шестерня,корпус),Спецификация.
Софт
КОМПАС-3D 18.1 Как открыть?
Отзывов пока нет
Задать вопрос
Содержимое архива
  • icon-cdw Koleso_zubchatoe.cdw
  • icon-cdw Kryshka.cdw
  • icon-cdw Reduktor.cdw
  • icon-spw Spetsifikatsia_reduktora.spw
  • icon-cdw Val-shesternya.cdw
  • icon-cdw Val_tikhokhodny.cdw
  • icon-doc записка детали машин.docx
Чтобы скачать чертеж, 3D модель или проект, Вы должны зарегистрироваться и принять участие в жизни сайта. Посмотрите, как тут скачивать файлы
Отзывов пока нет
Чтобы оставить отзыв, необходимо войти
Войти с помощью:

Используя функцию входа через сторонние сервисы, Вы соглашаетесь на обработку персональных данных в соответствии с Политикой конфиденциальности