Перейти к содержимому
Войти

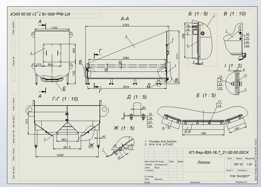
Лоток приемный конвейера

0
0
38
0
0
300

Лоток для приема инертных материалов на конвейере подающем ролике или весовом (ширина ленты - 1000 мм). Лоток оснащен боковой лентой, которая устраняет просыпание материала, а также продольным рассекателем, который не дает накапливаться материалу.


Сообщить о проблеме
Дата
22.11.2025
Язык
Украинский
Состав
3Д модели, деталирование, чертежи, сборочные чертежи, спецификации
Софт
SolidWorks 18 Как открыть?
Отзывов пока нет
Задать вопрос
Содержимое архива
      • icon-sldprt
        Болт М6х30.58 ГОСТ 7805-70.SLDPRT
      • icon-sldprt
        Гайка М6-6H.6.019 ГОСТ 5915-70.SLDPRT
      • icon-sldprt
        Глушник мод. 2931 1,8 дюйма.SLDPRT
      • icon-pdf
        КВД-11(1000)_06.00.00 - Розсікач.pdf
      • icon-sldasm
        КВД-11(1000)_06.00.00 - Розсікач.SLDASM
      • icon-slddrw
        КВД-11(1000)_06.00.00 - Розсікач.SLDDRW
      • icon-pdf
        КВД-11(1000)_06.00.00-01 - Розсікач.pdf
      • icon-sldasm
        КВД-11(1000)_06.00.00-01 - Розсікач.SLDASM
      • icon-slddrw
        КВД-11(1000)_06.00.00-01 - Розсікач.SLDDRW
      • icon-pdf
        КВД-11(1000)_06.00.00-01 МК - Розсікач монтаж пневмообладнання.pdf
      • icon-sldasm
        КВД-11(1000)_06.00.00-01 МК - Розсікач монтаж пневмообладнання.SLDASM
      • icon-slddrw
        КВД-11(1000)_06.00.00-01 МК - Розсікач монтаж пневмообладнання.SLDDRW
      • icon-pdf
        КВД-11(1000)_06.00.00-02 - Розсікач.pdf
      • icon-sldasm
        КВД-11(1000)_06.00.00-02 - Розсікач.SLDASM
      • icon-slddrw
        КВД-11(1000)_06.00.00-02 - Розсікач.SLDDRW
      • icon-pdf
        КВД-11(1000)_06.00.00-03 - Розсікач.pdf
      • icon-sldasm
        КВД-11(1000)_06.00.00-03 - Розсікач.SLDASM
      • icon-slddrw
        КВД-11(1000)_06.00.00-03 - Розсікач.SLDDRW
      • icon-pdf
        КВД-11(1000)_06.00.01 - Кутник.pdf
      • icon-slddrw
        КВД-11(1000)_06.00.01 - Кутник.SLDDRW
      • icon-sldprt
        КВД-11(1000)_06.00.01 - Кутник.SLDPRT
      • icon-pdf
        КВД-11(1000)_06.00.01-02 - Кутник.pdf
      • icon-slddrw
        КВД-11(1000)_06.00.01-02 - Кутник.SLDDRW
      • icon-sldprt
        КВД-11(1000)_06.00.01-02 - Кутник.SLDPRT
      • icon-pdf
        КВД-11(1000)_06.00.01-03 - Кутник.pdf
      • icon-slddrw
        КВД-11(1000)_06.00.01-03 - Кутник.SLDDRW
      • icon-sldprt
        КВД-11(1000)_06.00.01-03 - Кутник.SLDPRT
      • icon-pdf
        КВД-11(1000)_06.00.02 - Косинка.pdf
      • icon-slddrw
        КВД-11(1000)_06.00.02 - Косинка.SLDDRW
      • icon-sldprt
        КВД-11(1000)_06.00.02 - Косинка.SLDPRT
      • icon-sldprt
        КВД-11(1000)_06.00.03 - Пластина.SLDPRT
      • icon-pdf
        КВД-11(1000)_06.00.04 - Ребро.pdf
      • icon-slddrw
        КВД-11(1000)_06.00.04 - Ребро.SLDDRW
      • icon-sldprt
        КВД-11(1000)_06.00.04 - Ребро.SLDPRT
      • icon-pdf
        КВД-11(1000)_06.00.05 - Ребро.pdf
      • icon-slddrw
        КВД-11(1000)_06.00.05 - Ребро.SLDDRW
      • icon-sldprt
        КВД-11(1000)_06.00.05 - Ребро.SLDPRT
      • icon-pdf
        КВД-11(1000)_06.00.06 - Труба.pdf
      • icon-slddrw
        КВД-11(1000)_06.00.06 - Труба.SLDDRW
      • icon-sldprt
        КВД-11(1000)_06.00.06 - Труба.SLDPRT
      • icon-pdf
        КВД-11(1000)_06.00.07 - Бобишка.pdf
      • icon-slddrw
        КВД-11(1000)_06.00.07 - Бобишка.SLDDRW
      • icon-sldprt
        КВД-11(1000)_06.00.07 - Бобишка.SLDPRT
      • icon-sldprt
        Пневматичний вібратор WAM S8.SLDPRT
      • icon-sldprt
        Трубка.SLDPRT
      • icon-sldprt
        Фітінг 1510 8,6-1,8.SLDPRT
      • icon-sldprt
        Шайба 6 65Г ГОСТ 6402-70.SLDPRT
      • icon-sldprt
        Шайба 6.016 ГОСТ 11371-78.SLDPRT
      • icon-sldprt
        Болт М10х25.58 ГОСТ 7805-70.SLDPRT
      • icon-sldprt
        Болт М10х30.58 ГОСТ 7805-70.SLDPRT
      • icon-sldprt
        Гайка М8-6H.6.019 ГОСТ 5915-70.SLDPRT
      • icon-sldprt
        Гайка М12-6H.6.019 ГОСТ 5915-70.SLDPRT
      • icon-pdf
        КП.Фер-800-18,7_21.01.00.00 - Корпус.pdf
      • icon-sldasm
        КП.Фер-800-18,7_21.01.00.00 - Корпус.SLDASM
      • icon-slddrw
        КП.Фер-800-18,7_21.01.00.00 - Корпус.SLDDRW
      • icon-pdf
        КП.Фер-800-18,7_21.01.00.01 - Передня стінка.pdf
      • icon-slddrw
        КП.Фер-800-18,7_21.01.00.01 - Передня стінка.SLDDRW
      • icon-sldprt
        КП.Фер-800-18,7_21.01.00.01 - Передня стінка.SLDPRT
      • icon-pdf
        КП.Фер-800-18,7_21.01.00.02 - Борт лотка.pdf
      • icon-slddrw
        КП.Фер-800-18,7_21.01.00.02 - Борт лотка.SLDDRW
      • icon-sldprt
        КП.Фер-800-18,7_21.01.00.02 - Борт лотка.SLDPRT
      • icon-sldprt
        КП.Фер-800-18,7_21.01.00.02-01 - Борт лотка.SLDPRT
      • icon-slddrw
        КП.Фер-800-18,7_21.01.00.03 - Труба.SLDDRW
      • icon-sldprt
        КП.Фер-800-18,7_21.01.00.03 - Труба.SLDPRT
      • icon-slddrw
        КП.Фер-800-18,7_21.01.00.03-01 - Труба.SLDDRW
      • icon-sldprt
        КП.Фер-800-18,7_21.01.00.03-01 - Труба.SLDPRT
      • icon-slddrw
        КП.Фер-800-18,7_21.01.00.04 - Провушина.SLDDRW
      • icon-sldprt
        КП.Фер-800-18,7_21.01.00.04 - Провушина.SLDPRT
      • icon-slddrw
        КП.Фер-800-18,7_21.01.00.04-01 - Провушина.SLDDRW
      • icon-sldprt
        КП.Фер-800-18,7_21.01.00.04-01 - Провушина.SLDPRT
      • icon-pdf
        КП.Фер-800-18,7_21.01.00.05 - Ребро.pdf
      • icon-slddrw
        КП.Фер-800-18,7_21.01.00.05 - Ребро.SLDDRW
      • icon-sldprt
        КП.Фер-800-18,7_21.01.00.05 - Ребро.SLDPRT
      • icon-slddrw
        КП.Фер-800-18,7_21.01.00.06 - Кронштейн.SLDDRW
      • icon-sldprt
        КП.Фер-800-18,7_21.01.00.06 - Кронштейн.SLDPRT
      • icon-pdf
        КП.Фер-800-18,7_21.01.00.07 - Кронштейн.pdf
      • icon-slddrw
        КП.Фер-800-18,7_21.01.00.07 - Кронштейн.SLDDRW
      • icon-sldprt
        КП.Фер-800-18,7_21.01.00.07 - Кронштейн.SLDPRT
      • icon-pdf
        КП.Фер-800-18,7_21.01.00.08 - Стійка.pdf
      • icon-slddrw
        КП.Фер-800-18,7_21.01.00.08 - Стійка.SLDDRW
      • icon-sldprt
        КП.Фер-800-18,7_21.01.00.08 - Стійка.SLDPRT
      • icon-pdf
        КП.Фер-800-18,7_21.01.00.09 - Платік.pdf
      • icon-slddrw
        КП.Фер-800-18,7_21.01.00.09 - Платік.SLDDRW
      • icon-sldprt
        КП.Фер-800-18,7_21.01.00.09 - Платік.SLDPRT
      • icon-pdf
        КП.Фер-800-18,7_21.01.00.10 - Ребро.pdf
      • icon-slddrw
        КП.Фер-800-18,7_21.01.00.10 - Ребро.SLDDRW
      • icon-sldprt
        КП.Фер-800-18,7_21.01.00.10 - Ребро.SLDPRT
      • icon-pdf
        КП.Фер-800-18,7_21.01.00.11 - Планка.pdf
      • icon-slddrw
        КП.Фер-800-18,7_21.01.00.11 - Планка.SLDDRW
      • icon-sldprt
        КП.Фер-800-18,7_21.01.00.11 - Планка.SLDPRT
      • icon-pdf
        КП.Фер-800-18,7_21.01.00.12 - Лист.pdf
      • icon-slddrw
        КП.Фер-800-18,7_21.01.00.12 - Лист.SLDDRW
      • icon-sldprt
        КП.Фер-800-18,7_21.01.00.12 - Лист.SLDPRT
      • icon-pdf
        КП.Фер-800-18,7_21.01.00.13 - Кронштейн.pdf
      • icon-slddrw
        КП.Фер-800-18,7_21.01.00.13 - Кронштейн.SLDDRW
      • icon-sldprt
        КП.Фер-800-18,7_21.01.00.13 - Кронштейн.SLDPRT
      • icon-pdf
        АБЗВ-25(40)01.05.03.02 - Ручка.pdf
      • icon-slddrw
        АБЗВ-25(40)01.05.03.02 - Ручка.SLDDRW
      • icon-sldprt
        АБЗВ-25(40)01.05.03.02 - Ручка.SLDPRT
      • icon-pdf
        КП.Фер-800-18,7_21.02.00.00 - Кришка.pdf
      • icon-sldasm
        КП.Фер-800-18,7_21.02.00.00 - Кришка.SLDASM
      • icon-slddrw
        КП.Фер-800-18,7_21.02.00.00 - Кришка.SLDDRW
      • icon-pdf
        КП.Фер-800-18,7_21.02.00.01 - Лист.pdf
      • icon-slddrw
        КП.Фер-800-18,7_21.02.00.01 - Лист.SLDDRW
      • icon-sldprt
        КП.Фер-800-18,7_21.02.00.01 - Лист.SLDPRT
    • icon-sldprt
      Болт М8х30.58 ГОСТ 7805-70.SLDPRT
    • icon-sldprt
      Болт М8х65.58 ГОСТ7805-70.SLDPRT
    • icon-sldprt
      Болт М10х25.58 ГОСТ 7805-70.SLDPRT
    • icon-sldprt
      Болт М10х30.58 ГОСТ 7805-70.SLDPRT
    • icon-sldprt
      Болт М12х30.58 ГОСТ7805-70.SLDPRT
    • icon-sldprt
      Болт М12х40.58 ГОСТ7805-70.SLDPRT
    • icon-sldprt
      Болт М12х60.58 ГОСТ7805-70.SLDPRT
    • icon-sldprt
      Болт М16х35.58 ГОСТ7805-70.SLDPRT
    • icon-sldprt
      Болт М16х40.88 ГОСТ 7805-70.SLDPRT
    • icon-sldprt
      Болт М16х40.88 ГОСТ7805-70.SLDPRT
    • icon-sldprt
      Гайка М8-6H.6.019 ГОСТ 5915-70.SLDPRT
    • icon-sldprt
      Гайка М10-6H.6.019 ГОСТ 5915-70.SLDPRT
    • icon-sldprt
      Гайка М12-6H.6.019 ГОСТ 5915-70.SLDPRT
    • icon-sldprt
      Гайка М16-6H.6.019 ГОСТ 5915-70.SLDPRT
    • icon-pdf
      КП.Фер-800-18,7_21.00.00.00 - Лоток.pdf
    • icon-sldasm
      КП.Фер-800-18,7_21.00.00.00 - Лоток.SLDASM
    • icon-slddrw
      КП.Фер-800-18,7_21.00.00.00 - Лоток.SLDDRW
    • icon-step
      КП.Фер-800-18,7_21.00.00.00 - Лоток.STEP
    • icon-pdf
      КП.Фер-800-18,7_21.00.00.01 - Затвор.pdf
    • icon-slddrw
      КП.Фер-800-18,7_21.00.00.01 - Затвор.SLDDRW
    • icon-sldprt
      КП.Фер-800-18,7_21.00.00.01 - Затвор.SLDPRT
    • icon-pdf
      КП.Фер-800-18,7_21.00.00.02 - Стрічка.pdf
    • icon-slddrw
      КП.Фер-800-18,7_21.00.00.02 - Стрічка.SLDDRW
    • icon-sldprt
      КП.Фер-800-18,7_21.00.00.02 - Стрічка.SLDPRT
    • icon-pdf
      КП.Фер-800-18,7_21.00.00.03 - Стрічка.pdf
    • icon-slddrw
      КП.Фер-800-18,7_21.00.00.03 - Стрічка.SLDDRW
    • icon-sldprt
      КП.Фер-800-18,7_21.00.00.03 - Стрічка.SLDPRT
    • icon-pdf
      КП.Фер-800-18,7_21.00.00.04 - Стрічка.pdf
    • icon-slddrw
      КП.Фер-800-18,7_21.00.00.04 - Стрічка.SLDDRW
    • icon-sldprt
      КП.Фер-800-18,7_21.00.00.04 - Стрічка.SLDPRT
    • icon-pdf
      КП.Фер-800-18,7_21.00.00.05 - Полоса.pdf
    • icon-slddrw
      КП.Фер-800-18,7_21.00.00.05 - Полоса.SLDDRW
    • icon-sldprt
      КП.Фер-800-18,7_21.00.00.05 - Полоса.SLDPRT
    • icon-pdf
      КП.Фер-800-18,7_21.00.00.06 - Полоса.pdf
    • icon-slddrw
      КП.Фер-800-18,7_21.00.00.06 - Полоса.SLDDRW
    • icon-sldprt
      КП.Фер-800-18,7_21.00.00.06 - Полоса.SLDPRT
    • icon-pdf
      КП.Фер-800-18,7_21.00.00.07 - Полоса.pdf
    • icon-slddrw
      КП.Фер-800-18,7_21.00.00.07 - Полоса.SLDDRW
    • icon-sldprt
      КП.Фер-800-18,7_21.00.00.07 - Полоса.SLDPRT
    • icon-pdf
      КП.Фер-800-18,7_21.00.00.08 - Прокладка.pdf
    • icon-slddrw
      КП.Фер-800-18,7_21.00.00.08 - Прокладка.SLDDRW
    • icon-sldprt
      КП.Фер-800-18,7_21.00.00.08 - Прокладка.SLDPRT
    • icon-slddrw
      КП.Фер-800-18,7_21.00.00.09 - Вухо.SLDDRW
    • icon-sldprt
      КП.Фер-800-18,7_21.00.00.09 - Вухо.SLDPRT
    • icon-sldprt
      Шайба 8 65Г ГОСТ 6402-70.SLDPRT
    • icon-sldprt
      Шайба 8.016 ГОСТ 11371-78.SLDPRT
    • icon-sldprt
      Шайба 12 65Г ГОСТ 6402-70.SLDPRT
    • icon-sldprt
      Шайба 12.016 ГОСТ 11371-78.SLDPRT
    • icon-sldprt
      Шайба 16 65Г ГОСТ 6402-70.SLDPRT
    • icon-sldprt
      Шайба 16.016 ГОСТ 11371-78.SLDPRT
Чтобы скачать чертеж, 3D модель или проект, Вы должны зарегистрироваться и принять участие в жизни сайта. Посмотрите, как тут скачивать файлы
Отзывов пока нет
Чтобы оставить отзыв, необходимо войти
Войти с помощью:

Используя функцию входа через сторонние сервисы, Вы соглашаетесь на обработку персональных данных в соответствии с Политикой конфиденциальности