Перейти к содержимому
Войти

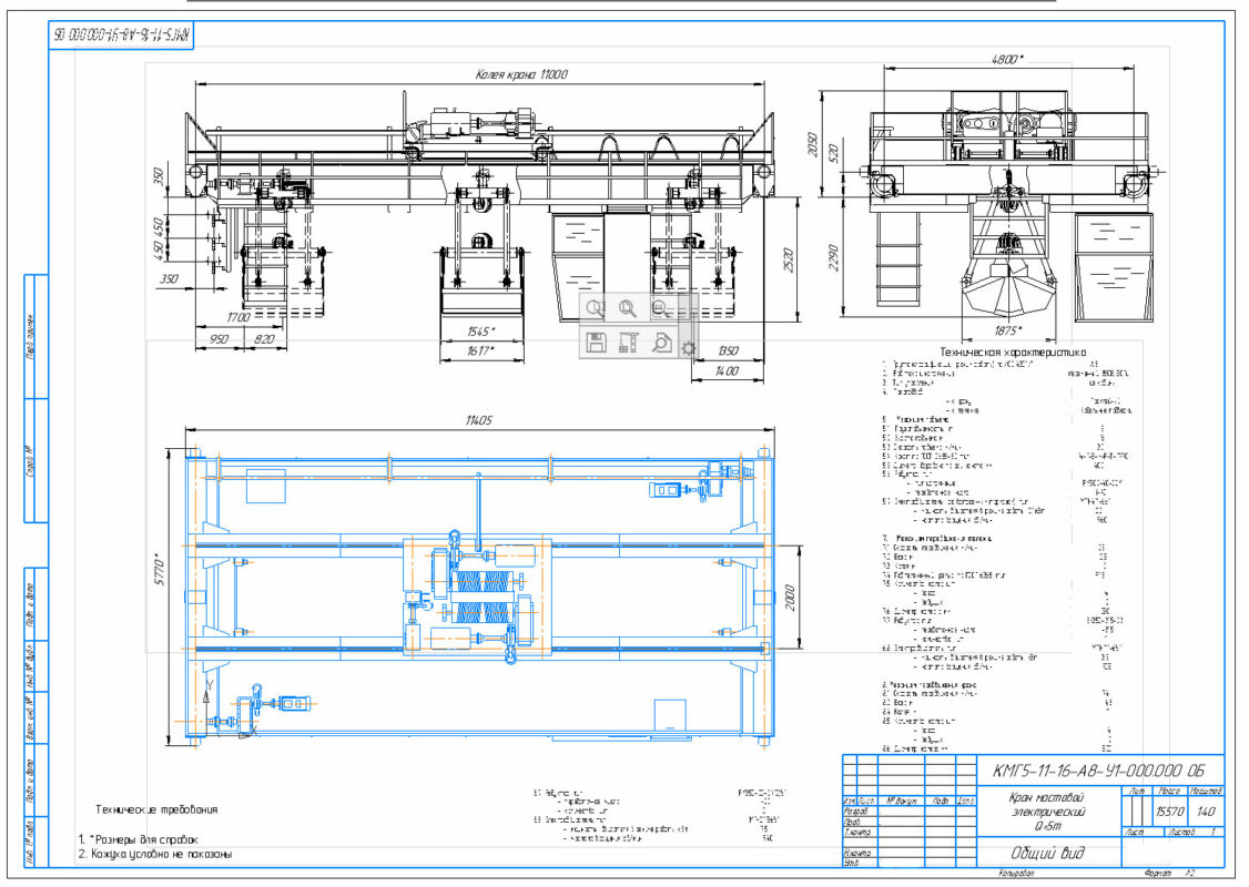
Мостовой кран грузоподъемностью 5 тонн 3D сборка

1
129
3183
1
1
1 500

Кран грузоподъемностью 5 тон готовая сборка 3D на некоторые детали есть 2D чертежи. Кран рассчитан под изготовление.

Техническая характеристика
1. Группа классификации (режим работы) по ИСО 4301/1 А8
2. Род тока и напряжение переменный. 380В. 50Гц
3. Тип управления из кабины
4. Токоподвод:
- к крану Троллейный
- к тележке Кабельные подвески
5. Механизм подъема
5.1 Грузоподъемность, т 5
5.2 Высота подъема, м 16
5.3 Скорость подъема, м/мин 30
5.4 Канат по ГОСТ 2688-80, тип 14-Г-В-Н-Р-Т-1770
5.5 Диометр барабана по оси каната, мм 400
5.6 Редуктор, тип
- тип исполнение РМ500-40-22М
- передаточное число i=40
5.7 Электродвигатель (со встроенным тормозам), тип МТН411-6У1
- мошность двигателя в режиме работы S1,кВт 22
- частота вращения, об/мин 960
7. Механизм передвижения тележки
7.1 Скорость передвижения, м/мин 25
7.2 База, м 2,5
7.3 Колея, м 2
7.4 Подтележечный рельс по ГОСТ 6368, тип Р18
7.5 Количество колес, шт:
- всего 4
- ведущих 2
7.6 Диаметр колес а, мм 250
7.7 Редуктор, тип ВК350-31,5-23
- передаточное число i=31,5
- количество , шт 1
6.8 Электродвигатель, тип МТН111-6У1
- мошность двигателя в режиме работы, кВт 3,5
- частота вращения, об/мин 905
8. Механизм передвижения крана
8.1 Скорость передвижения, м/мин 74
8.2 База, м 4,8
8.4 Колея, м 11
8.5 Количество колес, шт:
- всего 4
- ведущих 2
8.6 Диаметр колеса, мм 500


Сообщить о проблеме
Автор
user-avatar arikbrus
Дата
12.12.2016
Язык
Русский
Состав
3D Сборка, детали, сборочные единицы
Софт
КОМПАС-3D 16,1 Как открыть?
Отзывов пока нет
Задать вопрос
Содержимое архива
        • icon-cdw Кран мостовой электрический Q=5т _ КМ5-11-12-А8-DRW-000.000 .cdw
        • icon-cdw Кран мостовой электрический Q=5т _ КМГ-5-11-А8-900.000 ОБ.cdw
        • icon-cdw Кран мостовой электрический Q=5т _ КМГ-5-11-А8-900.000 СБ.cdw
        • icon-cdw Косынка _ КМГ5-11-16-А8- 900.003.cdw
        • icon-cdw Косынка _ КМГ5-11-16-А8- 900.004.cdw
        • icon-cdw Устоновка буферов _ КМГ5-11-16-А8- 900.000 .cdw
        • icon-cdw Устоновка буферов Сборочный чертеж _ КМГ-5-11-А8-900.000 СБ.cdw
        • icon-cdw Фланец _ КМГ5-11-16-А8-900.002.cdw
        • icon-cdw Фланец КМГ5-11-16-А8-900.001.cdw
        • icon-cdw Вспомогательная кабина _ КМГ-5-11-А8-800.000 СБ.cdw
        • icon-cdw Колцо _ КМГ-5-11-А8-300.200.002.cdw
        • icon-cdw Метельник _ КМГ-5-11-А8-900.001.cdw
        • icon-cdw Пластина _ КМГ-5-11-А8-900.003.cdw
        • icon-cdw Устоновка буферов _ КМГ5-11-16-А8-У1-200.000.cdw
        • icon-cdw Мост ограждения крана _ КМГ5-11-16-А8-У1-300.000 .cdw
        • icon-cdw Мост ограждения крана _ КМГ5-11-16-А8-У1-300.000 СБ .cdw
          • icon-cdw Вал _ КМ5-11-12-А8-DRW-240.004.cdw
          • icon-cdw Вал _ КМ5-11-12-А8-DRW-240.004.cdw
        • icon-cdw 19 Болт призонный _ КМ10-16,5-02.cdw
        • icon-cdw 1234.cdw
        • icon-cdw Болт призонный _ КМ10-16,5-02.cdw
        • icon-cdw Колесо _ КК-12,5-05.03.01.cdw
        • icon-cdw Копия втулка зубчатая z40 m3.cdw
        • icon-cdw Механизм передвижение крана _ КМГ5-11-16-А8-У1-400.000 СБ.cdw
        • icon-cdw Механизм передвижение крана _ КМГ5-11-16-А8-У1-400.000.cdw
        • icon-cdw Обойма _ КК-12,5-05.01.02.cdw
        • icon-cdw Обойма зубчатая _ КМГ5-11-16-А8-У1-400.011.cdw
        • icon-cdw Обойма зубчатая _ КМГ5-11-16-А8-У1-400.012.cdw
        • icon-cdw Полумуфта _ КМГ5-11-16-А8-У1-400.008.cdw
        • icon-cdw Полумуфта _ КМГ5-11-16-А8-У1-400.010.cdw
        • icon-cdw Полумуфты _ РМ 350.cdw
        • icon-cdw втулка зубчатая z38 m2.5.cdw
        • icon-cdw Балка _ КМГ-5-11-А8-800.002.cdw
        • icon-cdw Вспомогательная кабина _ КМГ-5-11-А8-800.000.cdw
        • icon-cdw Вспомогательная кабина Сборочный чертеж _ КМГ-5-11-А8-800.000 СБ.cdw
        • icon-cdw Настил _ КМГ-5-11-А8-800.001.cdw
        • icon-cdw Тросоотбойник _ КМГ5-11-16-А8-У1-700.000.cdw
        • icon-cdw Тросоотбойник КМГ5-11-16-А8-У1-700.000.cdw
        • icon-cdw Токоподвод грузовой тележки _ КМГ5-11-16-А8-У1-800.000 СБ.cdw
        • icon-cdw Токоподвод грузовой тележки _ КМГ5-11-А8-300.100.500.cdw
        • icon-cdw Кабина _ КМГ5-11-16-А8-У1-900.000 .cdw
        • icon-cdw Кабина _ КМГ5-11-16-А8-У1-900.000 СБ.cdw
      • icon-m3d 250-400.m3d
      • icon-m3d 4550-450 лист.m3d
      • icon-a3d Балка 1.a3d
      • icon-m3d Боковая стенка.m3d
      • icon-m3d Верхная пояс.m3d
      • icon-m3d Верхная пояс 2.m3d
      • icon-m3d Деофрагма 550-400.m3d
      • icon-m3d Нижная пояс.m3d
      • icon-m3d листи 550-400.m3d
        • icon-m3d Рама 2.m3d
        • icon-a3d есік 1.a3d
        • icon-m3d рама1.m3d
        • icon-m3d связь 25-25-350.m3d
        • icon-m3d 1.m3d
        • icon-m3d 2.m3d
        • icon-m3d 3.m3d
        • icon-m3d 4.m3d
        • icon-m3d 5.m3d
        • icon-m3d 6.m3d
        • icon-m3d 7.m3d
        • icon-m3d 8.m3d
        • icon-m3d 9.m3d
        • icon-m3d 10.m3d
        • icon-m3d 11.m3d
        • icon-m3d 12.m3d
        • icon-m3d 13.m3d
        • icon-m3d 14.m3d
        • icon-m3d 15.m3d
        • icon-m3d 18.m3d
        • icon-m3d 19.m3d
        • icon-m3d 20.m3d
        • icon-m3d 21.m3d
        • icon-m3d 22.m3d
        • icon-m3d 23.m3d
        • icon-m3d 490.m3d
      • icon-a3d 1 секция.a3d
      • icon-m3d 2 Петля.m3d
      • icon-m3d 2 связь 650-45.m3d
      • icon-m3d 75-75-890.m3d
      • icon-m3d 75-75-1500.m3d
      • icon-m3d 364-45-2.m3d
      • icon-m3d 364-45.m3d
      • icon-m3d 710-45.m3d
      • icon-m3d 800-45.m3d
      • icon-m3d 850-45-2.m3d
      • icon-m3d 850-45.m3d
      • icon-m3d 1000-45-2.m3d
      • icon-m3d 1000-45.m3d
      • icon-m3d 1312-45-2.m3d
      • icon-m3d 1312-45.m3d
      • icon-m3d 1494-45.m3d
      • icon-m3d 1494.-45.m3d
      • icon-m3d 1500-45.m3d
      • icon-m3d 2090-45.m3d
      • icon-m3d Косынка.m3d
      • icon-m3d Петля.m3d
      • icon-m3d Раскос.m3d
      • icon-m3d Стойка.m3d
      • icon-m3d Стойка уголок.m3d
      • icon-m3d втулка.m3d
      • icon-m3d лист.m3d
      • icon-m3d лист 1.m3d
      • icon-m3d ось.m3d
      • icon-a3d петля.a3d
      • icon-a3d рама 1.a3d
      • icon-m3d связ 3.m3d
      • icon-m3d связь.m3d
      • icon-m3d связь 2,2.m3d
      • icon-m3d связь 2.m3d
      • icon-m3d связь 20-40-157.m3d
      • icon-m3d связь 20-40-657.m3d
      • icon-m3d связь20-40-757.m3d
      • icon-m3d связь 650-45.m3d
      • icon-m3d сойка2100.m3d
      • icon-m3d уголок.m3d
      • icon-m3d 800 труба.m3d
      • icon-m3d 820 труба.m3d
      • icon-a3d Кабина вспомагательная.a3d
      • icon-m3d ОТбортовка.m3d
      • icon-m3d Стойка.m3d
      • icon-m3d балка - копия.m3d
      • icon-m3d балка.m3d
      • icon-m3d балка2.m3d
      • icon-m3d настил.m3d
      • icon-m3d связь.m3d
      • icon-m3d уголок 820.m3d
      • icon-m3d Букса.m3d
      • icon-m3d Вал прводной.m3d
      • icon-m3d Вал холостая.m3d
      • icon-m3d Втулка зубчатая.m3d
      • icon-a3d Копия Сборка.a3d
      • icon-m3d Крышка внутренная.m3d
      • icon-m3d Крышка глухая.m3d
      • icon-m3d Крышка наружная.m3d
      • icon-a3d Сборка.a3d
      • icon-m3d Шпонка.m3d
      • icon-m3d втулка распорная.m3d
      • icon-m3d колесо 500.m3d
        • icon-m3d Букса.m3d
        • icon-m3d Вал прводной.m3d
        • icon-m3d Втулка зубчатая.m3d
        • icon-a3d Копия Сборка.a3d
        • icon-m3d Крышка внутренная.m3d
        • icon-m3d Крышка глухая.m3d
        • icon-m3d Крышка наружная.m3d
        • icon-a3d Сборка.a3d
        • icon-m3d Шпонка.m3d
        • icon-m3d втулка распорная.m3d
        • icon-m3d колесо 500.m3d
        • icon-m3d Башмак подбуксовый.m3d
        • icon-m3d Верхный пояс.m3d
        • icon-m3d Лист вспомогательный.m3d
        • icon-m3d Пластина.m3d
        • icon-m3d Платик.m3d
        • icon-m3d Стенка.m3d
        • icon-m3d Уголок.m3d
        • icon-a3d Холостая косевая балкаa3d.a3d
        • icon-m3d дефрагма.m3d
        • icon-m3d зер Башмак подбуксовый.m3d
        • icon-m3d зер Лист вспомогательный.m3d
        • icon-m3d нижний пояс.m3d
        • icon-m3d шайба.m3d
      • icon-a3d Балка концевая - копия.a3d
      • icon-a3d Балка концевая.a3d
      • icon-m3d Башмак подбуксовый.m3d
      • icon-a3d Концевая балка - копия.a3d
      • icon-a3d Концевая балка.a3d
      • icon-m3d Копия монтажная пластина.m3d
      • icon-m3d Платик.m3d
      • icon-m3d Стенка.m3d
      • icon-m3d Уголок.m3d
      • icon-m3d диафрагма.m3d
      • icon-m3d зер Башмак подбуксовый.m3d
      • icon-m3d зер Лист вспомогательный.m3d
      • icon-m3d лист верхная.m3d
      • icon-m3d лист нижний.m3d
      • icon-m3d монтажная пластина.m3d
      • icon-m3d пластина.m3d
      • icon-cdw 156+.cdw
      • icon-m3d 406 .m3d
      • icon-cdw Зоглушка _ КМГ5-11-16-А8-160.964.cdw
      • icon-m3d Лист 140-70.m3d
      • icon-m3d Манорельс.m3d
      • icon-m3d Раскос.m3d
      • icon-cdw Раскос _ КМГ5-11-16-А8-160.963.cdw
      • icon-a3d Стойка.a3d
      • icon-m3d Стойка.m3d
      • icon-cdw Стойка _ КМГ5-11-16-А8-160.960.cdw
      • icon-cdw Стойка _ КМГ5-11-16-А8-160.961.cdw
      • icon-cdw Стойка _ КМГ5-11-16-А8-160.962.cdw
      • icon-m3d зоглушка.m3d
      • icon-m3d Пластина.m3d
      • icon-m3d Резиновая буфер.m3d
      • icon-a3d Устоновка буферов.a3d
      • icon-m3d Фланец.m3d
      • icon-cdw 0.cdw
      • icon-m3d Tormoz TKG-200.m3d
      • icon-cdw КМГ-5-11-А8-900.000 СБ.cdw
      • icon-m3d Кардан .m3d
      • icon-m3d Кардан.m3d
      • icon-m3d Кардан 2.m3d
      • icon-cdw Кардан _ КМГ5-11-А8-200.008.cdw
      • icon-m3d Крышка.m3d
      • icon-m3d Полумуфта.m3d
      • icon-m3d Полумуфта колеса.m3d
      • icon-m3d Шкиф тормозной Редуктор РМ350.m3d
      • icon-m3d зубчатая втулка z38 m2.5.m3d
      • icon-m3d Буфер 200.m3d
      • icon-a3d Зажим.a3d
      • icon-m3d зажим.m3d
      • icon-m3d колцо буфера.m3d
      • icon-m3d кронштейн кабины - копия.m3d
      • icon-m3d кронштейн кабины.m3d
          • icon-cdw Вал _ КМГ-5-11-А8-300.400.102.cdw
          • icon-cdw Втулка распорная _ КМГ-5-11-А8-300.400.104.cdw
          • icon-cdw Втулка распорная _ КМГ-5-11-А8-300.400.105.cdw
          • icon-cdw Колесо в сборе _ КМГ-5-11-А8-300.400.100.cdw
          • icon-cdw Крышка _ КМГ-5-11-А8-300.400.106 - копия.cdw
          • icon-cdw Крышка _ КМГ-5-11-А8-300.400.106.cdw
          • icon-cdw Крышка _ КМГ-5-11-А8-300.400.107.cdw
          • icon-cdw Полумуфта ход тележки.cdw
          • icon-cdw Фланец _ КМГ-5-11-А8-300.500.101.cdw
            • icon-cdw Гнутик _ КМГ-5-11-А8-300.100.106.cdw
            • icon-cdw Гнутик _ КМГ-5-11-А8-300.100.107.cdw
            • icon-cdw Концевая балка _ КМГ-5-11-А8-300 СБ.cdw
            • icon-cdw Концевая балка _ КМГ-5-11-А8-300.100.100.cdw
            • icon-cdw Лист подбуксовый _ КМГ-5-11-А8-300.100.103.cdw
            • icon-cdw Накладка.cdw
            • icon-cdw Платик _ КМГ-5-11-А8-300.100.104.cdw
            • icon-cdw Рама _ КМГ-5-11-А8-300.100 СБ.cdw
            • icon-cdw Стенка _ КМГ-5-11-А8-300.100.101.cdw
            • icon-cdw Уселение _ КМГ-5-11-А8-300.100.105.cdw
            • icon-cdw Балка _ КМГ-5-11-А8-300.100.200.cdw
            • icon-cdw Балка Сборочный чертеж _ КМГ-5-11-А8-300.100.200 СБ.cdw
            • icon-cdw Балка _ КМГ-5-11-А8-300.100.200.cdw
            • icon-cdw Балка Сборочный чертеж _ КМГ-5-11-А8-300.100.300 СБ.cdw
            • icon-cdw Гнутик _ КМГ-5-11-А8-300.100.401.cdw
            • icon-cdw Связь _ КМГ-5-11-А8-300.100.400 1.cdw
            • icon-cdw Связь _ КМГ-5-11-А8-300.100.400.cdw
            • icon-cdw Кронштейн _ КМГ-5-11-А8-300.100.500 СБ.cdw
            • icon-cdw Кронштейн _ КМГ-5-11-А8-300.100.500.cdw
            • icon-cdw Лист.cdw
          • icon-cdw Концевая балка _ КМГ-5-11-А8-300.100.100.cdw
          • icon-cdw Рама _ КМГ-5-11-А8-300.100 СБ.cdw
          • icon-cdw Вал _ РМ500-12.cdw
          • icon-cdw Вал _ РМ500-22 — копия.cdw
          • icon-m3d Вал РМ500-ти.m3d
          • icon-a3d РМ500-12.a3d
          • icon-a3d РМ500-21.a3d
          • icon-m3d Редуктор РМ 500.m3d
          • icon-m3d тіс.m3d
          • icon-m3d шпонка.m3d
        • icon-cdw Вал _ РМ500-12.cdw
        • icon-cdw Вал _ РМ500-22 — копия.cdw
        • icon-m3d Вал РМ500-ти.m3d
        • icon-a3d РМ500-12.a3d
        • icon-a3d РМ500-21.a3d
        • icon-m3d Редуктор РМ 500.m3d
        • icon-m3d тіс.m3d
        • icon-m3d шпонка.m3d
        • icon-m3d 1.m3d
        • icon-m3d 2.m3d
        • icon-m3d 3.m3d
        • icon-m3d 4.m3d
        • icon-m3d 5.m3d
        • icon-m3d 6.m3d
        • icon-m3d 7.m3d
        • icon-m3d 8.m3d
        • icon-a3d ТКГ300.a3d
        • icon-cdw Токоподвод грузовой тележки Сборочный чертеж _ КМГ-5-11-А8-300.100.500 СБ.cdw
        • icon-cdw Ребро _ КМГ5-11-А8-300.100.501.cdw
        • icon-cdw Упор _ КМГ5-11-А8-300.100.500.cdw
      • icon-m3d 4МТМ200 LA6. 22 кВт 960 об-мин .m3d
      • icon-m3d 48-48.m3d
      • icon-m3d 252-175.m3d
      • icon-m3d 265-270.m3d
      • icon-m3d БУКСА ПОД 130.m3d
      • icon-m3d Барабан 400.m3d
      • icon-m3d Вал.m3d
      • icon-m3d Втулка зубчатая 30-2,5.m3d
      • icon-m3d Втулка распорная - копия.m3d
      • icon-m3d Втулка распорная.m3d
      • icon-m3d Деталь.m3d
      • icon-m3d Диафрагма.m3d
      • icon-m3d Кардан 2.m3d
      • icon-m3d Кардан 4.m3d
      • icon-m3d Колесо.m3d
      • icon-cdw Колесо в сборе.cdw
      • icon-m3d Крышка - копия (2).m3d
      • icon-m3d Крышка - копия.m3d
      • icon-m3d Крышка.m3d
      • icon-m3d Лист гнутый.m3d
      • icon-m3d ПЫльник 5.m3d
      • icon-m3d Полумуфта зубчатая ТКГ-300 d-185.m3d
      • icon-m3d Полумуфта ход тележки.m3d
      • icon-m3d Пыльник полумуфты.m3d
      • icon-a3d Сборка.a3d
      • icon-a3d Тележка грузовая.a3d
      • icon-cdw Тележка грузовая.cdw
      • icon-a3d Тележка грузовая Q=5 n .a3d
      • icon-cdw Тележка грузовая Q=5т _ КМГ5-11-16-А8-У1-501.cdw
      • icon-a3d Упор.a3d
      • icon-m3d Шкив тормозной РМ500.m3d
      • icon-a3d балка.a3d
      • icon-m3d букса.m3d
      • icon-a3d вадила.a3d
      • icon-m3d вланец.m3d
      • icon-cdw гнутик.cdw
      • icon-m3d гнутик.m3d
      • icon-m3d гнутик2.m3d
      • icon-m3d дефрагма.m3d
      • icon-a3d звязь.a3d
      • icon-m3d кардан.m3d
      • icon-m3d косынка 10.m3d
      • icon-m3d лист 1.m3d
      • icon-m3d лист 5.m3d
      • icon-m3d лист 7.m3d
      • icon-m3d лист 220-50.m3d
      • icon-m3d лист боковой.m3d
      • icon-m3d лист боковой 2.m3d
      • icon-m3d лист подбуксовый.m3d
      • icon-m3d накладка - копия.m3d
      • icon-m3d накладка.m3d
      • icon-m3d настил.m3d
      • icon-m3d обойма зучатая 30-2,5.m3d
      • icon-m3d пластина.m3d
      • icon-m3d платик.m3d
      • icon-a3d подем.a3d
      • icon-m3d полумуфта .m3d
      • icon-a3d поперечная балка.a3d
      • icon-m3d пояс нижний.m3d
      • icon-m3d пояс нижний4.m3d
      • icon-m3d ребро.m3d
      • icon-m3d ребро2.m3d
      • icon-m3d рэдуктор ВК350.m3d
      • icon-m3d уголок 1500.m3d
      • icon-dwg уселение.dwg
      • icon-m3d фланец.m3d
      • icon-m3d 150-200.m3d
      • icon-m3d 1500 уголок .m3d
      • icon-m3d стойка.m3d
      • icon-a3d тросотбойник.a3d
    • icon-m3d 150-190.m3d
    • icon-m3d 190.m3d
    • icon-m3d 195-160.m3d
    • icon-m3d 596.m3d
    • icon-m3d 1004 - копия.m3d
    • icon-m3d 1004.m3d
    • icon-m3d 3040.m3d
    • icon-m3d 5354.0.m3d
    • icon-m3d 10139.5858.m3d
    • icon-cdw 564564.cdw
    • icon-dwg 564564.dwg
    • icon-m3d Tormoz TKG160M.m3d
    • icon-m3d Кольцо буфера.m3d
    • icon-m3d Косынка.m3d
    • icon-m3d Косынка5.m3d
    • icon-m3d Косынка 65-65.m3d
    • icon-m3d Косынка 456.m3d
    • icon-a3d Кран мостовой Двухбалаочный Q-5 т Грейферный.a3d
    • icon-step Кран мостовой Двухбалаочный Q-5 т Грейферный.stp
    • icon-m3d ЛИст 370-124 .m3d
    • icon-a3d Метелник с буфером.a3d
    • icon-m3d Метельник.m3d
    • icon-m3d Накладка.m3d
    • icon-m3d Обойма зубчатая 155 z-38 .m3d
    • icon-m3d Опора редуктора.m3d
    • icon-m3d Перила -3220.m3d
    • icon-m3d Перила.m3d
    • icon-m3d Полумуфта электродвигатель МТН 211 В6 7,5 кВт 935 обмин.m3d
    • icon-m3d Рельс 18.m3d
    • icon-m3d Стойка.m3d
    • icon-cdw Траверса.cdw
    • icon-m3d Уголок 750.m3d
    • icon-m3d Уголок 826.m3d
    • icon-m3d Уголок 1004.m3d
    • icon-m3d Ушка.m3d
    • icon-m3d Ушка 454.m3d
    • icon-m3d Эл.двигатель 4MTF111-6.m3d
    • icon-m3d втулка зубчатая Z=40 m=3.m3d
    • icon-m3d косынка 4.m3d
    • icon-m3d лис124-130.m3d
    • icon-m3d лист 77.m3d
    • icon-m3d лист 160-230.m3d
    • icon-m3d лист настил.m3d
    • icon-m3d лист упор 2.m3d
    • icon-m3d лист упора.m3d
    • icon-m3d лист упора 4.m3d
    • icon-m3d настил - копия.m3d
    • icon-m3d настил.m3d
    • icon-m3d настил2.m3d
    • icon-m3d отбортовка.m3d
    • icon-m3d перилда.m3d
    • icon-m3d пластина.m3d
    • icon-m3d полоса -10140 - копия.m3d
    • icon-m3d полоса -10140.m3d
    • icon-m3d редуктор РМ350 - копия.m3d
    • icon-m3d редуктор РМ350.m3d
    • icon-m3d угол.m3d
    • icon-m3d электордвигател 4МТҒ 132 №7,5.m3d
Чтобы скачать чертеж, 3D модель или проект, Вы должны зарегистрироваться и принять участие в жизни сайта. Посмотрите, как тут скачивать файлы
Отзывов пока нет
Чтобы оставить отзыв, необходимо войти
Войти с помощью:

Используя функцию входа через сторонние сервисы, Вы соглашаетесь на обработку персональных данных в соответствии с Политикой конфиденциальности