Перейти к содержимому
Войти

Основы технологического процесса изготовления детали "шестерня заднего вала"

0
3
254
5
0
50

Белорусский национальный технический университет
Кафедра "Технология машиностроения"
Курсовая работа по дисциплине "Технология машиностроения"
На тему: "Основы технологического процесса изготовления детали "шестерня заднего вала"
Минск 2018

Исходные данные: чертеж детали, годовая программа выпуска - 5000 шт.
В курсовой работе разработан технологический процесс изготовления детали – шестерня заднего вала. В процессе проектирования был произведён расчет технологического процесса получения заготовки и в дальнейшем получение готовой детали. При соответствующем выборе современного оборудования металлорежущих станков.
Содержание
Введение 2
1. Анализ технологичности конструкции детали 3
1.1 Качественная оценка технологичности конструкции детали 3
1.2 Количественная оценка технологичности конструкции детали 4
2 Определение типа и организационной формы производства 6
2.1 Общие сведения определения типа производства 6
2.2 Определение операционного времени каждой операции 7
2.3 Определение типа производства 9
2.4 Определение формы организации производства 10
3 Выбор метода получения заготовки 13
4 Разработка чертежа заготовки 14
5 Выбор маршрута обработки, допусков, припусков и размеров на промежуточных операциях две поверхностей 17
6 Выбор технологических баз 22
7 Расчет границ регулирования 24
Литература 26


Сообщить о проблеме
Автор
user-avatar abaviuc
Дата
14.06.2019
Язык
Русский
Состав
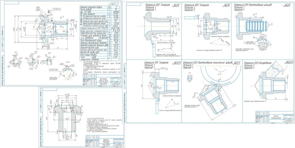
ПЗ, чертеж детали, чертеж заготовки, эскизы операционные
Софт
КОМПАС-3D 17 Как открыть?
Отзывов пока нет
Задать вопрос
Содержимое архива
  • icon-cdw
    Шестерня заднего вала.cdw
  • icon-cdw
    Шестерня заднего вала штамповка.cdw
  • icon-cdw
    Эскизы операционные.cdw
  • icon-doc
    курсачик.docx
Чтобы скачать чертеж, 3D модель или проект, Вы должны зарегистрироваться и принять участие в жизни сайта. Посмотрите, как тут скачивать файлы
Отзывов пока нет
Чтобы оставить отзыв, необходимо войти
Войти с помощью:

Используя функцию входа через сторонние сервисы, Вы соглашаетесь на обработку персональных данных в соответствии с Политикой конфиденциальности