Перейти к содержимому
Войти

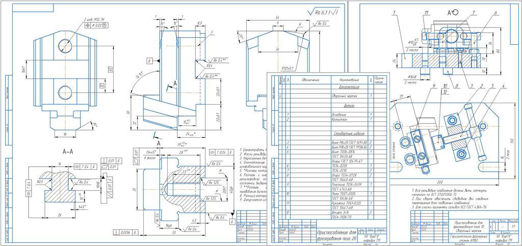
Разработка приспособления для фрезерования открытого паза в детали Кулачок основной в размер 10

0
18
456
4
0
50

Барановичский государственный университет
Кафедра технологии машиностроения
Курсовая работа по дисциплине "Технологическая оснастка"
На тему: " Разработка приспособления для фрезерования открытого паза в детали Кулачок основной в размер 10"
Барановичи 2016

При расчёте были использованы необходимая литература и следующие исходные данные:
Режим работы: двухсменный;
Годовая программа: 250000 шт.;
Вид обработки: фрезерование паза 10.

Графический материал:
1. Чертеж детали;
2. Сборочный чертеж приспособления;
3. Спецификация приспособления.

СОДЕРЖАНИЕ
ВВЕДЕНИЕ
1 Технологическое задание на проектирование
2 Разработка схемы установки заготовки
3 Разработка эскизных вариантов приспособлений
4 Расчет экономической эффективности конструкции приспособления
5 Расчет пропускной способности приспособлений
6 Расчёт зажимного усилия
7 Расчёт основных характеристик силового механизма
8 Выбор силового привода
9 Расчёт приспособления на точность
10 Описание работы приспособления
ЗАКЛЮЧЕНИЕ
СПИСОК ЛИТЕРАТУРЫ
ПРИЛОЖЕНИЕ А – Чертеж детали
ПРИЛОЖЕНИЕ Б – Сборочный чертеж приспособления


Сообщить о проблеме
Автор
user-avatar lordqvin
Дата
07.10.2017
Язык
Русский
Состав
Содержание, Записка, Реферат, Чертеж детали, чертеж приспособления, чертеж спецификации
Софт
КОМПАС-3D 16 Как открыть?
Отзывов пока нет
Задать вопрос
Содержимое архива
  • icon-doc +4 СОДЕРЖАНИЕ.docx
  • icon-doc ВСЯ ЗАПИСКА прав.docx
  • icon-doc Реферат.docx
  • icon-cdw Чертеж детали.cdw
  • icon-cdw Чертеж приспособления.cdw
  • icon-cdw Чертеж спецификации.cdw
Чтобы скачать чертеж, 3D модель или проект, Вы должны зарегистрироваться и принять участие в жизни сайта. Посмотрите, как тут скачивать файлы
Отзывов пока нет
Чтобы оставить отзыв, необходимо войти
Войти с помощью:

Используя функцию входа через сторонние сервисы, Вы соглашаетесь на обработку персональных данных в соответствии с Политикой конфиденциальности